查看完整案例


收藏

下载

翻译
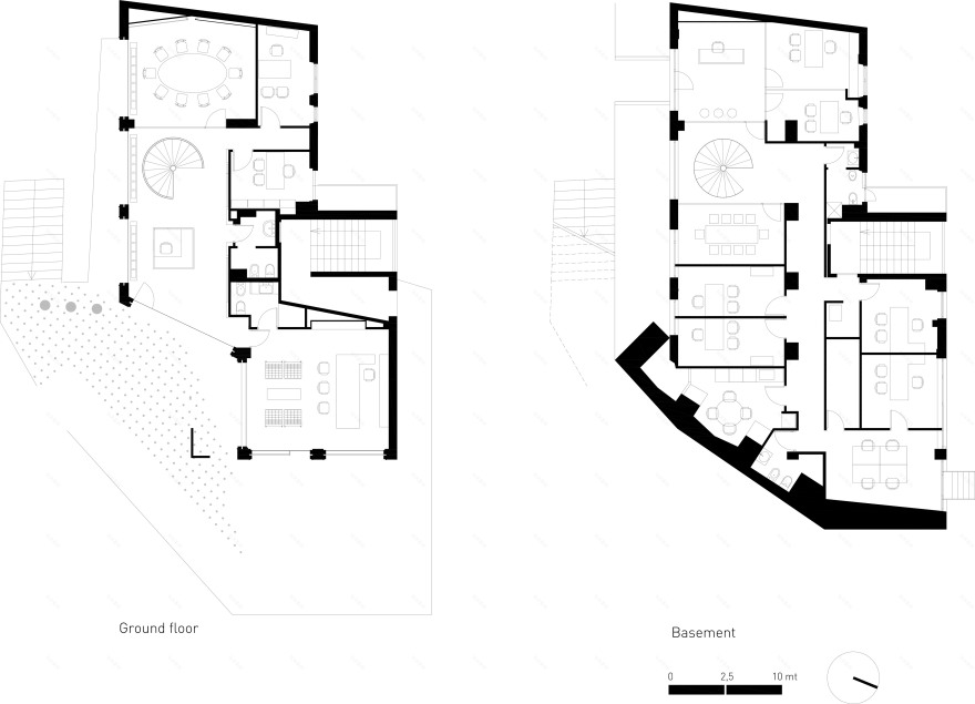
Il progetto ha previsto il recupero degli spazi Ex Schiffini a Perugia, uno spazio commerciale realizzato negli anni '80 su format concepito da Vico Magistretti. Il programma prevedeva l'accorpamento di due piani sovrapposti da destinare alla sede unificata delle agenzie Gabetti del territorio perugino. L'idea del progetto è stata quella di salvaguardare li elementi originari previsti dal concept di Magistretti, ovvero tutte le vetrine con i relativi serramenti e modanature in pietra, e paralelamente organizzare l'impianto planimetrico intorno alla scala di collegamento centrale. I nuovi spazi interni sono essenzialemente open space e sono scanditi atraverso un controsoffitto che misura la profondità dello spazio, la piazza pubblica esterna è messa in relazione con l'interno attraverso un lavoro site specific di Nicola Renzi che trova una continuità fisica e visiva nei banconi della reception, pensati sempre in collaborazione con l'artista. _The project tries to redefine the concept of real estate agency. The idea is to imagine an internal space in continuity with the external one, thus opening the sales activity to the city. This occurs through a system of site-specific works made by artist Nicola Renzi, that formally and materially refer to, and symbolically investigate the founding elements of the material of the buildings: the brick. The treatment of spaces takes place with a system of signs, especially on the ceiling, which try to punctuate the depth of the space that is centered by a system of ascent at the heart of the entire spatial composition.
客服
消息
收藏
下载
最近















