查看完整案例


收藏

下载
© Roger Jardine
C.罗杰·贾丁
建筑师提供的文字说明。2014 年,索尔·普拉塔耶大学 (SolPlatjEUniversity) 在南非的第一个新大学开设了大门。在战略上接近平方公里的阵列望远镜 [ska],其最初的 135 名学生预计在其最初 10 年内将增长到 7500 人。
Text description provided by the architects. In 2014, Sol Plaatje University [SPU] opened its doors as the first new University in South Africa’s democratic era. Strategically close to the Square Kilometre Array Telescope [SKA], its initial intake of 135 students is expected to grow to 7 500 within its first 10 years.
© Roger Jardine
C.罗杰·贾丁
在金伯利进程的内部城市,一个渐进的城市设计框架将现有的公民、公共和教育材料与新的目的建设的大学建筑无缝结合起来,将高等教育定位为城市内部生活的一个组成部分。或许是心脏。
Located in Kimberley’s Inner City, a progressive Urban Design Framework seamlessly incorporates existing civic, public and education stock with new purpose-built University buildings, positioning tertiary education as an integrated part of Inner City life. Perhaps it’s heart.
Concept skethes
概念偏差
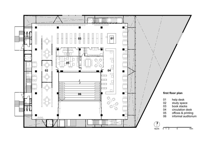
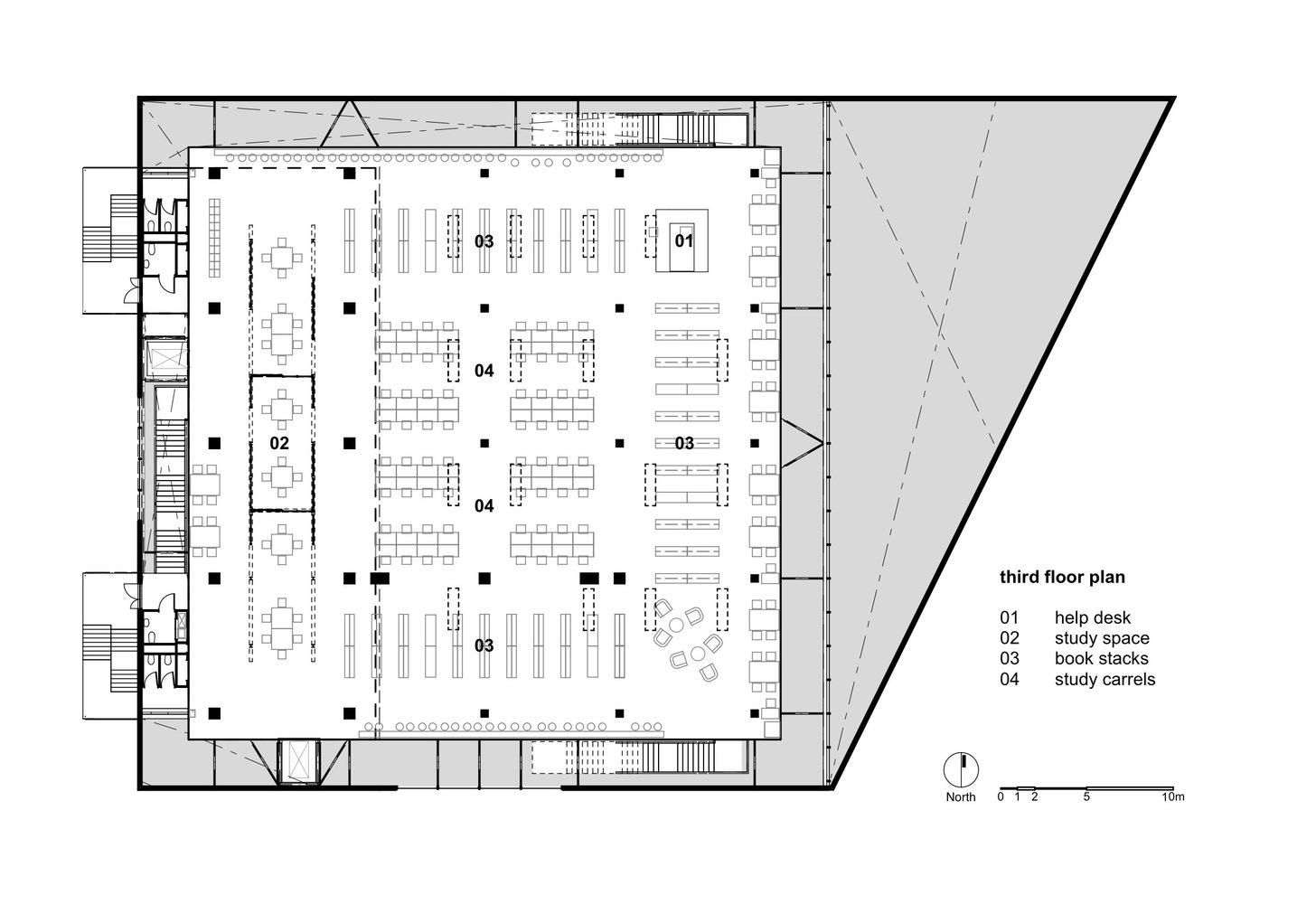
设计讲习班在两级建筑竞赛中取得成功,旨在将一个学生资源中心概念化和交付为大学生活的功能和物理中心,包括图书馆、教学、研究和社会空间。
Designworkshop was successful in a two-stage architectural competition towards conceptualising and delivering a Student Resource Centre as the functional and physical centrepiece of University life, including library, teaching, study, and social space.
© Roger Jardine
C.罗杰·贾丁
© Roger Jardine
C.罗杰·贾丁
我们所探讨的关键问题是,在南非全球一体化世界的现实中,这种新兴的类型学能发挥什么作用,并使之成为最佳方式。
The key question we explored was what this emerging typology could optimally be and enable in the South African reality of a globally integrated world.
© Roger Jardine
C.罗杰·贾丁
古老的知识共享图像是人们聚集在公共空间中的长老、思想领袖和古美周围的人。这取决于在哪里和什么时候,这可能是在河边、树下、公共广场或街道上。这是一个社会背景下的学习和知识产生。在社会中,与它无法区分,学习是由生活的实际和感知的现实实现的,这通常是在传统文化实践的平台上的。
Ancient images of knowledge-sharing are of people gathered around elders, thought- leaders and gurus, in Public Space. Depending on where and when, this could be by the side of a river, under a tree, in a public square or on a street-side. This is learning and knowledge generation in a social setting. Within society and indistinguishable from it, learning is enabled by the practical and perceived reality of life as it’s experienced, often on a platform of traditional cultural practice.
1st Floor Plan
一楼图则
当以书面形式记录信息时,学习的象征形象往往是被书籍包围的安静的学习桌。这是传播积累的知识,最常见的记录之外的直接经验和作为一种更线性和单向传播抽象的特定文化背景。科学的“中立性”。
When information was recorded in writing, the emblematic image of learning is often the quiet study table surrounded by books. This is the dissemination of accumulated knowledge, most commonly recorded outside of the direct experience and as a more linear and one-directional transmission abstract from specific cultural settings. The ‘neutrality’ of science.
© Roger Jardine
C.罗杰·贾丁
© Roger Jardine
C.罗杰·贾丁
SPU 图书馆和资源中心同时将两者结合在一起。这是一个社交场所,人们在日常生活中,无论是在物理空间还是在网络上,无论有没有书本,集体地和孤独地,在导师的指导和支持下,或者在他们之间,都可以进行广泛的、偶然的和有计划的交流。
The SPU Library and Resource Center integrates both, at the same time. It’s a social place where people make themselves available to wide-ranging incidental and planned interchange in the course of daily life, both in physical space and online, with and without books, collectively and in solitude, directed and enabled by mentors or among themselves.
© Roger Jardine
C.罗杰·贾丁
它同时也是一棵树,一条河的边上,一个公共广场和一条街道。
It is at the same time a tree, the side of a river, a public square, and a street.
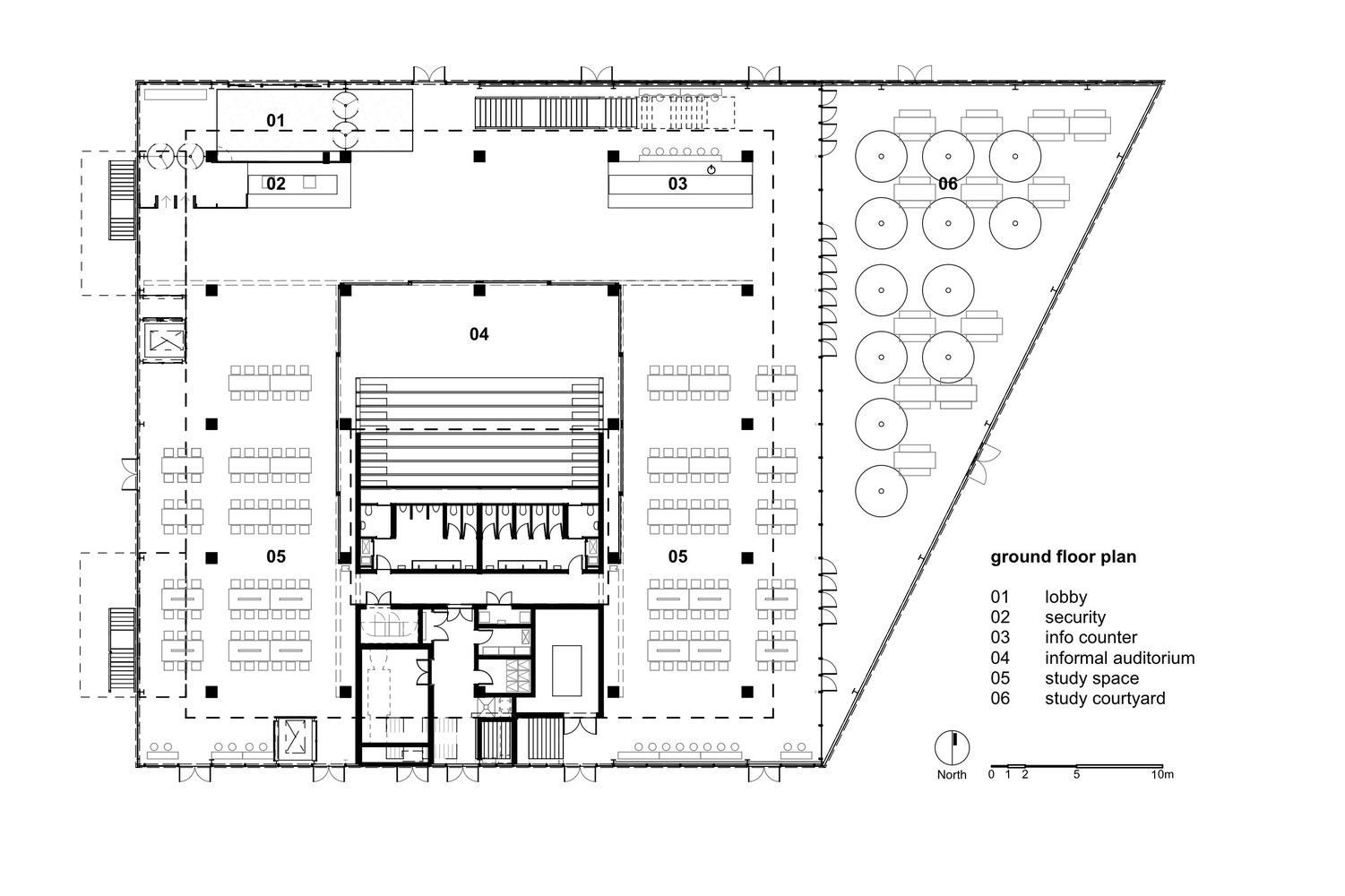
在一个倾斜的公共论坛上,一楼是金伯利进程、道路、广场和花园的延伸。它是一个由干旱气候的周期性炎热和寒冷极端所遮蔽的公共空间。
Centred on a raked public forum, the ground floor is an extension of Kimberley’s pavements, paths, squares and gardens. It’s a public space sheltered from the cyclical hot and cold extremes of the arid climate.
© Roger Jardine
C.罗杰·贾丁
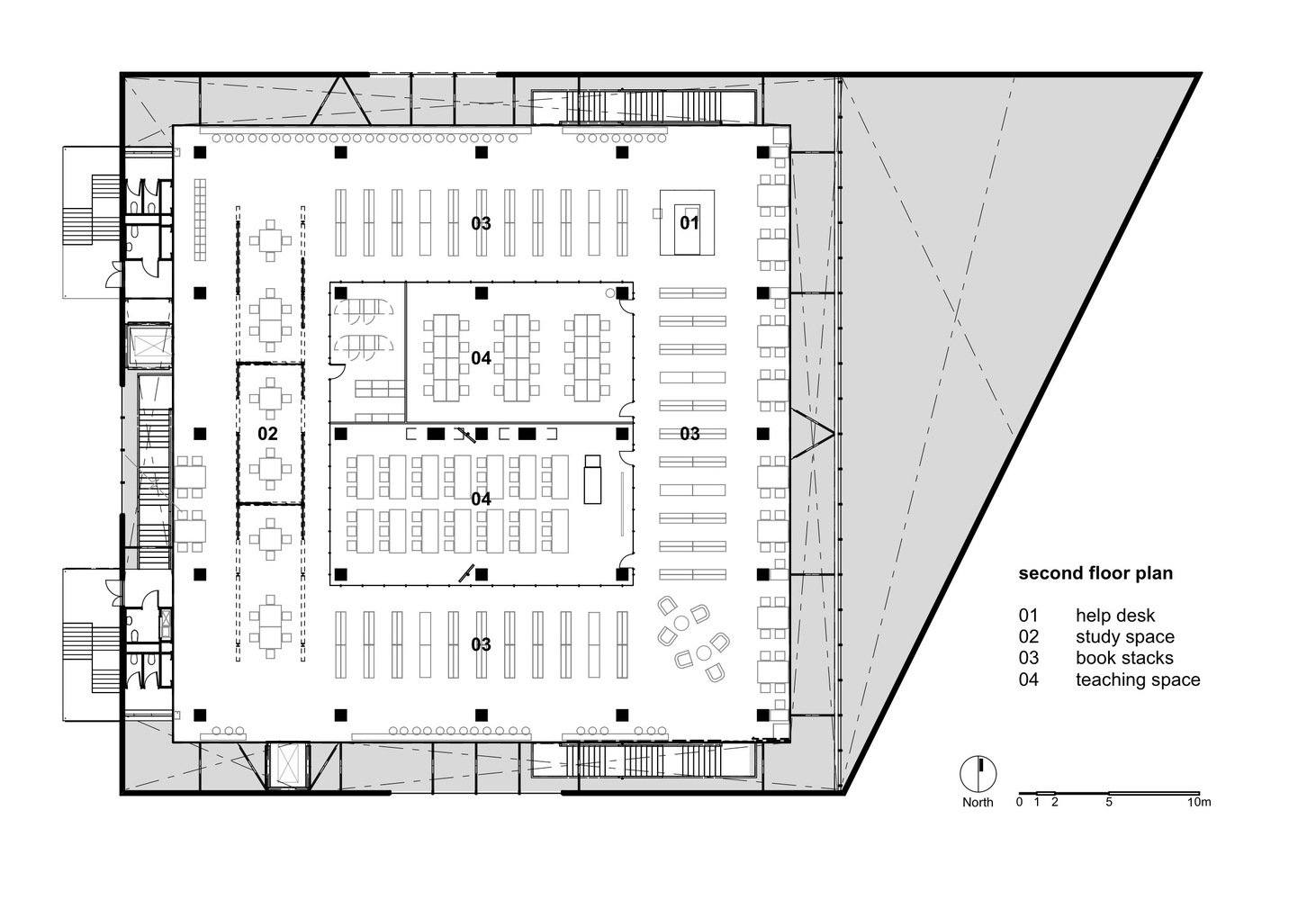
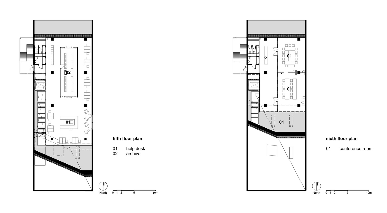
从公共到私人,每一个额外的楼层都是从其周边进入的另一个“公共广场”,以便能够对一个连续的知识景观进行三维探索。
Ascending from public to private, each additional floor is another ‘public square’ accessed from its perimeter to enable 3-dimensional exploration of a continuous knowledge-scape.
© Roger Jardine
C.罗杰·贾丁
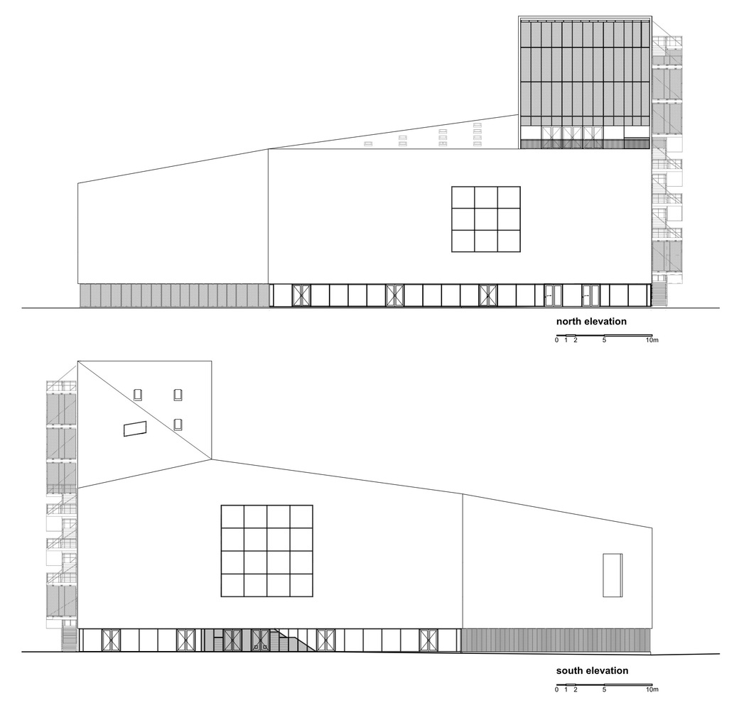
实心的草增强的模塑泥浆形式典型的南非内部白话勃拉克达克建筑。图书馆将这一遗产扩大为一个 22 厘米厚的独立混凝土外壳,高达 36 米高,并从地面上升起,显示出一个空洞化的体积,上升到俯瞰大学广场的最高点。
Solid grass-reinforced moulded mud forms typify South Africa’s interior vernacular brakdak construction. The Library scales this heritage up into a 22cm thick freestanding concrete shell rising up to 36m high and lifted off the ground to reveal a single hollowed-out volume ascending upward to its highest point overlooking University Square.
© Roger Jardine
C.罗杰·贾丁
与金伯利的标志性的大洞钻石矿相反,这座建筑是一个独特的雕塑物体,从无尽的水平上产生,就像一个科皮,布拉克屋,或矿井竖井。在一种单一的材料中,混凝土是结构、外壳、气候衰减器、灵活使用-- 使能器、延续传统和高尚经验。
The inverse of Kimberley’s iconic Big Hole diamond mine, the building is a distinctive sculptured object, arising from the endless horizontality like a koppie, brakdak house, or mine shaft. In a single material, concrete is structure, enclosure, climatic attenuator, flexible use-enabler, extended tradition, and noble experience.
© Roger Jardine
C.罗杰·贾丁
在日常生活中,这座建筑是一个避难所,一个 24 小时的冬季休息室和夏天的阳台。
In everyday university life, the building is a refuge, a 24 hour winter lounge and summer verandah.
© Roger Jardine
C.罗杰·贾丁
在一个资源稀缺的世界里,它是高能效的,允许在适当数量的自然光下显着地减轻热量的增加或损失,内部温度由嵌入混凝土地板的冷热水管道进一步减缓。
In a world of scarce resources, it is highly energy efficient, allowing in the right amount of natural light with significantly mitigated heat-gain or loss, the internal temperature further moderated by hot and cold water pipes embedded into concrete floors. © Roger Jardine
C.罗杰·贾丁
在城市里,它是民主学习、社会和文化交流的里程碑,也是经济潜力的源泉,而经济潜力总是来自于被赋予权力的知识和思想。
In the City, it’s a landmark of democratic learning, social and cultural exchange, and a generator of economic potential which always comes from empowered knowledge and ideas.
© Roger Jardine
C.罗杰·贾丁
Architects Designworkshop
Location Bishops Avenue, Kimberley Northern Cape, South Africa
Area 6364.0 m2Project Year 2018
Photographs Roger Jardine
客服
消息
收藏
下载
最近











































