查看完整案例


收藏

下载
© Llano Fotografia
c.Llano Fotografia
架构师提供的文本描述。该项目包括位于哥伦比亚Boyacá市Paipa市区的一小群2栋房屋。位于约314.85平方米的拐角地段,每栋房屋的建筑面积为116.45平方米。
Text description provided by the architects. The project consists of a small group of 2 houses located in the urban area of Paipa, Boyacá Municipality, Colombia. Located in a corner lot of approximately 314.85 m2, and where the built area is 116.45 m2 for each house.
Text description provided by the architects. The project consists of a small group of 2 houses located in the urban area of Paipa, Boyacá Municipality, Colombia. Located in a corner lot of approximately 314.85 m2, and where the built area is 116.45 m2 for each house.
1st floor plan
一楼图则
它是概念化的,是一个垂直生长的模块式避难所,以寻找一个适应时间的空间,并能够满足人类和环境的需要。两套住宅单元的设计都遵循相同的基本标准:完全模块化整体骨架,上下文连接,尊重环境的材料,照明,交叉通风,功能和可持续的舒适性。两者共享;花园区停车场和烧烤区(食物准备和烹饪模块)。
It is conceptualized, a modular refuge that grows vertically, in search of a space that adapts to time and is capable of satisfying both human and environmental needs. Both housing units are designed under the same basic criteria: completely modular monolithic skeleton, context linkage, respectful materials with the environment, lighting, cross ventilation, functionality and sustainable comfort. Both share; garden area parking and barbecue area (food preparation and cooking module).
It is conceptualized, a modular refuge that grows vertically, in search of a space that adapts to time and is capable of satisfying both human and environmental needs. Both housing units are designed under the same basic criteria: completely modular monolithic skeleton, context linkage, respectful materials with the environment, lighting, cross ventilation, functionality and sustainable comfort. Both share; garden area parking and barbecue area (food preparation and cooking module).
© Miguel A. Martínez Ortiz
MiguelA.MartinnezOrtiz
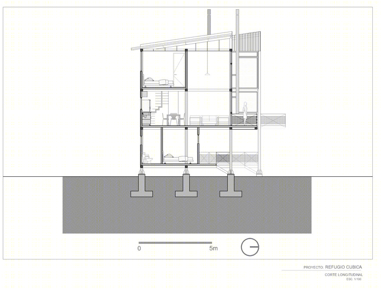
在空间上,每个模块由三个层次组成。第一级配置为两个访问:一个用于单独的房间,另一个用于房屋的其他部分。第二层,由立面上的一扇大窗户构成,它允许外部照明侵入其空间,依次由客厅、厨房和餐厅组成,并由主厅陪同。第三层,用真空把立体感放进房子的主空间,由两个次级房间组成。
Spatially each module is composed of three levels. The first level is configured for two accesses; one for a separate room, and the other access for the rest of the house. The second level, is framed by a large window on the facade, which allows the exterior lighting to invade its spaces, is composed successively by; living room, kitchen and dining room, accompanied by the main room. The third level, unburdens verticality with a vacuum to the main space of the house, and is composed of two secondary rooms.
Spatially each module is composed of three levels. The first level is configured for two accesses; one for a separate room, and the other access for the rest of the house. The second level, is framed by a large window on the facade, which allows the exterior lighting to invade its spaces, is composed successively by; living room, kitchen and dining room, accompanied by the main room. The third level, unburdens verticality with a vacuum to the main space of the house, and is composed of two secondary rooms.
Axonometries
axonometric(几何学上)轴测法的
立面上的几何组合首先存在于结构中,结构中还有一系列配置大窗口的框架,表示内部空间的透明度和照明;第二,超级板矩形中的颜色组合,生成为建筑物提供动态的马赛克。矩形的对称性被打破,在墙面上增加了圆形窗口和圆形插入。
The geometric composition on the facade rests first; in the structure together with a series of frames that configure large windows, representing the transparency and illumination of the internal spaces, and second; the composition of color in rectangles of superboard®, generating mosaics that provide dynamism to the building. The symmetry of the rectangles is broken, adding circular windows and circular inserts in the walls of the façade.
The geometric composition on the facade rests first; in the structure together with a series of frames that configure large windows, representing the transparency and illumination of the internal spaces, and second; the composition of color in rectangles of superboard®, generating mosaics that provide dynamism to the building. The symmetry of the rectangles is broken, adding circular windows and circular inserts in the walls of the façade.
© Llano Fotografia
c.Llano Fotografia
Longitudinal section
© Llano Fotografia
c.Llano Fotografia
它的结构形式是以圆形金属柱为基础,通过混凝土模从地面升起,土不介入,从而降低了开挖成本。
Its structural configuration is based on circular metal columns that rise from the ground by means of concrete dies, the soil does not intervene, thus reducing costs due to excavations.
Its structural configuration is based on circular metal columns that rise from the ground by means of concrete dies, the soil does not intervene, thus reducing costs due to excavations.
© Miguel A. Martínez Ortiz
MiguelA.MartinnezOrtiz
它的干结构大大减少了废物在现场,产生一个更快和更清洁的过程,因为许多零件是在车间,因为它是一个模块化的结构。
Its dry construction minimizes waste considerably on site, generating a faster and cleaner process, due to the fact that many of the parts are made in the workshop because it is a modular structure.
Its dry construction minimizes waste considerably on site, generating a faster and cleaner process, due to the fact that many of the parts are made in the workshop because it is a modular structure.
© Llano Fotografia
c.Llano Fotografia
Architects Camacho Estudio de Arquitectura
Location Paipa, Colombia
Architects in Charge German Ricardo Camacho Barrera, Gustavo Iván Camacho Barrera
Area 1248.61 ft2
Project Year 2017
Photographs Llano Fotografia, Miguel A. Martínez Ortiz
Category Houses
Manufacturers Loading...
客服
消息
收藏
下载
最近













































