查看完整案例


收藏

下载
架构师提供的文本描述。这是对墨西哥城南部圣安吉尔住宅区的一所房屋的干预和扩建。
Text description provided by the architects. It is an intervention and extension of a house in the residential area of San Angel at south of Mexico City.
Text description provided by the architects. It is an intervention and extension of a house in the residential area of San Angel at south of Mexico City.
© Jaime Navarro
(c)JaimeNavarro
这个项目的挑战是保存原来的房子的本质,作为一个大的中央庭院的房子,具有传统风格的殖民地风格的房子在圣天使的房子的特点。反过来,以一种尊重100%的原始房子的本质和风格的方式来补充建筑方案与当代的接触。为了达到这一效果,我们想到了木材、扁平粉刷、火山石、玻璃等材料,以及重视植被;目的是区分房屋原有部分的新部分,实现两者之间的良好对话。
The challenge in this project is to preserve the essence of the original house, being a house with a large central courtyard with a traditional style of colonial hacienda characteristic of the houses in San Angel. In turn complement the architectural program with a contemporary touch in such a way that respect to 100% the essence and style of the original house. To achieve this result, we think of materials such as wood, flattened whitewash, volcanic stone, glass, as well as giving importance to vegetation; with the intention of differentiating the new part of the original part of the house achieving a good dialogue between both.
The challenge in this project is to preserve the essence of the original house, being a house with a large central courtyard with a traditional style of colonial hacienda characteristic of the houses in San Angel. In turn complement the architectural program with a contemporary touch in such a way that respect to 100% the essence and style of the original house. To achieve this result, we think of materials such as wood, flattened whitewash, volcanic stone, glass, as well as giving importance to vegetation; with the intention of differentiating the new part of the original part of the house achieving a good dialogue between both.
© Jaime Navarro
(c)JaimeNavarro
© Jaime Navarro
(c)JaimeNavarro
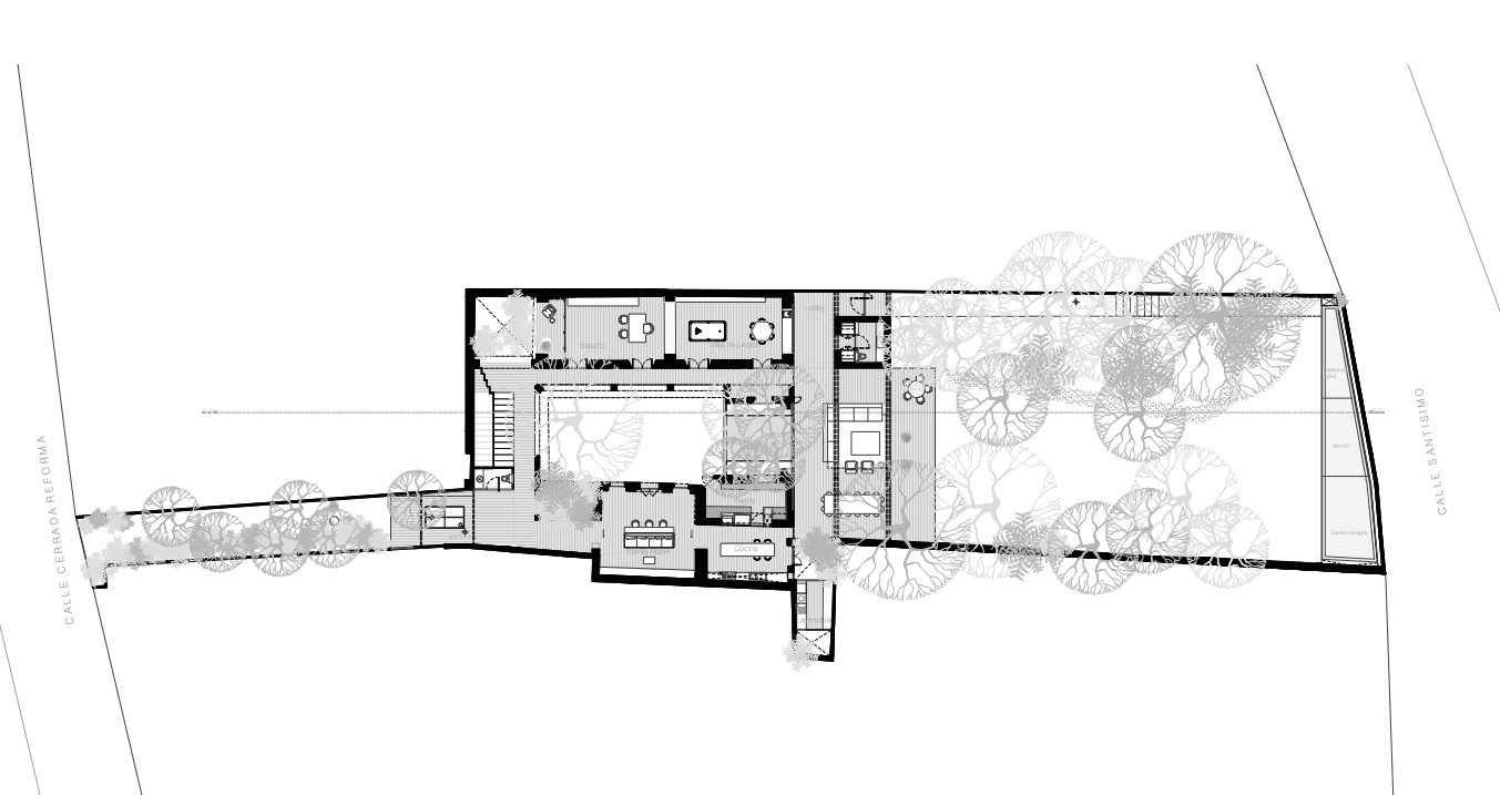
在底层,我们可以看到花园和中央庭院之间的起居室,寻找它们之间最大程度的透明度,从而形成交叉通风。同样,我们也可以利用室内气氛和外部环境,使花园和中央露台成为主要元素。
On the ground floor we find the living-dining room between the garden and the central courtyard, looking for the greatest possible transparency between them causing a cross ventilation. In the same way it was possible to play with the interior atmosphere and the exterior, in such a way that the garden and the central patio are the main elements.
On the ground floor we find the living-dining room between the garden and the central courtyard, looking for the greatest possible transparency between them causing a cross ventilation. In the same way it was possible to play with the interior atmosphere and the exterior, in such a way that the garden and the central patio are the main elements.
© Jaime Navarro
(c)JaimeNavarro
中央庭院周围是游戏室、演播室、家庭房、厨房和洗衣房,所有这些都可以直接进入中央庭院,并能看到中央庭院的景色。
Around the central courtyard is the game room, studio, family-room, kitchen and laundry, all with direct access and views to the central courtyard.
Around the central courtyard is the game room, studio, family-room, kitchen and laundry, all with direct access and views to the central courtyard.
© Jaime Navarro
(c)JaimeNavarro
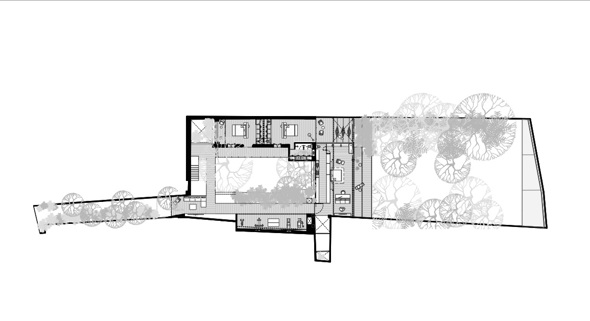
在第一层,我们发现最私密的地方,3间卧室,每个浴室更衣室和露台,一个更亲密的家庭以及一个健身房。
In the first level we find the most private areas, 3 bedrooms with bathroom-dressing room and terrace each and a more intimate family as well as a gym.
In the first level we find the most private areas, 3 bedrooms with bathroom-dressing room and terrace each and a more intimate family as well as a gym.
© Jaime Navarro
(c)JaimeNavarro
在地下室的楼层,我们找到了8辆车的停车场,2间服务室,安检亭和通往房屋的主要通道,非常独立地提供服务。
In the basement floor we find the parking lot for 8 cars, 2 service rooms, security booth and the main access to the house in a very independent way to the services.
In the basement floor we find the parking lot for 8 cars, 2 service rooms, security booth and the main access to the house in a very independent way to the services.
Arquitect design José Juan Rivera Río, Héctor Módica, Fernanda Soriano, Rogelio Ledesma, Carlos Ledesma.
Location Mexico City, Mexico
Area 12916.6 ft2
Project Year 2018
Photographs Jaime Navarro
Category Extension
客服
消息
收藏
下载
最近




























