查看完整案例


收藏

下载
Courtesy of Anna Schweiger
由AnnaSchweiger礼貌
架构师提供的文本描述。MUD咖啡厅是加纳北部一所职业学校的中心。它是2017年夏天由维也纳大学的学生和当地社区的当地人共同建造的。这座建筑在12周后完工,预算为20.000欧元。对我们来说,建设自助餐厅是很重要的,它不仅是一个吃饭的地方,也是一个社交聚会的中心。一个学生有机会在舒适的室内环境中放松和社交的地方。如有需要,该建筑物也可供当地社区用于小型活动。
Text description provided by the architects. The MUDcafeteria is the center of a vocational school in the north of Ghana. It was built in summer 2017 by students of the TU Vienna together with locals from the local community. The construction was finished after 12 weeks with a budget set at 20.000€. It was important for us to build the cafeteria not only as a place to eat but also as a center for social gatherings. A place where pupils have the opportunity to relax and socialize in a comfortable indoor climate. If needed, the building can also be used by the local community for small events.
Text description provided by the architects. The MUDcafeteria is the center of a vocational school in the north of Ghana. It was built in summer 2017 by students of the TU Vienna together with locals from the local community. The construction was finished after 12 weeks with a budget set at 20.000€. It was important for us to build the cafeteria not only as a place to eat but also as a center for social gatherings. A place where pupils have the opportunity to relax and socialize in a comfortable indoor climate. If needed, the building can also be used by the local community for small events.
Floor Plan
Courtesy of Anna Schweiger
由AnnaSchweiger礼貌
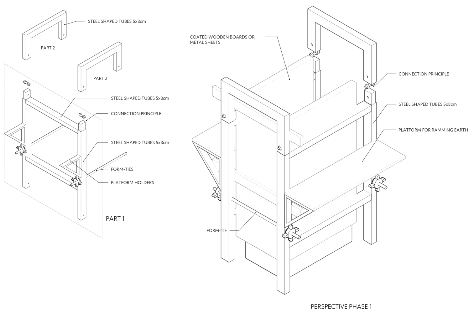
该设计基于模块化系统,可连续重复使用。这些模块是独立的支撑结构,允许建筑物连续扩展。该计划是光栅化和标准化的,因此只可能使用两种不同的“模板系统”和一种类型的钢组合梁。我们试图主要使用当地的可持续材料,并减少水泥的使用,只用于承重或天气暴露的元素。由于该地区持续高温,必须保持建筑凉爽。为了创造一个舒适的内部气候,我们根据两层原理规划了结构。围护结构的外部区域保护内部区域不受雨水和直接阳光的照射。
The design is based on a modular system which can be repeated continuously. The modules are independent supporting structures, which allow for successive extensions of the building. The plan was rasterized and standardized, so that construction was possible using only two different ‘formwork-systems’ and one type of steel composite-beam. We have tried to use mainly local sustainable materials and reduce the use of cement by only using it for the load-bearing or weather-exposed elements. Due to the constantly high temperatures in the region, it is essential to keep the building cool. In order to create a comfortable inside climate, we planned the structure according to a two-layer principle. The sheltered outside area surrounding the structure protects the inner area from rain and direct sunlight.
The design is based on a modular system which can be repeated continuously. The modules are independent supporting structures, which allow for successive extensions of the building. The plan was rasterized and standardized, so that construction was possible using only two different ‘formwork-systems’ and one type of steel composite-beam. We have tried to use mainly local sustainable materials and reduce the use of cement by only using it for the load-bearing or weather-exposed elements. Due to the constantly high temperatures in the region, it is essential to keep the building cool. In order to create a comfortable inside climate, we planned the structure according to a two-layer principle. The sheltered outside area surrounding the structure protects the inner area from rain and direct sunlight.
Courtesy of Anna Schweiger
由AnnaSchweiger礼貌
外墙由45cm夯土(无水泥)组成,起到热缓冲的作用,在白天稳定内部气候。墙壁中的泥浆储存加热和调节湿气和声音。此外,它结合空气污染物并具有防火性。由于连接“风/光模块,”,建筑通风良好,间接自然光到达建筑物内层。为了提高自然冷却效果,食堂的主轴与风成直角。屋顶是由波纹金属制成的,在该区域内是常见的,因为大雨。为了在雨季期间减少噪音并减少来自屋顶的热排放,悬挂局部生产的草垫用作通风的子结构。这样,即使在最热的日子里,内部也保持相对凉爽。
The outside walls, which consist of 45 cm rammed earth (without cement), function as a heat buffer, stabilizing the inside climate during the day. The mud in the walls stores heats and regulates moisture and sound. Moreover, it binds air pollutants and is fire-resistant. Because of the connecting “wind/light modules,” the building is well ventilated and the indirect natural light reaches the inner layer of the building. To increase the natural cooling effect, the cafeteria’s main axes are set at a right angle to the wind. The roof is made of corrugated metal, common within this region because of the heavy rainfalls. For noise reduction during the wet season and to reduce heat emissions from the roof, locally produced straw mats were hung to serve as a back-ventilated sub-structure. This way, the inside remains relatively cool, even on the hottest days.
The outside walls, which consist of 45 cm rammed earth (without cement), function as a heat buffer, stabilizing the inside climate during the day. The mud in the walls stores heats and regulates moisture and sound. Moreover, it binds air pollutants and is fire-resistant. Because of the connecting “wind/light modules,” the building is well ventilated and the indirect natural light reaches the inner layer of the building. To increase the natural cooling effect, the cafeteria’s main axes are set at a right angle to the wind. The roof is made of corrugated metal, common within this region because of the heavy rainfalls. For noise reduction during the wet season and to reduce heat emissions from the roof, locally produced straw mats were hung to serve as a back-ventilated sub-structure. This way, the inside remains relatively cool, even on the hottest days.
Courtesy of Anna Schweiger
由AnnaSchweiger礼貌
这座建筑由三个独立的部分组成。最大的部分,一间多用途的房间,目前将用作教室.在较小的房间里,有一个柜台,上面有一个服务舱口,连接到中央的半室外空间。建筑物周围建立了不同的区域,从更大的开放区到更多的私人区域。突出的屋顶,柱子之间的坐位(用水泥夯实的泥土),以及正面的座椅和植物床元素,构成了一个供吃饭、社交和后退的户外空间。百叶窗,是由剩余的建筑木材和本地生产的绳子,提供遮阳,并确定了前廊的面积。其他剩余的建筑木材被用来建造一些家具,如厨房柜台。烹饪元件和雨水水箱位于建筑物的后面。
The building consists of three independent sections. The biggest section, a multi-purpose room, will be used as a classroom for now. In the smaller room, there is a counter with a serving hatch connected to the central, semi-outdoor space. Different zones were created around the building, from bigger open ones to more private areas. The projected roof, the sitting niches between the columns (rammed earth with cement), as well as the frontal seating and plant-bed elements, form an outdoor space for eating, socializing and retreating. The blinds, which were made from leftover construction wood and locally produced rope, provide shade and additionally define the front porch area. Other leftover construction wood was used to build some furniture such as the kitchen counter. The cooking element and the rainwater tank are situated behind the building.
The building consists of three independent sections. The biggest section, a multi-purpose room, will be used as a classroom for now. In the smaller room, there is a counter with a serving hatch connected to the central, semi-outdoor space. Different zones were created around the building, from bigger open ones to more private areas. The projected roof, the sitting niches between the columns (rammed earth with cement), as well as the frontal seating and plant-bed elements, form an outdoor space for eating, socializing and retreating. The blinds, which were made from leftover construction wood and locally produced rope, provide shade and additionally define the front porch area. Other leftover construction wood was used to build some furniture such as the kitchen counter. The cooking element and the rainwater tank are situated behind the building.
Section Diagram
剖面图
Courtesy of Anna Schweiger
由AnnaSchweiger礼貌
Architects Anna Schweiger, Jaap Willemsen
Location Tamale - Yendi Rd, Sang, Ghana
Area 180.0 m2
Project Year 2017
Category Coffee Shop
客服
消息
收藏
下载
最近



























