查看完整案例


收藏

下载
架构师提供的文本描述。莱拉·海勒画廊是中东最大的私人拥有的公共艺术画廊,展出了一些地区和国际知名艺术家-其中许多人将首次在中东展出他们的作品。位于迪拜最著名的艺术中心之一的阿尔塞卡尔大道,画廊由两个仓库组成,彼此合并,并转变成一个功能齐全的画廊空间。
Text description provided by the architects. Showcasing some of the leading regional and international artists - many of whom will be presenting their work in the Middle East for the first time - Leila Heller Gallery is the largest privately held public art gallery in the Middle East. Located in one of Dubai’s most distinguished art hubs, Alserkal Avenue, the gallery consists of two warehouses merged with one another and transformed into a fully functioning gallery space.
Text description provided by the architects. Showcasing some of the leading regional and international artists - many of whom will be presenting their work in the Middle East for the first time - Leila Heller Gallery is the largest privately held public art gallery in the Middle East. Located in one of Dubai’s most distinguished art hubs, Alserkal Avenue, the gallery consists of two warehouses merged with one another and transformed into a fully functioning gallery space.
© 8th Street Studio
第八街演播室
顾名思义,画廊的设计方法需要精妙,因为空间仅次于画廊内展示的艺术。游走在画廊里,参观者发现自己被最低限度的设计策略所包围,LSD以在画廊内手拉手工作的原材料而闻名,提供了一个明亮、通风的空间,可以舒舒服服地容纳各种形状和大小的艺术设施。
A gallery by definition needs to be subtle in its approach as the space is secondary to the art that is displayed within it. Wandering throughout the galleries, the visitors find themselves enveloped by the minimal design strategy LSD is known for and raw materials that works hand-in-hand throughout the gallery to offer a bright, airy space that can accommodate art installations of all shapes and sizes comfortably.
A gallery by definition needs to be subtle in its approach as the space is secondary to the art that is displayed within it. Wandering throughout the galleries, the visitors find themselves enveloped by the minimal design strategy LSD is known for and raw materials that works hand-in-hand throughout the gallery to offer a bright, airy space that can accommodate art installations of all shapes and sizes comfortably.
© 8th Street Studio
第八街演播室
精致的工业材料调色板能很好地激发艺术家工作室的氛围和画廊所在的工业街区。
The refined industrial material palette works well to invoke an artist studio atmosphere and the industrial neighborhood in which the gallery is located
The refined industrial material palette works well to invoke an artist studio atmosphere and the industrial neighborhood in which the gallery is located
© 8th Street Studio
第八街演播室
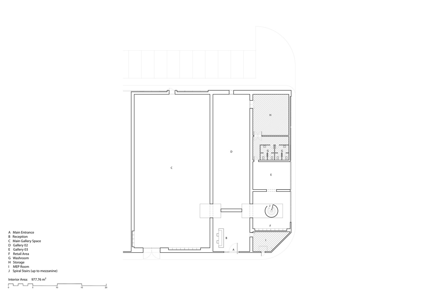
一个欢迎的入口分开了两个画廊,没有明显地包围他们。凸起的基座作为所有三个画廊与小型作品参考和艺术家图书馆之间的门槛。螺旋工业生楼梯既是雕塑元素,也是通往楼上私人观景厅和工作人员办公室的正式入口。
A welcoming entrance separating both galleries without visibly enclosing them. The raised plinth serves as a threshold between all three galleries and the small works reference and artist library. The spiral industrially raw staircase presents both a sculptural element and formal entrance to the upstairs private viewing gallery and staff offices.
A welcoming entrance separating both galleries without visibly enclosing them. The raised plinth serves as a threshold between all three galleries and the small works reference and artist library. The spiral industrially raw staircase presents both a sculptural element and formal entrance to the upstairs private viewing gallery and staff offices.
Axonometric View
该楼梯由位于画廊2公里内的当地行业制造,完全由钢制通道组成,用3毫米厚的热轧机加工钢板焊接而成。
Fabricated by local trades who are housed within 2km of the gallery, the staircase is made entirely out of steel channels wrapped in tack-welded raw 3mm thick hot rolled machined steel panels.
Fabricated by local trades who are housed within 2km of the gallery, the staircase is made entirely out of steel channels wrapped in tack-welded raw 3mm thick hot rolled machined steel panels.
© 8th Street Studio
第八街演播室
客服
消息
收藏
下载
最近






















