查看完整案例


收藏

下载
© Erieta Attali
埃丽塔·阿塔利
© Ed Reeve
C.埃德·里夫
建筑师提供的文字说明。APS住宅位于希腊的反帕罗斯岛南部,面对一个受保护的考古岛、专制和它古老的阿波罗保护区。地形陡峭,从北风中产生自然保护,同时仍在捕捉到日落的景色。在70年代,一个城市贫民计划在这个地区并置,因此在一个罕见的案例研究中,对农村郊区郊区的郊区进行了研究。
Text description provided by the architects. APS house is located at the south of Antiparos island, Cyclades, Greece, facing a protected archaeological island, Despotikon and its ancient Apollo sanctuary. The topography is steep, creating a natural protection from the north winds, while still catching the view to the sunset. During the ‘70s, a poor urban plan was juxtaposed on the area, thus transforming it in a rare case study of Cycladic post-rural suburbia.
Text description provided by the architects. APS house is located at the south of Antiparos island, Cyclades, Greece, facing a protected archaeological island, Despotikon and its ancient Apollo sanctuary. The topography is steep, creating a natural protection from the north winds, while still catching the view to the sunset. During the ‘70s, a poor urban plan was juxtaposed on the area, thus transforming it in a rare case study of Cycladic post-rural suburbia.
© Ed Reeve
C.埃德·里夫
这份简报要求提供一套夏季别墅,里面有工作室空间和尽可能多的卧室,目的是作为艺术家的住所和主人的避暑别墅。
The brief asked for a summer house with a studio space and as many bedrooms as possible aimed to function both as an artists' residence and the owner’s summer house.
The brief asked for a summer house with a studio space and as many bedrooms as possible aimed to function both as an artists' residence and the owner’s summer house.
© Ed Reeve
C.埃德·里夫
Cross Sections
交差截面
© Erieta Attali
埃丽塔·阿塔利
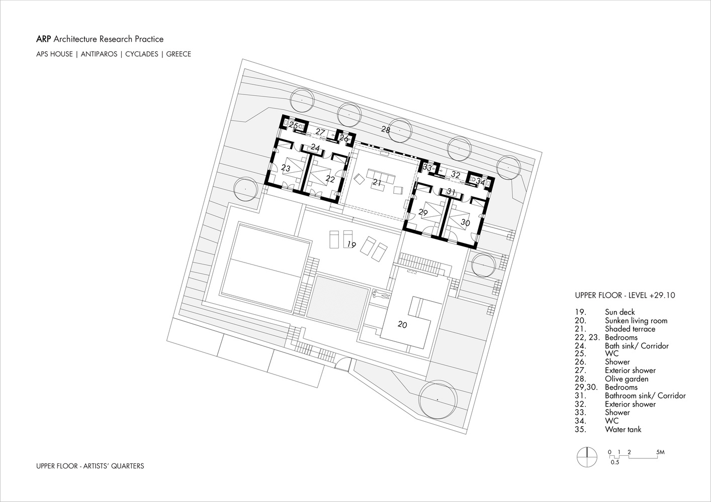
五平方卷组织成两层,与有盖的露台和庭院交替组成的房子。封闭空间的体积阻挡了向邻近地段的侧视,而它们将视野设置为Despotikon。尽管该地段面积很小(1000平方米),但这种曲折的布局在规模和空间质量上都会产生各种封闭、覆盖和开放的空间。每个空间都有自己的空气和光线,以及向外部扩展的能力。这种多孔性的布局提供了多种使用场景,并可持续地使用输入和输出。
Five square volumes organized in two levels alternating with covered terraces and courtyards comprise the house. The volumes of the enclosed spaces block the side views towards the neighboring lots, while they frame the view to Despotikon. Despite the small size of the lot (1000sqm), this chequered layout produces a variety of enclosed, covered and open spaces both in scale and spatial quality. Each space has its own air and light and the ability to expand in size towards the exterior. This porous layout provides multiple scenarios of use and a continuous play with the in and out.
Five square volumes organized in two levels alternating with covered terraces and courtyards comprise the house. The volumes of the enclosed spaces block the side views towards the neighboring lots, while they frame the view to Despotikon. Despite the small size of the lot (1000sqm), this chequered layout produces a variety of enclosed, covered and open spaces both in scale and spatial quality. Each space has its own air and light and the ability to expand in size towards the exterior. This porous layout provides multiple scenarios of use and a continuous play with the in and out.
© Ed Reeve
C.埃德·里夫
Ground floor plan
© Ed Reeve
C.埃德·里夫
Architects ARP - Architecture Research Practice
Location Paros, Greece
Lead Architects Argyro Pouliovali, Thalia Chrousos
Design Eva Alberini, Marilena Stavrakaki
Landscaping Skape
Area 370.0 m2
Project Year 2017
Photographs Ed Reeve, Erieta Attali
Category Houses
Manufacturers Loading...
客服
消息
收藏
下载
最近


































