查看完整案例


收藏

下载
© Christiane Wirth
(c)ChristtianeWirth
© Christiane Wirth
(c)ChristtianeWirth
建筑师提供的文字说明。设计师卡瓦略
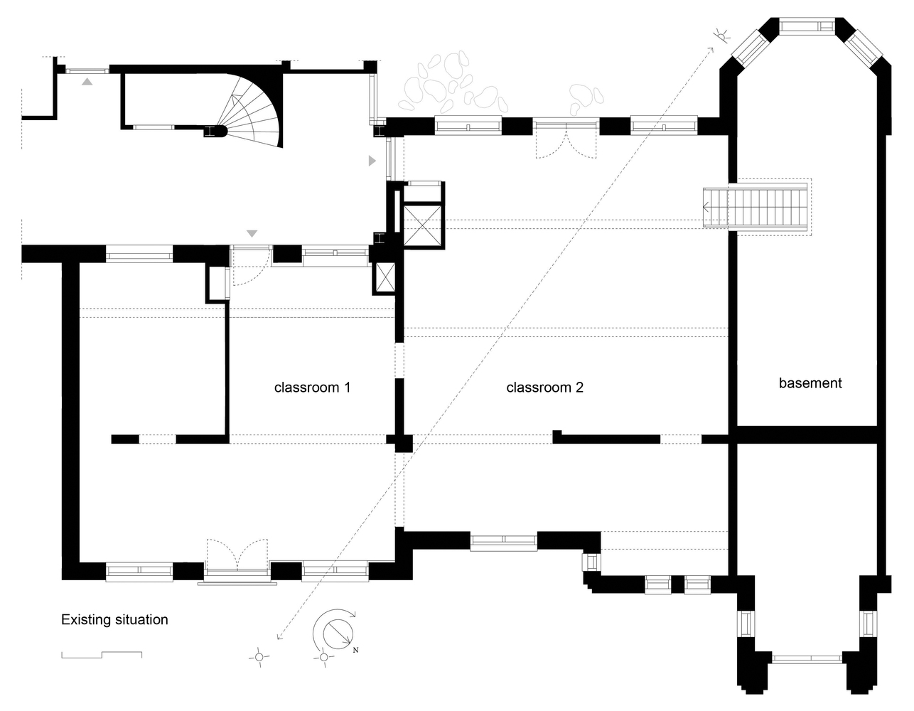
Text description provided by the architects. Designers Carvalho & Bernau bought from the municipality two old classrooms in a former school building. The renovated complex, with 11 apartments, consists on a hybrid combination of buildings from the beginning of the 20th century and from the 1980s. The municipality has carried out the renovation of the exterior themselves. The transformed dwelling, with high rooms that can be reached via a communal corridor, had to accommodate three bedrooms, living area and play space for Alba, who had just turned one year.
Text description provided by the architects. Designers Carvalho & Bernau bought from the municipality two old classrooms in a former school building. The renovated complex, with 11 apartments, consists on a hybrid combination of buildings from the beginning of the 20th century and from the 1980s. The municipality has carried out the renovation of the exterior themselves. The transformed dwelling, with high rooms that can be reached via a communal corridor, had to accommodate three bedrooms, living area and play space for Alba, who had just turned one year.
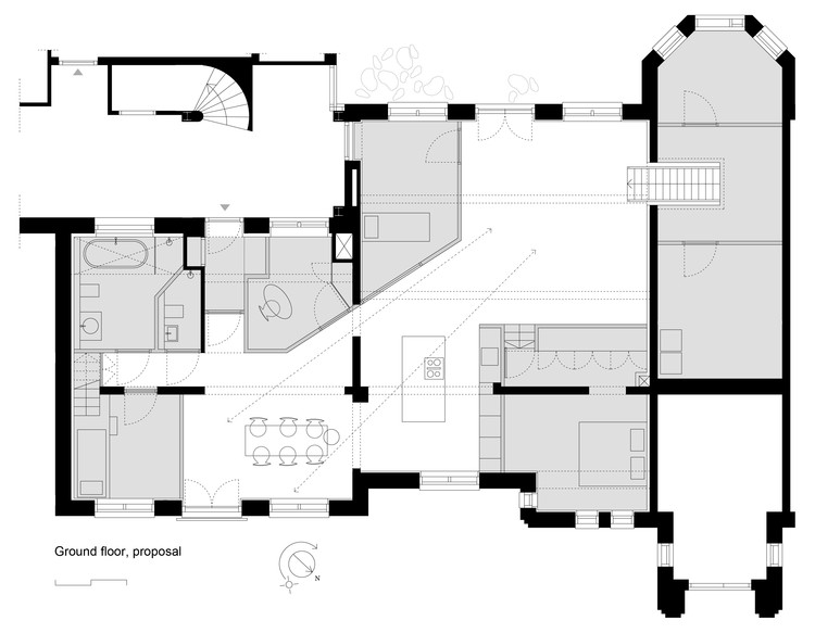
Proposed - Ground floor plan
拟议-底层平面图
Proposed - Elevated Areas
建议-高架地区
设计方法的光线和视线:在高墙反射的现有日光的力量,是由于第一次现场访问强烈感受到:晨光的入射给街道一侧的空间带来了柔和的特征。晚上的灯光向花园侧的房间提供了温暖的气氛。这两个教室似乎是由一条对角线的日光线连接的。这个现有的光线产生了一个视线,帮助确定了内部的形态:与卧室一样,不同的封闭功能已经被放置在视线周围,就像广场周围的房屋一样。这个开放的广场,家庭房,是通过扭结的木质墙壁来定义的,它包含三个连接的功能,这些功能逐渐显示了自己:带晨光的餐厅、花园的客厅、夜灯和厨房之间。
Light and view-lines as design-method: The power of the existing daylight, reflected on the high walls, was since the first site visit strongly felt: the incidence of the morning light gave a soft character to the space on the street side. The evening light offered a warm atmosphere to the rooms on the garden side. The two classrooms seemed to be connected by a diagonal daylight line. This existing light-line generated a sightline which helped determine the morphology of the interior: the different closed functions, like the sleeping-rooms, have been placed around this sightline, like houses around a square. This open square, the family room, was defined by kinked wooden walls and contains three connected functions which gradually reveal itself: the dining room with morning light, the sitting room at the garden, with evening light, and in between, the kitchen.
Light and view-lines as design-method: The power of the existing daylight, reflected on the high walls, was since the first site visit strongly felt: the incidence of the morning light gave a soft character to the space on the street side. The evening light offered a warm atmosphere to the rooms on the garden side. The two classrooms seemed to be connected by a diagonal daylight line. This existing light-line generated a sightline which helped determine the morphology of the interior: the different closed functions, like the sleeping-rooms, have been placed around this sightline, like houses around a square. This open square, the family room, was defined by kinked wooden walls and contains three connected functions which gradually reveal itself: the dining room with morning light, the sitting room at the garden, with evening light, and in between, the kitchen.
© Christiane Wirth
(c)ChristtianeWirth
© Christiane Wirth
(c)ChristtianeWirth
可持续性:我们已经把这个老船体变成了一个可持续发展的家园。地板、天花板和内墙都根据气候、声音和耐火性能进行了良好的隔热.我们采用了“箱内装箱”系统:旧砖墙和现有的混凝土吊顶梁被包装成紧凑型的大跨度和石膏板绝缘层。粗糙的船体,与它的旧走廊的拱门,变成了白色。
Sustainability: We have transformed this old hull into a sustainable home. Floor, ceiling and inside walls are well insulated according to climate, sound and fire-resistance. We used a 'box-in-a-box' system: the old brick-work walls and existing concrete ceiling-beams are packed into a compact Kingspan and plasterboard insulation layer. The rough hull, with its old corridor’s arch, turned white.
Sustainability: We have transformed this old hull into a sustainable home. Floor, ceiling and inside walls are well insulated according to climate, sound and fire-resistance. We used a 'box-in-a-box' system: the old brick-work walls and existing concrete ceiling-beams are packed into a compact Kingspan and plasterboard insulation layer. The rough hull, with its old corridor’s arch, turned white.
© Christiane Wirth
(c)ChristtianeWirth
新旧对比:新增加的与白色墙壁相交的体积用桦木胶合板粘在一起。这样,旧元素和新元素之间的各种交互作用就变得更加极端。这种材料也使有趣的雕塑形式成为可能,例如带有通向主卧室的楼梯的门廊,以及入口的壁龛,在入口和餐厅之间起到缓冲的作用。
Contrast between old and new: The newly added volumes which intersect the white walls were cladded with birch plywood. In this way the various interactions between the old and the new elements are made more extreme. This material also made interesting sculptural forms possible, such as the porch with stairs leading to the master bedroom, and the niche at the entrance, which works as a buffer between the entrance and the dining room.
Contrast between old and new: The newly added volumes which intersect the white walls were cladded with birch plywood. In this way the various interactions between the old and the new elements are made more extreme. This material also made interesting sculptural forms possible, such as the porch with stairs leading to the master bedroom, and the niche at the entrance, which works as a buffer between the entrance and the dining room.
© Christiane Wirth
(c)ChristtianeWirth
内部窗户:每一间卧室都有一扇窗户,望着客厅。从他们自己的私人房间,家庭可以通过这些内部窗口来观看对方。在Alba的房间里,为了最大限度地发挥娱乐和空间,创造了一个高架床,楼梯通向一个高架床"隐藏"播放空间。从这个升起的夹层,在两个浴室的上方,Alba可以看到她的父母在餐厅和厨房,他们也可以看着她。从主卧室,通过自己的内部窗户,Alba的夹层清晰可见。第三个房间,客房,里面有一个超大的内部窗户。结果,来自起居室的下午/晚上的光线穿透到厨房里。该内部窗口还确保了旧对称花园立面的可读性,具有中心门和两个侧面窗口。
Internal windows: Each bedroom has a window looking out at the living area. From their own private rooms the family can watch each other through these internal windows. In Alba’s room, in order to maximize playfulness and spatiality, an elevated bed was created from which a staircase leads to an 'hidden' play space. From this raised mezzanine, situated above the two bathrooms, Alba can see her parents in the dining room and kitchen, and they can also watch her. From the master bedroom, through its own internal window, Alba's mezzanine is clearly visible. The third room, the guest room, contains an extra-large internal window. As a result, the afternoon / evening light, coming from the siting-room, penetrates well into the kitchen. This internal window also ensures readability of the old symmetric garden facade, with a central door and two side windows.
Internal windows: Each bedroom has a window looking out at the living area. From their own private rooms the family can watch each other through these internal windows. In Alba’s room, in order to maximize playfulness and spatiality, an elevated bed was created from which a staircase leads to an 'hidden' play space. From this raised mezzanine, situated above the two bathrooms, Alba can see her parents in the dining room and kitchen, and they can also watch her. From the master bedroom, through its own internal window, Alba's mezzanine is clearly visible. The third room, the guest room, contains an extra-large internal window. As a result, the afternoon / evening light, coming from the siting-room, penetrates well into the kitchen. This internal window also ensures readability of the old symmetric garden facade, with a central door and two side windows.
© Christiane Wirth
(c)ChristtianeWirth
Architects ANA ROCHA architecture
Location The Hague, The Netherlands
Area 150.0 m2
Project Year 2018
Photographs Christiane Wirth
Category Refurbishment
Manufacturers Loading...
客服
消息
收藏
下载
最近















