查看完整案例


收藏

下载
架构师提供的文本描述。街区建筑群的入口边缘形状像一个尖锐的三角形。部署一架高效的飞机并非易事。但在这片土地的后面是一座森林覆盖的小山。我们决定把分配条件作为我们计划的一项优势。事实上,这位建筑师正在寻找一处位于他身后山上的遗址,并且知道这个地点的价值。建筑师拒绝了复杂房屋的统一设计,想要建造自己的房子。为了做到这一点,他们选择了只位于起点和内部的土地。
Text description provided by the architects. The entry edge of a block house complex was shaped like a sharp triangle. It was not easy to deploy an efficient plane. But behind the land was a small forested mountain. We decided to put the conditions of distribution in our plan as an advantage. In fact, the architect was looking for a site that was located on the mountain behind him and knew the value of the site. And the architect rejected the uniform design of the complex house and wanted to build his own house. To do so, they chose land that is only located at the beginning and away from the inside.
Text description provided by the architects. The entry edge of a block house complex was shaped like a sharp triangle. It was not easy to deploy an efficient plane. But behind the land was a small forested mountain. We decided to put the conditions of distribution in our plan as an advantage. In fact, the architect was looking for a site that was located on the mountain behind him and knew the value of the site. And the architect rejected the uniform design of the complex house and wanted to build his own house. To do so, they chose land that is only located at the beginning and away from the inside.
© Hyo sook Jin
赵秀珍
First floor plan
一楼平面图
© Hyo sook Jin
赵秀珍
我们制定了一些规则。首先,让我们创建一个打开眼睛的开口,第二个是设计一栋面向山丘的建筑主程序,第三个是保护隐私,在繁忙的入口和当地道路的入口处有一个最小的开口。
We set some rules. First, let's create an opening where the eyes are open, the second is to design a building's main program towards the hills, and the third is to protect privacy with a minimal opening at the entrance to the busy entrance and on the local roads.
We set some rules. First, let's create an opening where the eyes are open, the second is to design a building's main program towards the hills, and the third is to protect privacy with a minimal opening at the entrance to the busy entrance and on the local roads.
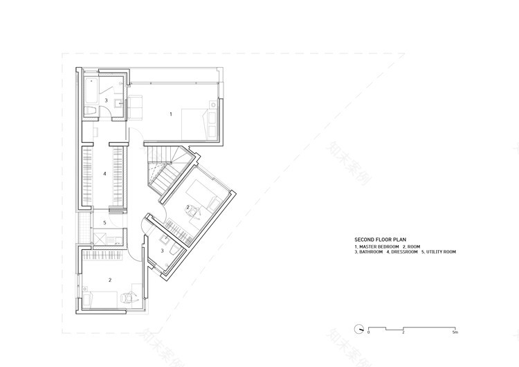
Second floor plan
二层平面图
© Hyo sook Jin
赵秀珍
在里面,他们创造了一个三角形的楼梯和天窗在三角形的中间。垂直三角形铜线和自然光放置在节目的中心,预计将始终提供能源和正能量的家庭。三个房间被布置成一个三角形楼梯周围的一个包裹的形状。由于束的形状,不同的图像将出现取决于观察角度。
Inside, they created a triangular staircase and skylights in the middle of the triangle. The vertical triangular copper wire and natural light placed at the center of the program are expected to always provide energy and positive energy to the home. And three rooms are arranged in the shape of a bundle around a triangular staircase. Thanks to the shape of the bundle, different images will appear depending on the viewing angle.
Inside, they created a triangular staircase and skylights in the middle of the triangle. The vertical triangular copper wire and natural light placed at the center of the program are expected to always provide energy and positive energy to the home. And three rooms are arranged in the shape of a bundle around a triangular staircase. Thanks to the shape of the bundle, different images will appear depending on the viewing angle.
© Hyo sook Jin
赵秀珍
Architects KARO Architects
Location Yongin, South Korea
Architect in Charge Kijung Kim
Design Team Hyunyong Jo
Area 95.0 m2
Project Year 2017
Photographs Hyo sook Jin
Category Houses Interiors
客服
消息
收藏
下载
最近


























