查看完整案例


收藏

下载
© Arménio Teixeira
(Arménio Teixeira)
架构师提供的文本描述。这个项目包括改造位于波尔图历史中心的十九世纪的一座建筑中的一套小公寓。考虑到空间的小尺寸和客户增加有用面积的规格,该建议基于中央空间上方的夹层的设计,利用了这一时期建筑的高天花板特点。这中间层因此整合了一个卧室,一个额外的和开放的空间在起居室,最重要的是私人和单独的空间。下层发展成为客厅和餐厅,其中也包括厨房。其余的服务空间,如浴室和储藏室,集中在多余的区域,内部和卧室下面。
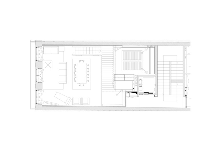
Text description provided by the architects. This project consists in the transformation of a small apartment inserted in a building of the XIX century located in the historical center of Porto. Given the small dimension of the space and the customer's specifications to increase the useful area, the proposal is based on the design of a mezzanine over the central space, taking advantage of the high ceilings characteristic of the constructions of this period. This intermediate floor thus integrates a bedroom, an additional and open space over the living room, and above all private and separate. The lower floor develops into the living and dining room, which also includes the kitchen. The remaining service spaces like the bathroom and storage are concentrated in the surplus area, interior and under the bedroom.
Text description provided by the architects. This project consists in the transformation of a small apartment inserted in a building of the XIX century located in the historical center of Porto. Given the small dimension of the space and the customer's specifications to increase the useful area, the proposal is based on the design of a mezzanine over the central space, taking advantage of the high ceilings characteristic of the constructions of this period. This intermediate floor thus integrates a bedroom, an additional and open space over the living room, and above all private and separate. The lower floor develops into the living and dining room, which also includes the kitchen. The remaining service spaces like the bathroom and storage are concentrated in the surplus area, interior and under the bedroom.
© Arménio Teixeira
(Arménio Teixeira)
© Arménio Teixeira
(Arménio Teixeira)
在语言方面,该项目力求尊重建筑物的历史,既以木材为主,又通过重新解释当时建筑的一些具体要素,即窗和高边。此外,天花板的设计突出在阁楼,因为可以追溯到葡萄牙民居的形象。“房子内的房子”是这个项目的概念和愿望,以提高这套公寓的空间与家庭舒适的特点,一个独立的房子。
In terms of language, the project seeks to respect the history of the building, both by the predominance of wood and by the reinterpretation of some specific elements of the architecture of this time, namely the window shutters and the high skirtings. In addition, the design of the ceiling stands out on the mezzanine because goes back to the image of the Portuguese vernacular house. The "house within the house" is the concept of this project and the desire to enhance the space of this apartment with the domestic comfort characteristic of a detached house.
In terms of language, the project seeks to respect the history of the building, both by the predominance of wood and by the reinterpretation of some specific elements of the architecture of this time, namely the window shutters and the high skirtings. In addition, the design of the ceiling stands out on the mezzanine because goes back to the image of the Portuguese vernacular house. The "house within the house" is the concept of this project and the desire to enhance the space of this apartment with the domestic comfort characteristic of a detached house.
© Arménio Teixeira
(Arménio Teixeira)
Architects Luís Peixoto
Location Rua Sá da Bandeira, Porto, Portugal
Team Rodrigo Gorjão Henriques, Luciana Rocha
Area 807.293 ft2
Project Year 2018
Photographs Arménio Teixeira
Category Renovation
Manufacturers Loading...
客服
消息
收藏
下载
最近


















