查看完整案例


收藏

下载
© José Hevia (JoséHevia)
建筑师提供的文字说明。“CasaForbes”是一个单一的房子,它大胆地在科斯塔德的山坡上观看,在整个帕尔马湾上空观看。在巴比伦的悬挂花园建造了一个驯化的自然环境的道路上,《财富》杂志在这种看似不可能的地形中提供了必要的水平性。
Text description provided by the architects. Casa Forbes is a single house that looks boldly on a hillside of Costa d’en Blanes with views over the entire Bay of Palma. In the way in which the hanging gardens of Babylon built a domesticated natural environment, the Casa Forbes provides the necessary horizontality in this seemingly impossible terrain.
Text description provided by the architects. Casa Forbes is a single house that looks boldly on a hillside of Costa d’en Blanes with views over the entire Bay of Palma. In the way in which the hanging gardens of Babylon built a domesticated natural environment, the Casa Forbes provides the necessary horizontality in this seemingly impossible terrain.
© José Hevia(JoséHevia)
当你接近它的入口时,斜钢板条的外壳在横向上切割了景观。在克服了隐藏在他们身后的景色之后,视力从你走向花园的屋顶,一个第五个 Faramade,它展示了与一个有价值的玻璃体腔的铺装的浴室音乐会的香味和颜色……每天!
The outer enclosure of oblique steel slats cut kinetically sieves the landscape as you approach its entrance. After overcoming the bath of views that hides behind them, the vision escapes you towards the garden roof, a fifth façade that displays aromas and colors in concert with a paved solarium worthy of a glass of cava ... per day!
© José Hevia(JoséHevia)
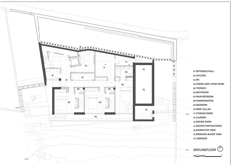
Ground floor plan
© José Hevia (JoséHevia)
要想进入这所房子,你必须从楼梯上跳到起居室、餐厅、露台和地中海的主楼层,那里的客厅、餐厅、露台和地中海与环绕着它的石材的平静节奏融合在一起:石灰质的石板,白色的母马石德卡斯·巴索 (De Cas Busso),还有一堵石堡墙,从那里出现了圆柱形的圆柱体。
To enter the house you have to dive through a staircase that descends to the main floor where the living room, dining room, terrace and Mediterranean merge to the calm rhythm of the stone that surrounds it: slabs of calcareous stone, white mares stone de cas busso and a wall of gabions from which corten steel cylinders emerge landscaped.
Axonometry 01Axonometry 01
作为主人,厨房欢迎您使用一个大橡木岛来准备和交谈,同时稍微将进入主房间的通道与社交区域隔离开来。它是在这层楼,业主的房子,包括他们的房间-- 浴室更衣室,在那里觉醒需要没有眩晕,人们可以淋浴与大海在电影院。在地板的对面,有一个休息室和餐厅,周围是露台,一个游泳池和一个蔬菜和石头垂直花园。
As a host, the kitchen welcomes you with a large oak island to prepare and converse while slightly isolates the access to the main room from the social area. It is on this floor where the owners’ house is housed, including their room - bathroom - dressing room, where awakening requires the absence of vertigo and one can shower with the sea in cinemascope. On the opposite side of the floor, there is a lounge and dining room surrounded of terraces, a swimming pool and a vegetable and stone vertical garden.
© José Hevia(JoséHevia)
First floor plan
一楼平面图
© José Hevia (JoséHevia)
南阳台是享乐主义和展示主义,与玻璃栏杆,以避免任何干扰之间的地平线和房子,甚至游泳池有眼睛看海。另一方面,北面的露台享受着这块高达 5 米高的石植物巨人给它的亲密,一堵低语和倾听的墙。
The south terrace is hedonistic and exhibitionist, with glass railings to avoid any interference between the horizon and the house, even the pool has eyes towards the sea. On the other hand, the terrace to the north enjoys the intimacy that this stone-vegetal colossus of up to 5m high gives it, a wall that murmurs and listens.
© José Hevia(JoséHevia)
浸没到较低的地板是由一个板的螺旋挖掘和一组皮孔灯作为一岸水母。
The immersion to the lower floor is carried out by a slab with a spiral dug and a group of lenticchias lamps as a bank of jellyfish.
The immersion to the lower floor is carried out by a slab with a spiral dug and a group of lenticchias lamps as a bank of jellyfish.
© José Hevia(JoséHevia)
这幢房子的最后一层是业主送给他们的家人和朋友的礼物,3 间套房卧室有一个前阳台,可以让他们从现实中抽象化,而他们可以成为你的客人。在这一层的地下有一个仓库、酒窖 (向照片卷的分发机致敬)、机房和带出口的洗衣房。
This last floor of the house is the gift of the owners to their family and friends, 3 en-suite bedrooms with a front terrace that will allow them to abstract from their reality while they can be your guests.
On the buried side of this level are organized a warehouse, the wine cellar (tribute to the dispensers of photo reels), the machine room and the laundry with exit to the outside.
© José Hevia(JoséHevia)
在外面,对曾经矗立在这片山坡上的地中海森林的重新诠释,原产于一套完整的橡树,我们延伸出了圆滑的钢楼梯和密实的泥土,把石榴石边缘与灌木和树木的植被结合起来,支持恢复原有的森林。
And on the outside, the reinterpretation of the Mediterranean forest that once stood on this hillside, born from an intact set of oaks, we extend corten steel stairs and compacted earth, draining gabion margins together with a combination of shrub and tree vegetation that support the restitution of the pre-existing forest.
© José Hevia(JoséHevia)
这座悬挂花园是用岛上的材料建造的,是由太阳能电池板强化的飞机提供动力,并由家庭自动化控制,让他们在冬天和夏天都能看到大海,在冬天和夏天游泳,在移动的触碰下控制他们的设施,最重要的是,他们在每个角落都能感受到马略卡的感觉。
This hanging garden is built with materials from the island, is powered by aerotermia reinforced with solar panels and controlled by home automation to get them to take a look at the sea, swim both in winter and summer, control their facilities at the touch of mobile and above all they feel Majorca in each of its corners. © José Hevia (JoséHevia)
Architects Miel Arquitectos
Location Costa d’en Blanes, Spain
Area 654.0 m2Project Year 2018
Photographs José Hevia
Category Houses Interiors
客服
消息
收藏
下载
最近




































