查看完整案例


收藏

下载
© Cris Beltran
克丽丝·贝尔特兰
架构师提供的文本描述。这是一座十八世纪的建筑。格拉纳达山的老总部。就像一家公共典当店。令人惊奇的情况(就在阿尔罕布拉河前面),空间的公共规模及其配置使得这个项目成为一个特殊的项目。我们努力保持它的气氛,并提出一种新的语言,以改善现有的建筑。
Text description provided by the architects. This is a XVIII century building. The old headquarters of the “Monte de Piedad” de Granada. It was like a Public Pawn shop. The amazing situation (just in front of the Alhambra), the public scale of the spaces and its configuration made this project a special one. We have tried to keep its atmosphere and propose a new language that improve to the existing building.
Text description provided by the architects. This is a XVIII century building. The old headquarters of the “Monte de Piedad” de Granada. It was like a Public Pawn shop. The amazing situation (just in front of the Alhambra), the public scale of the spaces and its configuration made this project a special one. We have tried to keep its atmosphere and propose a new language that improve to the existing building.
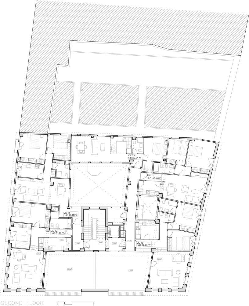
Ground floor plan
其战略是加强建筑中存在的不同的建设性类型,并为屋顶增加一个新的类型。
The strategy has been to reinforce the different constructive typologies existing in the building and add a new one for the roof.
The strategy has been to reinforce the different constructive typologies existing in the building and add a new one for the roof.
© Cris Beltran
克丽丝·贝尔特兰
主要法塔德的EStructure是最高贵的,是用一根很大的木梁做成的。
The estructure of the Main Façade is the most noble, made with a very large wood beams
The estructure of the Main Façade is the most noble, made with a very large wood beams
庭院周围的EStructure是一种更具国内特色的建筑体系。后院花园的外墙是最朴素的建筑。顶板将按照建筑结构的逻辑演变,采用钢结构和拱形陶瓷砌块来解决。建筑中的最后一块板(大约在二十世纪中叶左右)是用砖块做成的拱门。
The estructure around the patio are a more domestic constructive system. And the backyard garden façade is the most modest construction. The top roof will be resolved with a steel structure and arches ceramic blocks, following the logic evolution of the building construction. The last slab made in the building (around the mid of XX century) consisted in arches made with bricks.
The estructure around the patio are a more domestic constructive system. And the backyard garden façade is the most modest construction. The top roof will be resolved with a steel structure and arches ceramic blocks, following the logic evolution of the building construction. The last slab made in the building (around the mid of XX century) consisted in arches made with bricks.
© Cris Beltran
克丽丝·贝尔特兰
在装修方面,我们提出了中性材料,以强调我们所保留的现有元素:水工地板,旧砖墙,石柱,装饰线材…。总之,所有代表建筑物记忆的东西都是为了保持它的气氛。
About the finishing, we propose neutral material, to emphasize the existing elements that we keep: hydraulic floors, old brick walls, stone columns, decorated lintels … in conclusion all the things that represented the memory of the building to keep its atmosphere
About the finishing, we propose neutral material, to emphasize the existing elements that we keep: hydraulic floors, old brick walls, stone columns, decorated lintels … in conclusion all the things that represented the memory of the building to keep its atmosphere
© Cris Beltran
克丽丝·贝尔特兰
Architect DTR_studio architects
Location Carrera del Darro, 51, 18010 Granada, Spain
Authors Jose Maria Olmedo, Jose Miguel Vázquez
Area 1407.0 m2
Project Year 2016
Photographs Cris Beltran
Category Residential
Manufacturers Loading...
客服
消息
收藏
下载
最近































