查看完整案例


收藏

下载
曼哈顿西切尔西(West Chelsea)一个光线昏暗的内部空间,被建筑师丹尼尔·劳切尔(Daniel Rauchwerger)和诺姆·德维尔(Noam Dvir,邦德[BoND]饰)改造成了一个明亮的阁楼式空间。这套公寓Chelsea Apartment位于1910年的一幢小公寓楼的三层。
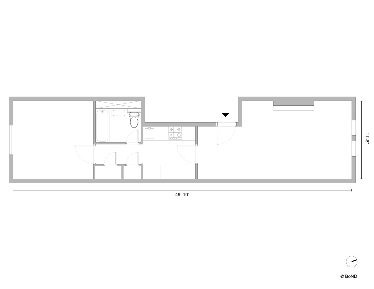
这套公寓长11.5英尺,长50英尺(约合520平方英尺),其布局是纽约许多战前公寓的典型。类似于“铁路公寓”,它采用了一个狭长的矩形形状,从建筑的正面和背面吸收光线。在最初的布局中,在邦德的介入之前,公寓被分为三个不同的部分:一个客厅,一个卧室,和一个封闭的走廊连接两个部分——厨房和浴室。建筑师拆除了这些隔断,创造了一个连续的空间,庆祝公寓的细长比例和最大限度的深度错觉。一系列从厨房线性延伸到卧室的
嵌入式照明装置,以及强调空间长度而非宽度的木地板图案,进一步增强了强制透视效果。改造创造了西墙(公寓的公用设施、服务和硬件都位于西墙)和东墙之间的明显区别,东墙为艺术展示留下了空白。
改造利用了定制的设计细节与现成的产品相结合。例如,壁炉就是这套公寓的原始(和功能)固定装置。它的砖芯由一块切割折叠的不锈钢板包裹,这是BoND在唐人街的一个当地工作室委托制作的,给这个房间带来了当代的优势。金属效果是呼应使用黄铜灯具,挂在餐桌上方。厨房的特色是“被砍坏”的宜家橱柜、一体化的电器和定制的大理石板。
BoND的其他项目——建筑和媒体办公室——包括一个关于国家图书馆的建筑和历史的开创性展览,以及纽约的住宅和零售项目。
客服
消息
收藏
下载
最近






















