查看完整案例


收藏

下载
架构师提供的文本描述。主人去世后继承的原主人孙子女的家庭住所。翻修工作的重点是保留原有财产的老式部分,同时对其功能、抗震能力和保温进行升级。
Text description provided by the architects. A residence for the family of the original owner’s grandchild inherited after the owner’s passing. Renovation work focused on preserving vintage portions of the original property while making upgrades to its functionality, seismic capacity, and thermal insulation.
Text description provided by the architects. A residence for the family of the original owner’s grandchild inherited after the owner’s passing. Renovation work focused on preserving vintage portions of the original property while making upgrades to its functionality, seismic capacity, and thermal insulation.
© Hirokazu Fujimura
(3)藤村裕久(Hirokazu Fujimura)
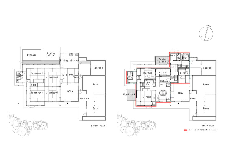
Floor Plan - Before and After
平面图-前后
© Hirokazu Fujimura
(3)藤村裕久(Hirokazu Fujimura)
厨房和餐厅提供空间让人们在亲密的家庭关系中度过时光,客厅的设计具有与大庭院相结合的特点。半透明的窗格提供了软连接空间的效果,而不是把它们完全分开。
The kitchen and dining room offer spaces to spend time in close family connection and the design of the living room features integration with the large yard. Semi-transparent paneling offers the effect of softly connecting the spaces rather than partitioning them off completely.
The kitchen and dining room offer spaces to spend time in close family connection and the design of the living room features integration with the large yard. Semi-transparent paneling offers the effect of softly connecting the spaces rather than partitioning them off completely.
© Hirokazu Fujimura
(3)藤村裕久(Hirokazu Fujimura)
© Hirokazu Fujimura
(3)藤村裕久(Hirokazu Fujimura)
在将时间风化的材料与新的、未经过特殊处理的新材料结合起来时,这种特性似乎达到了一定的深度。
In its combining of time-weathered materials with new, left just as they are without particular treatment, the property seems to have attained a certain depth of character.
In its combining of time-weathered materials with new, left just as they are without particular treatment, the property seems to have attained a certain depth of character.
© Hirokazu Fujimura
(3)藤村裕久(Hirokazu Fujimura)
Architects Takashi Okuno & Associates
Location Japan
Lead Architect Takashi Okuno
Area 191.69 m2
Project Year 2018
Photographs Hirokazu Fujimura
Category Renovation
Manufacturers Loading...
客服
消息
收藏
下载
最近



















