查看完整案例


收藏

下载
Project: New-Build Courtyard Houses Architects: FORMstudio Location: London Borough of Southwark, United Kingdom Lead Architects FORMstudio Landscape Architects Indigo Low Carbon Consultancy Gecko Area 240.0 m2 Project Year 2018 Photography: Bruce Hemming
项目:新建庭院房屋建筑师:FORMstudio地点:伦敦南华区,英国首席建筑师事务所景观设计师英迪戈低碳咨询公司壁虎240.0平方米项目2018年摄影:布鲁斯·赫明
Construction of FORMstudio’s two new-build courtyard houses is now complete. This project is a response to the Mayor of London’s Policy to optimise the re-use of small sites across London.
建造工作室的两个新建造的庭院住宅现在已经完成了。这个项目是对伦敦市长的回应,以优化在伦敦各地重新使用小型网站的政策。
Malcolm Crayton, Director at FORMstudio comments: “The GLA’s draft New London Plan calls for an increased focus on small sites, which need to play a much greater role in housing delivery. Boroughs are encouraged to pro-actively support well-designed new homes on small sites through both planning decisions and plan-making in order to significantly increase the way in which challenging small sites can meet London’s housing needs – Benbow Yard is a perfect response to this policy.”
FORMstudio主任Malcolm Crayton评论说:“GLA的新伦敦计划草案要求更多地关注小型土地,这需要在提供住房方面发挥更大的作用。鼓励各行政区通过规划决策和制定计划,积极支持在小型土地上设计良好的新房,以便大大增加具有挑战性的小土地能够满足伦敦住房需求的方式-本博场是对这一政策的完美回应。“
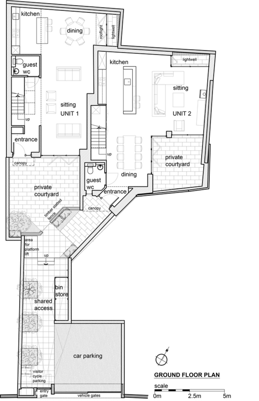
The tight, irregular brownfield plot, previously occupied by a metal workshop, is constrained by narrow access, outlook and daylight issues, and these have to an extent determined the form and fenestration of the pair of new-build, 2-storey, 3-bedroom family houses.
这片狭小、不规则的褐田原被一家金属作坊占据,但受到狭窄通道、前景和日光问题的限制,这些都在一定程度上决定了这对新建筑、两层楼、三卧室家庭住宅的形式和开窗。
The principle barrel-vaulted design is semi-submerged below the existing ground level to minimise the bulk of the new structure. On the East side, where the boundary is closest to the existing terrace of houses, the first floor is set back to allow for an extensive sedum roof, providing space and outlook between the two. New windows are orientated to the south to take advantage of unrestricted views, maximise natural light and avoid overlooking, with living spaces at the lowered level opening onto private courtyards.
基本的桶拱设计是半淹没在现有的地面水平以下,以尽量减少新结构的大部分。在东边,边界离现有的房屋露台最近,一楼向后建了一个宽阔的刚玉屋顶,为两者提供了空间和前景。新的窗户定位在南方,利用不受限制的景观,最大限度地利用自然光和避免俯瞰,居住空间在较低的水平开放到私人庭院。
The ground floor is in pale buff brick with the upper barrel-vaulted storey finished in zinc standing-seam cladding; materials which reference the industrial heritage of the site but articulated with a refined level of detailing to create a sense of substance and quality.
底层是浅褐色的砖块,上面的桶形拱形层是用锌立缝包层完成的;材料参考了现场的工业遗产,但结合了精细的细节水平,创造了一种物质感和质量感。
客服
消息
收藏
下载
最近

















