查看完整案例


收藏

下载
Project: Wakecrest Residence Architects: ShubinDonaldson Location: Malibu, California Area: 2500 ft2 Year 2017 Photography: Benny Chan
项目:Wakecrest住宅建筑师:ShubinDonaldson位置:加州Malibu地区:2500ft22017年摄影:BennyChan。
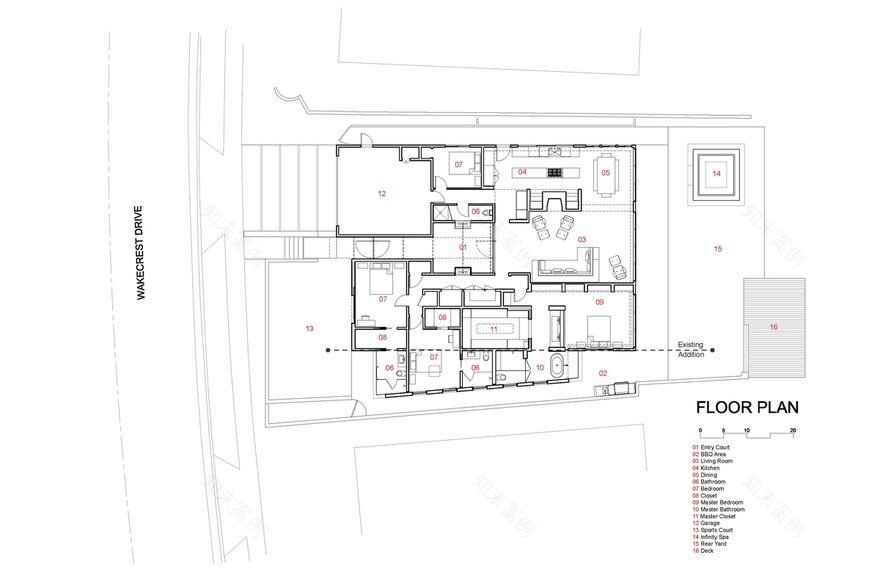
The Wakecrest Residence is a residential renovation exercising the deliberate peeling back and distilling of an original 1962 enclosure organized around a dramatic 180-degree view over the Pacific Ocean in Malibu California. Exposing and refinishing particular features of the existing structure such as the irregular-width wood ceiling boards lining the iconic pitched roof celebrate the memory of the former structure.
韦克斯特住宅是一种住宅改造,对1962年的原始外壳进行刻意的剥离和提炼,围绕着加利福尼亚马利布太平洋180度的戏剧性景色组织起来。暴露和改善现有结构的特殊特征,如不规则宽度的木天花板,衬里的标志性倾斜屋顶,庆祝记忆前的结构。
Home to Architect Russell Shubin, a Founding Partner of ShubinDonaldson, a Southern California based architecture firm specializing in high-end homes, the Wakecrest Residence has been a passion project with multiple iterations. With the recent addition to the home, Russell’s personal vision for the home has finally been completed.
建筑师拉塞尔·舒宾(RussellShubin)是位于南加州的建筑公司ShubinDonaldson的创始合伙人,他的家专门从事高端住宅,Wakecest住宅一直是一个充满激情的项目。随着最近对家庭的增加,罗素对家庭的个人愿景终于完成了。
The axial program begins at the entry, emphasized by a floating glass canopy and flanking glazed lanterns flowing both figuratively and literally over the reflecting pool, in-between two principle volumes, and into the pitched central living space which is glazed on both ends to completely open up and unify the interior and exterior. The addition of the distinctly separate board-formed concrete bathroom bar expands the floor area of three-bedroom suites to the west while enhancing the purity of the primary building volumes. Floating glass extrusions frame the addition bringing balance to its visual weight while recalling the elements of the entry experience.
轴向程序从入口处开始,重点是一个浮动的玻璃天篷和侧面的玻璃灯笼,它们在倒影池上流动,在两个原形空间之间流动,并进入倾斜的中央生活空间,在两端都有玻璃,完全打开和统一了内部和外部。增加了明显独立的板状混凝土浴室酒吧,扩大了三居室套房的面积,向西,同时提高了初级建筑体积的纯度。浮式玻璃挤出机框架的增加,使其视觉重量平衡,同时回顾进入经验的要素。
The design intent refines the relationship between the pure forms distilled from a family of architectonic shapes set against the expansive backdrop of the ocean and distant horizon. Respecting the qualities of the original home through careful study and reinterpretation of its most appealing features while allowing the new design to integrate additional site considerations, Wakecrest contributes an increased level of attention to crafted detail and articulation, bringing new meaning and new life into this modern coastal retreat.
设计意图细化了在广阔的海洋背景和遥远的地平线背景下,从一系列建筑造型中提炼出来的纯形式之间的关系。Wakecrest通过仔细研究和重新解释其最吸引人的功能,同时允许新的设计结合更多的站点考虑因素,尊重原始家园的质量,为精心设计的细节和表达提供了更多的关注,为这一现代沿海静修带来了新的意义和新的生命。
客服
消息
收藏
下载
最近

















