查看完整案例


收藏

下载
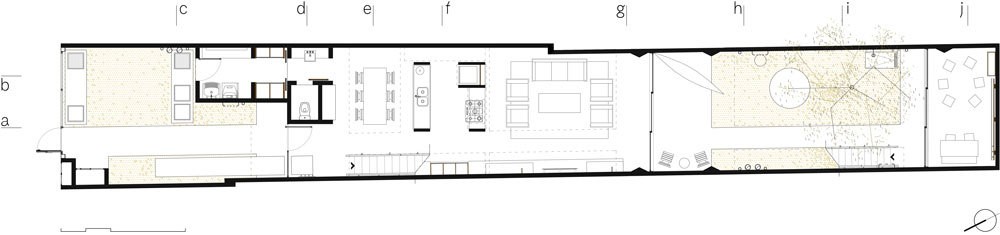
这座房子是向内的,某种程度上来说是内省的,这一特征来自于场地的具体限制——地块的线性构造,5x35米,以及它的邻居的高侧墙。正因为如此,室外的视野非常有限。除了前面的卧室,所有室内和室外的环境都转向庭院。
室外是布满草坪的花园,花园内有一棵树,你可以在那里洗澡或沐浴。室内是家庭的聚集区域——客厅、餐厅和厨房。它的不透明山墙屋顶不与侧墙接触,留下了一条玻璃条,让光线透过。这种技巧使时间流逝变得清晰,因为内部光线受到外部天气细微差别的制约,无论是阴天还是雨天,云的流逝还是太阳的简单运动。根据太阳的倾斜度,墙壁上的光影斑点的强度和形式每分钟都在变化——在夏天的中午,它变成了垂直的光线,暴露了不规则的墙壁,一些突出的块状物形成了阴影。
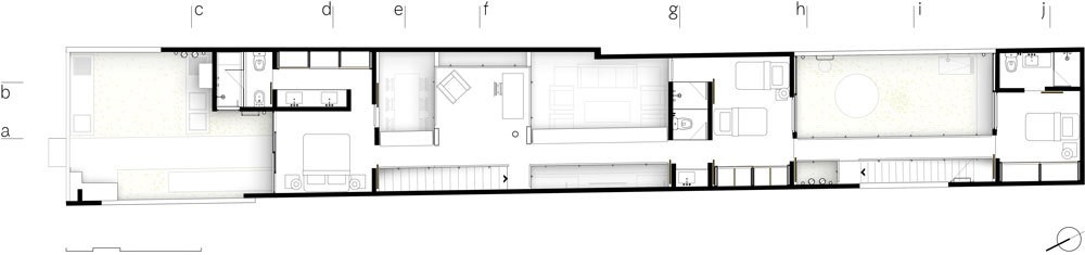
在上层,庭院嵌入了三个结构体块,每个体块都是一个房间。它们通过穿过两个庭院的走道纵向连接。走道作为屋顶,不接触房子的限制墙,走道很窄,让自然光线进入较低的楼层。建筑面积有所扩大,形成了一个夹层,一个私密的房间。在它的下面是厨房,这是房子的中心,可以用餐或者起居。
房屋的结构为结构砌体,走道和山墙屋顶的结构采用金属结构设计,楼板倒置,便于液压装置的配送,电气管道暴露在外,地面采用的是绿如草地的液压地砖。
客服
消息
收藏
下载
最近






































































