查看完整案例


收藏

下载
依山而居,临水而栖,人们喜于选择贴近自然有生命力的地方生活。在院子里撒满草籽,种几颗植株,便有了生机盎然的意蕴。私家有园林,宅间有绿地,现代楼宇之内,仍有飘窗与露台供栽培花草。人们时常会在住所的前后内外添置绿色,这是一种习惯,甚至像似一种与大自然和谐共生的本能,而这种自然而然的生活氛围也是从古到今人们一直推崇的宜居状态。
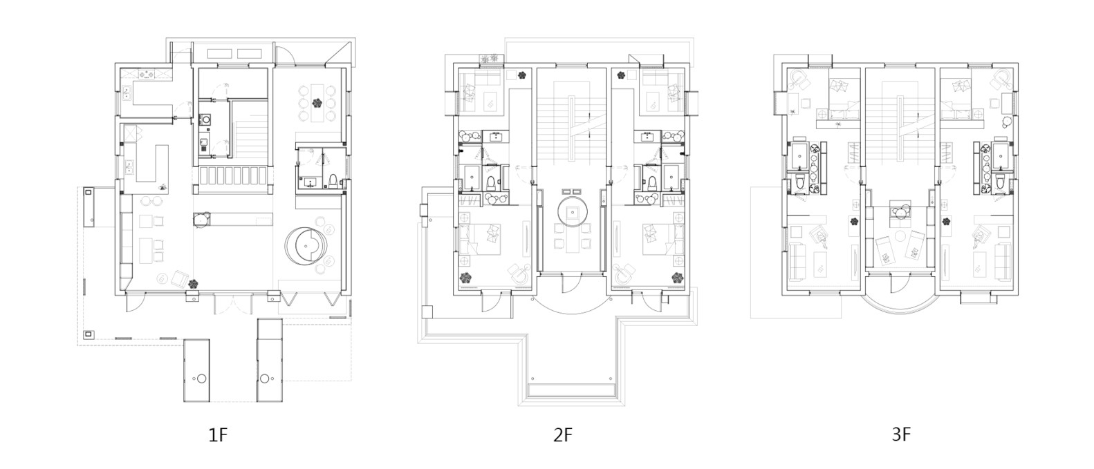
项目位于嘉兴海宁,原状是已经搬空的农民自建房,两栋建筑需改造为花园社区接待中心配套的住宿楼,分别以民宿酒店和专家接待楼的形式作为公寓和接待使用。
空间篇-局限与突破自建房格局特点为多房间,小开间,小进深,走廊区域易产生死角,无缓冲地带。这种看似面积利用最大化的平面分割相对来说比较闭塞与呆板,限制了居住者生活行为的自由多样化,无法满足舒适体验型住宿的需求从自建房到主题住宿的演变,即是突破这些传统格局的限制,在满足居住使用的基础上,将生活的场所丰富且艺术化,提升人们在不同区域的使用感受,同时将自然与生活得到更好的交融。
利用类似于景观布景的手法来丰富空间的层次,让狭小的房间充满丰富性并变得具有纵深感,以获得良好的视觉空间体验,并通过移动隔断与功能隔断的设计处理,让家具或者移门充当“隔墙”的角色,梳理公共空间、交通空间与私密空间的秩序。
打破传统的墙体隔断体系,解放不必要的分隔与限制,形成更自由的集会氛围,通过将“墙”的家具化、自然化,用温和的感观取代砖石砌体带来的僵硬与冰冷,营造出自然、随和的空间气氛,仿佛自然也在房间中轻盈的流动。
自建房因为“极限”的适用需求,导致楼梯间往往成为单纯的运输工具,呈现封闭阻塞的状态 。设计将隔墙虚处理,营造明快的氛围,令梯间平台也成为有自然花园般的休闲区域,使得各层都有一个居住房间以外的小型自由闲适的空间。
专家接待楼的原建筑开间与进深都极为狭小,楼梯正对入口,原来的客厅状态难以用作接待大厅对外服务,改造考虑一方面通过磨砂玻璃与吧台打造服务区形象面,周边则贯通流线解放室内空间;另一方面,借助全开敞移窗,模糊室内外门廊的界定,移窗打开形成的平台座位成为了享受植物的交流区,将原本局促的室内解放,带来清新的空气和绿意。
居住区拥有多样的居住体验,满足不同人群的到访,提供面向单人、双人乃至家庭留宿的房间。将房间居中位置的卫生间景观化处理,即可将狭长的空间分隔成两块尺度较为宜人的区域,并提供了起居、会谈或者扩容住宿的功能,可供住客灵活使用。另一方面,景观花池的设置也给房间营造了绿色有氧的宜居之感。
感官篇-模拟与创作天井、中庭、飘窗可以看作是生活与自然进一步的融合,这些模糊了室内外的区域表达出人们对于自然的向往。人们习惯于在天井和院落里相互交流,品茶读书;乐于在拥有飘窗和露台的位置接纳阳光并打理花草。
设计将这些生活与自然中的细节与规律引入改造后的空间,在室内模拟“天井”的氛围,以使空间明快,同时创造人与植物交互的类飘窗区域,打造自然而然的场所,给予室内自然界的活力。
照明式虚拟"天井"的设计让通长的公共区不显单调,也满足了中心偏暗区域的照明需求。“天井”多针对活动交流区设置,模拟庭院贴近自然的同时也显露出该区域的开放属性。
适当选择靠近外墙与隔墙的区域作为植物种植区,削弱了小尺度空间内墙体给人的压迫感,使空间充满了自然的气息,呈现出丰富有趣的一面。
时间篇-园艺的故事时间对于自然来说,往往意味着生长与进化,其实建筑也是如此。几个月的时间,爬藤便开始沿着金属网栏板向上生长,园艺接待中心的居住区也随着业主的管理和人员的入住开始有了变化,这里可以寻见植物生长的痕迹,激发人们对于生活空间的创意,建筑也慢慢地显露出和谐的生活气息与自身的性格。
客服
消息
收藏
下载
最近





































