查看完整案例


收藏

下载
宸桢建筑设计上海事务所创始人兼首席设计
抛开一切冗余的元素,这才是设计最本质的样子。
这个房子在上海市中心的一个里弄小区里,建筑有效(使用)面积为80平米。原来是对外出租的,去年他们找到我,说已经收回而且不想闲置浪费了,所以打算把这里改造成时下简约的住所,以供自己使用。
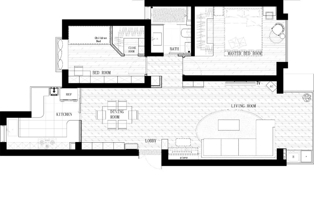
(改造前)进深不足4米,宽度15米,悠长狭窄,层高也不够。功能区的划分比例失调,储藏空间也不够且分布不均,厨房区域呈现“H”型,是很“典型”的两房两厅。
(改造后)我们改造的第一步,就是把进户大门加宽加高,在视觉上给人一种磅礴的感觉。因客厅进深较窄和承重墙的不可控性,所以没有放置太多的柜体,我们在局部用上了镜子,在空间上呢达到了一定的“拓展”。
其次将餐厅客厅两面墙的长度分别做了“加减法”,从而规避了大门正对卫生间的尴尬。
我们在餐厅处设计了一排满顶的柜体,在保证餐厅收纳的同时,也不影响四周过道的行走。
为了使光线能更充分的进入到餐厅,我们把(以前)连接餐厅和厨房的墙体打掉,用灰玻来替代。
厨房区域我们把原本空间被一分为二的墙给去掉了,所有的管道预埋,这样呢水槽、电器和橱柜在使用上就方便了不少,也增加了利用率和完整性。
过道的地方我们做了一组“巧克力”色的展示柜,用来划分私区和公区,从而达到一式两用的私密性和隔音效果。
卫生间其实挺狭小,但该有的功能都不能少的,我们则安置了南北向的淋浴房来取代浴缸,同时用了暗藏马桶和挂壁洗衣机,这样就能给过道让出一些空间,不至于冲撞。
书房门口我们利用墙体改造后的空隙安排了一个“隐形”柜,来进行收纳。
因业主说家中物品颇多,需要大量藏东西的地方,我们则在书房也安置了一个半敞开的衣帽间和整排的书柜,平时在这里看看书听听音乐,也是一种跟生活的交流。
主卧的衣帽间也是我们为客户量身打造的,我个人是不太喜欢柜体做半截高的,容易藏灰而且不够用,衣帽间是家里收纳最为重要的地方之一,所以要尽可能的把实用性最大化。
很多人都质疑公区用地砖老幼不便的问题,我觉着它自身的美和稳定性也是一种特色,鱼和熊掌不可兼顾吧。
为了使客厅有效面积的最大化,我们把原本阻隔客厅和阳台的玻璃门给拆除了,让其(客厅和阳台)合二为一,阳台用了大面积的落地玻璃,天气好时坐在这里发发呆,会不断翘着脚说,阳光真好,这样不断的重复不自觉的说出来。
建筑原始图(Architecture Plan)
平面布置图(Plan)
宸桢建筑设计事务所创始人兼首席设计
上海的80后设计师,擅长老房规划,商品样板房,蜗居改造等住宅类设计,完成了众多代表性作品,团队始终注重项目设计的独特性与前瞻性,坚持文脉延续、艺术感知及心理体验的有机融合,在感性中创作,在理性中思考,为每一个设计作品打造最合理合身的设计方案,理念:抛开一切冗余的元素,这才是设计最本质的样子。
艾鼎奖:住宅优秀奖、17年度十大新锐
2018中国建筑装饰奖:商品住宅铜奖
DJSER CONGRESS 2018中国地产:年度贡献奖
华鼎奖:住宅空间银奖、18年度最具工匠精神设计师
亚太空间设计奖:空间魔法师
40UNDER40: 2018中国上海(省榜)年度设计杰出青年
上海美丽心灵基金会爱心设计师
项目名称 : 無問西東
项目风格 : 极简主义
项目类型 : 两房(老房改造)
设计施工 : 宸桢建筑设计事务所
主 创 : 昌立
项目地址 : 上海江苏路
面 积 : 100㎡
造 价 : 60W
竣 工 : 2018.04
建 材 : 素色砖、黑镜、柚木
上海中交三航天工程局办公楼
上海金陵东路生活广场改造
上海山鹰纸业总部office
客服
消息
收藏
下载
最近































