查看完整案例


收藏

下载
Project: Rammed Earth Extension – Down to Earth Architects: Steffen Welsch Architects Location: Melbourne, Australia Area: 193 m2 Year 2018 Photographer: Rhiannon Slatter
项目:夯实地球延伸-地面建筑师:Steffen Welsch建筑事务所所在地:澳大利亚墨尔本:193平方米2018年摄影师:Rhiannon Srat
Description by Steffen Welsch Architects: This design for a rammed earth extension to a Californian Bungalow goes back to personal key experiences of places. However, I was less interested in a building itself but the interaction it generated and asked why. That was our starting point. For this we wanted the design to take a backseat and stay unnoticed.
描述由SteffenWelsch建筑师:这个设计的夯土延伸到加利福尼亚邦加洛可以追溯到个人的关键经验的地方。然而,我对建筑本身不太感兴趣,而是对它所产生的互动感兴趣,并问为什么。这是我们的出发点。为此,我们希望设计在后座,并保持不被注意。
Paradoxically, the building then becomes active: spaces are connected to allow supervision or stimulate conversation, bathrooms become social, pockets were inserted to accommodate and make daily activities enjoyable.
矛盾的是,该建筑随后变得活跃起来:空间连接起来,允许监督或刺激谈话,浴室变得社交化,插入口袋以容纳和使日常活动愉快。
Materials and details were chosen and developed for what they can offer: solar heat radiating from walls, natural ventilation to feel the breeze, timber posts you can lean and benches you can jump on.
材料和细节是为他们所能提供的:从墙壁散发的太阳热,感受微风的自然通风,你可以倾斜的木材柱和你可以跳跃的长凳。
What was the brief? The brief was for a long term home for a family with 2-3 kids and ability to accommodate guests over longer periods of time.
简报是什么?简报是为一个有2-3个孩子的家庭提供一个长期的住所,并且能够在更长的时间内容纳客人。
We added low cost operation, current and future functionality, evolving privacy needs and future accessibility to the brief.
我们增加了低成本的操作,当前和未来的功能,不断发展的隐私需求和未来的可访问性的简介。
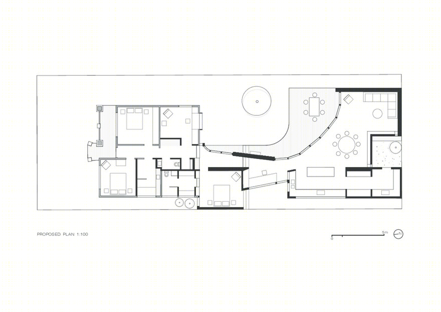
The new home is divided into four zones: children and guests, parents, communal and transitional areas. Every zone has its own outdoor space.
新房分为四个区域:儿童和客人、父母、公共区和过渡区。每个区域都有自己的室外空间。
Joinery is located, considered and detailed to accommodate daily activities for both children and adults from storage of clothes, schoolbags, sports gear to electronic devices.
细木工的位置,考虑和详细,以适应儿童和成人的日常活动,从储存衣服,书包,体育用品,电子设备。
What are the sustainability features? To be sustainable, a building needs to minimize embodied and operational energy over its lifetime.
可持续发展的特点是什么?为了可持续发展,一座建筑物需要在其使用期间尽量减少其所体现的和运作的能量。
We take a methodical approach and break our ESD down into components: – design for future flexibility and changing use without needing alterations – passive solar design principles take precedence over anything else: zoning, layout, planning, building form, material selection, solar control and details that reduce thermal bridging – choice of materials with low embodied energy (rammed earth) – single glazing is banned The house (including the old) achieves an energy rating 3 stars (6) above target.
我们采取一种有条不紊的方法,把我们的ESD分解成几个组成部分:-设计未来的灵活性和改变用途,而不需要改变-被动太阳能设计原则优先于其他任何东西:分区、布局、规划、建筑形式、材料选择、太阳能控制和减少热桥接的细节-选择低能量材料(夯实土)-禁止使用单一的玻璃窗-房屋(包括旧的)达到比目标高出3星(6)的能量等级。
How is the project unique? A well performing house extension facing south on a small inner city block built in rammed earth is not easy to achieve.
这个项目有什么独特之处?一个良好的房子扩建朝南,在一个内部的小街区建设夯土是不容易实现的。
However, in this challenge was our opportunity: we decided that our extension will curl around to capture the sun, creating a communal courtyard and allowing the occupants to look at their own house rather than a paling fence.
然而,在这一挑战中,我们的机会是:我们决定,我们的延伸将卷曲,以捕捉太阳,创建一个公共庭院,让居住者看自己的房子,而不是一个栅栏。
The building uses the formal language of a Californian Bungalow with the combination of heavy and light materials and generous roofs without copying it. Rammed earth walls appear free standing and separated from a floating roof with wide overhangs providing shade in summer but letting winter sun inside.
这座建筑使用加州邦加罗的正式语言,它结合了厚重的材料和厚重的屋顶,而不抄袭它。夯实的土墙看上去是独立的,与漂浮的屋顶隔开,在夏天提供遮荫,但让冬天的阳光进来。
客服
消息
收藏
下载
最近




















