查看完整案例

收藏

下载
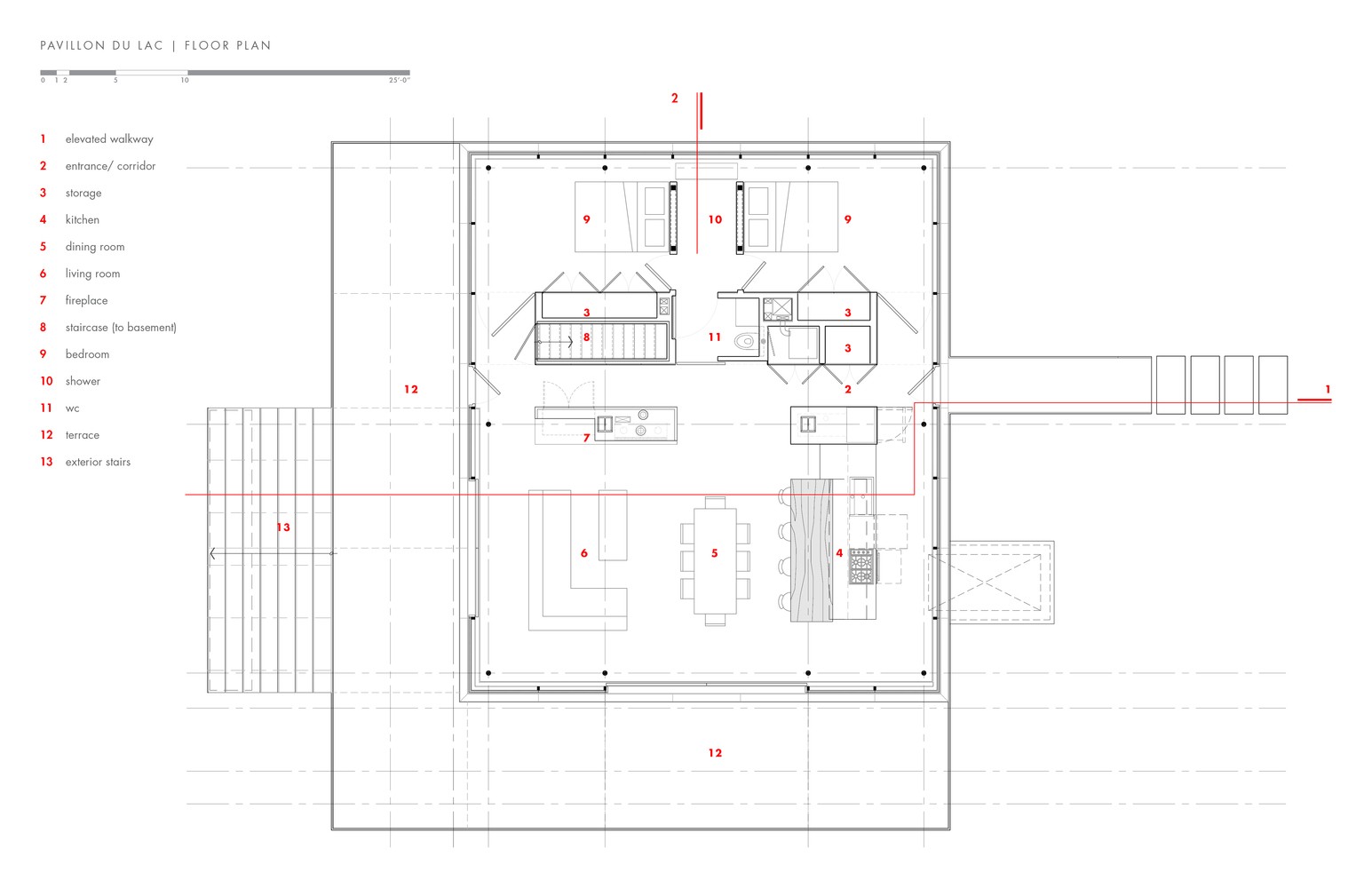
这个建筑坐落在一个缓坡向湖的地块上,四周环绕着一片古老森林中罕见的植物群。客房有两间卧室、浴室、厨房和起居区,结构是在狭窄的限制条件下建造的:它需要位于现有小屋的顶部,并与景观融为一体,同时保持在115平方米以下。
为了满足这些需求,设计创造了一个透明的玻璃体块,屋顶上的植被似乎与地面相连,漂浮的楼板被抬高,轻轻地踩在地面上。
完成的展馆被框在地板和天花板之间,两个结构都向水面悬挑,突出了建筑的水平性,放大了湖和森林的景色。反射面在白天反射周围的植被,在晚上变得完全透明。展馆的每个部分都有精确的细节,从透明的玻璃外角,到地板和天花板作为单一连续平面的表达。
受限制的景观处理包括展馆北部和东部的白色混凝土矮墙,地面上有大块石板,以适应等级的变化。一个高架人行道允许从道路进入主入口,一个大的但看起来没有重量的楼梯提供了一条从平台向下到湖的路线。
轻盈渗透到设计的每一个元素。支撑屋顶的全钢结构由圆形柱组成,选择圆形柱是为了尽量减少其视觉效果。晚上,抛光的混凝土地面将光线反射回天花板,强调屋顶的失重感。所有的机械和管道服务都隐藏在定制的木结构中,形成了一个纯木制的体量,也用于分隔公共和私人空间。该服务区四周覆盖柚木,与外部围护结构和天花板分开,因此屋顶似乎连续漂浮在室内空间之上,没有中断。
可持续发展是该项目的基础。高性能的围护结构包括滑动的三窗格玻璃,带有机动遮光罩和屏幕,以减少魁北克恶劣气候下的能源消耗,并允许在温暖的月份进行被动通风。电气和机械系统,包括作为调节温度的热体的辐射混凝土地板,由家庭自动化系统管理,以最大限度地提高效率。场地的自然特征保持不变,精心选择了新的景观组成部分,以尽量减少它们的影响——平坦的屋顶种植了在整个物业中发现的相同的本地物种。
客户本身是一名建筑师,她想要创建一个标志性的结构来招待客人,这个结构已经是一个宏伟的环境。通过有意义的协作,我们找到了一个创新的解决方案来满足严格的项目需求,创建了一个独特的体系结构,仍然允许这个不可思议的设置为自己说话。
客服
消息
收藏
下载
最近






















