查看完整案例


收藏

下载

翻译
Il Collegio _ RSA San Filippo Neri _ Lanzo T.se
relazione
Lanzo Torinese, località in zona pre-montana a 30 chilometri da Torino,ha sempre rivestito il ruolo di “fulcro” per le vallate circostanti per motivi geografici, economici, sociali e culturali. A partire dalla seconda metà del XII secolo, si fa riferimento al borgo medievale di “Lanceum”, il quale deve probabilmente la sua denominazione alla conformazione allungata sulla dorsale del monte Buriasco, assimilata a quella di una lancia.
Il monte individua, con i suoi 540 m di altitudine, la parte più elevata della città e si trova alla confluenza tra due fiumi: nel corso dei secoli ha rappresentato un punto nodale per le vallate circostanti, dal punto di vista geografico, storico e culturale.
La parte più alta del centro storico della città è un luogo dove l’architettura, come sfondo e talvolta come elemento fondamentale di chi lo vive, contribuisce a costruire la memoria della città, incarna le aspirazioni di chi la ha promossa nel tempo e riflette valori civici ed individuali.
Nel complesso dell’Ex Collegio Salesiano in Lanzo Torinese questi valori complessi e spesso conflittuali hanno trovato una soluzione positiva in una successione straordinaria di stratificazioni che ne caratterizzano la storia.
A partire dal periodo medievale fino ad oggi; da fortezza del Borgo Medievale dell’antica “Lanceum” sino alla seconda metà del XVI secolo, a convento dei Regi Padri Cappuccini dal 1612 al 1802, da collegio Convitto comunale sino al 1857, alla prima grande impresa salesiana fuori Torino dal 1864 sino agli anni 1997. Un denso intrecciarsi di avvenimenti storici e politici, dove l’immagine del complesso architettonico è stata oggetto di plasmazioni dello spazio secondo fattori temporali e culturali.
Dopo anni di abbandono e di progetti nel 2017 si avvia l’importante intervento di restauro e recupero funzionale del complesso con il primo intervento di recupero della manica ottocentesca; il programma è la realizzazione di una residenza sanitaria assistenziale da 100 posti letto, concluso nel gennaio 2019, con la realizzazione di un nuovo piazzale e parcheggio. L'edificio fu costruito da Don Bosco a partire dal 1864: fu la prima struttura salesiana fuori Torino; si sviluppa su quattro piani fuori terra con una tipica pianta a “L”. La manica longitudinale misura 70 metri e quella trasversale, con affaccio su piazza Albert, circa 24.
Nella costante dialettica tra storia e contemporaneità, tradizione e nuove esigenze sociali, la realizzazione di un nuovo polo del welfare è l’occasione per avviare un processo di riqualificazione del centro storico di Lanzo, da tempo caratterizzato, in particolare nella parte alta, da una aggravata condizione di desertificazione.
E’ un processo che conferma la centralità del tema collettivo nella città, espressione della civitas e composto da una sequenza di elementi urbani (la chiesa, la piazza, la scuola, la strada principale del commercio…), città pubblica e privata, esito della lenta stratificazione del tempo, che determina l’organismo urbano e ne caratterizza la sua identità.
Il recupero del complesso dell’Ex Collegio ristabilisce il ruolo dello stesso come centrale nella struttura urbana ed estetica di Lanzo.
Il progetto di recupero, inoltre, conferma e valorizza i principi insediativi, le direttrici di accessibilità e le straordinarie visuali che il complesso propone nel rapporto tra le emergenze interne allo stesso e quelle di paesaggio vasto verso le Valli.
Il progetto conferma la dialettica tra conservazione e innovazione, sui fronti esterni con il rinnovo degli apparati decorativi, dei materiali originali e l’innesto di elementi e volumi nuovi, nei locali interni con la valorizzazione del sistema a volte presente ai primi due livelli, la nuova articolazione delle camere di degenza e dei locali di servizio.
Qui un sistema di scatole interne alla struttura, ribassate rispetto alle volte, organizza il sistema dei locali servizi igienici delle camere, con una successione che scandisce ingressi e volumi .
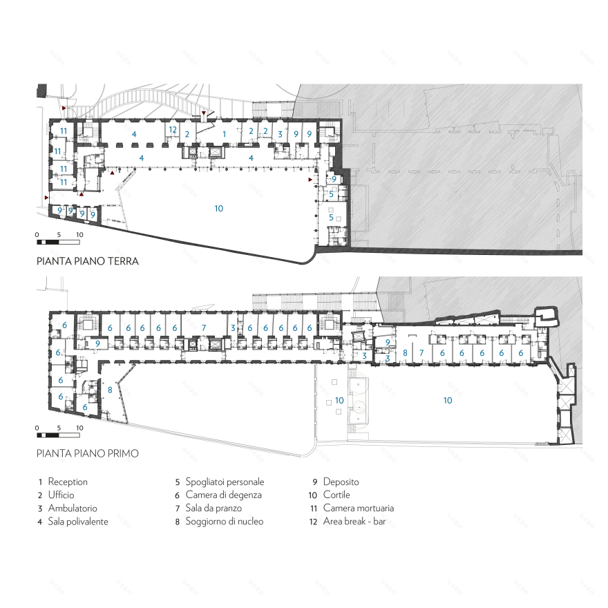
La RSA è organizzata, oltre il piano terra destinato ai servizi generali della struttura, in nuclei residenziali localizzati nei tre piani superiori. I nuclei dimensionati secondo i criteri normativi più recenti.
L’accesso principale alla nuova struttura é attraverso la “Piazza del Collegio”, ampio spazio aperto collocato sul fronte nord-est, che è stato totalmente rinnovato con un disegno che sovrappone i temi della mobilità veicolare con quelli dei percorsi pedonali di accesso. Il prolungamento della scala presente lungo il fronte a partire dalla chiesa progettata da Crescentino Caselli ha permesso l'abbassamento del piano di accesso e consentito la realizzazione di un camminamento esterno, lungo facciata, sul piano orizzontale. Il tema della dialettica tra l’esistente e il “nuovo” è ben visibile nel nuovo padiglione d'ingresso. Per l'entrata è stato realizzato un nuovo varco in posizione baricentrica rispetto alla facciata, caratterizzato da un piccolo padiglione metallico con rivestimento in lamiera e vetro laccato. Il piego del padiglione, disposto sul piano inclinato del camminamento, accompagna gli ospiti ed i visitatori all’interno della struttura.
Per i fronti verso il cortile a sud, il tema centrale è stato il recupero del porticato, che si trasforma in percorso di accesso caldo con grandi partizioni vetrate. Al piano terra si trovano gli ambienti per l’accoglienza alla RSA, gli uffici, le sale polivalenti, il locale per il culto. Nella porzione di porticato adiacente all’antico bastione delle mura medievali sono stati realizzati gli spogliatoi del personale e zone di deposito.
Ai piani superiori si sviluppano le aree residenziali, così articolate: ad ogni piano il corridoio di collegamento è collocato verso cortile. Le camere degli ospiti, le sale da pranzo, e gli altri servizi di struttura e di nucleo, sono localizzati nelle maniche verso cortile e su Piazza Albert.
La partizioni interne per le camere degli ospiti e per i locali di uso comune sono realizzati con tramezzi in corrispondenza dei voltini ad arco, tra una volta e l’altra, per non interrompere la geometria della volta stessa, lasciata a vista.
L’esigenza di garantire un opportuno standard dimensionale ai nuclei residenziali ha comportato la realizzazione di una nuova “addizione” alle superfici esistenti. In adiacenza alla facciata sud-est è stato realizzato un nuovo volume, caratterizzato da una pelle di rivestimento esterno in vetro che ospita i soggiorni di nucleo; la struttura in acciaio poggia su tre elementi a forcella. Lo spartito della facciata richiama, con elementi schiettamente contemporanei, i caratteri della decorazione di quella esistente: apparati decorativi, davanzali, imposta dei capitelli delle colonne del porticato.
Il tema della “addizione”, rispettosa del contesto ma evidente della discontinuità tra esistente e nuovo progetto, è presente anche nella successione spaziale interna: i nuovi volumi realizzati a secco che ospitano i servizi igieni e i locali di servizi delle camere di degenza caratterizzano la spazialità dei nuclei residenziali dei due piani costruiti con un sistema voltato.
客服
消息
收藏
下载
最近

































