查看完整案例


收藏

下载
这个房子是给一对在视觉艺术方面有独特品味的年轻夫妇设计的;他们一个是喜欢户外运动的玩具收藏家,一个是狂热的旅行爱好者。这对夫妇想要一所拥有大量开敞空间、充足新鲜空气的富有趣味性的房子。
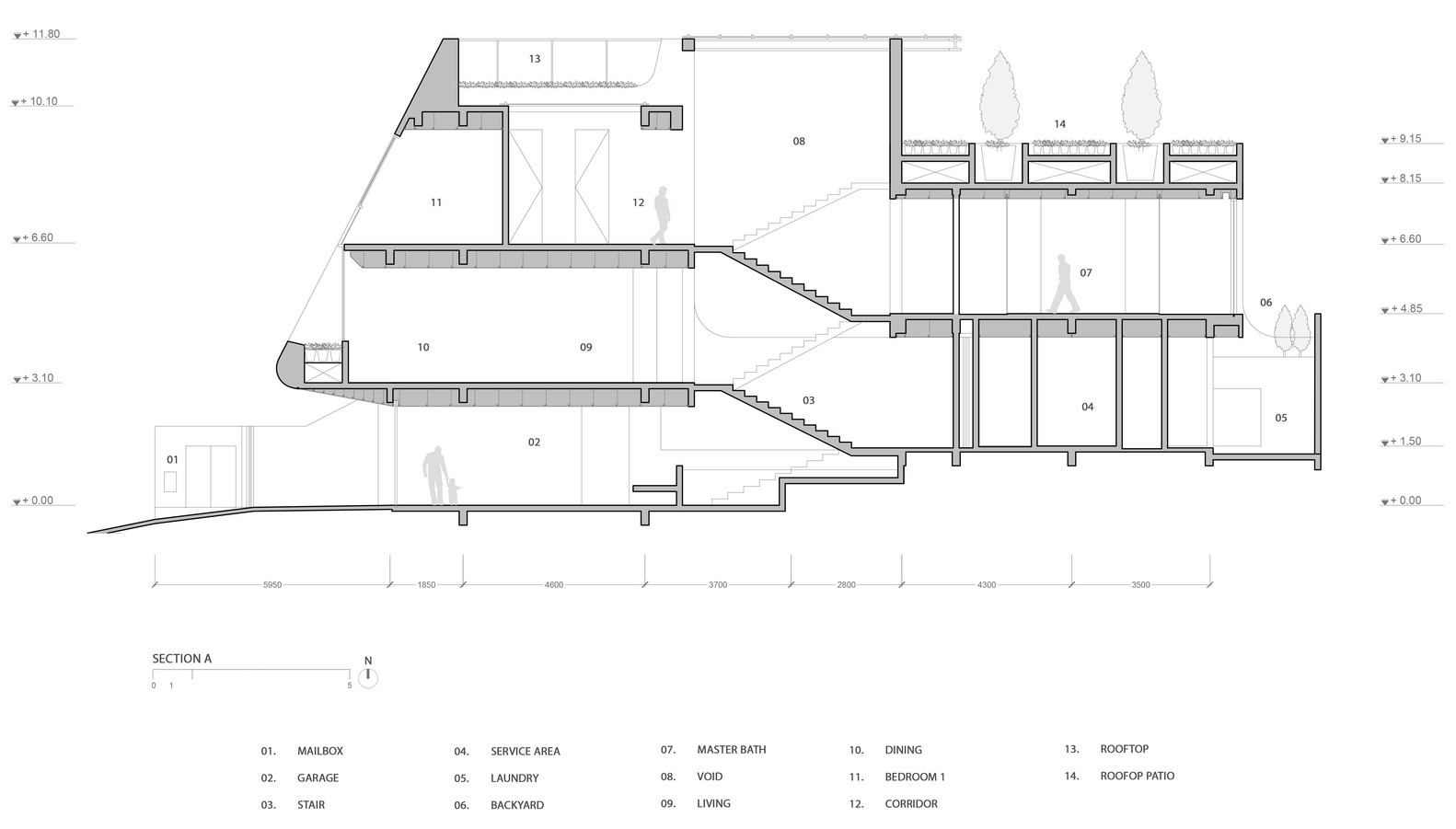
项目位于雅加达市中心,是一个宽7.5米,纵深30米的独特临街空间。这些场地条件影响了设计。在设计中,场地空间被划分为一栋三层和一栋两层的建筑,它们又带有一个前院、一个中庭和一个后院以保障交叉通风和面向花园的广阔视线。
这个设计让两个建筑体量拥有最大限度的自然采光,错层结构通过半室外楼梯连接,实现运动的流线。哈里曼住宅以一个具有微妙特点的平面图形式造型和周围周围覆盖着景观,成为了一个栖息于繁忙都市生活中的避难所。
客服
消息
收藏
下载
最近




























