查看完整案例


收藏

下载
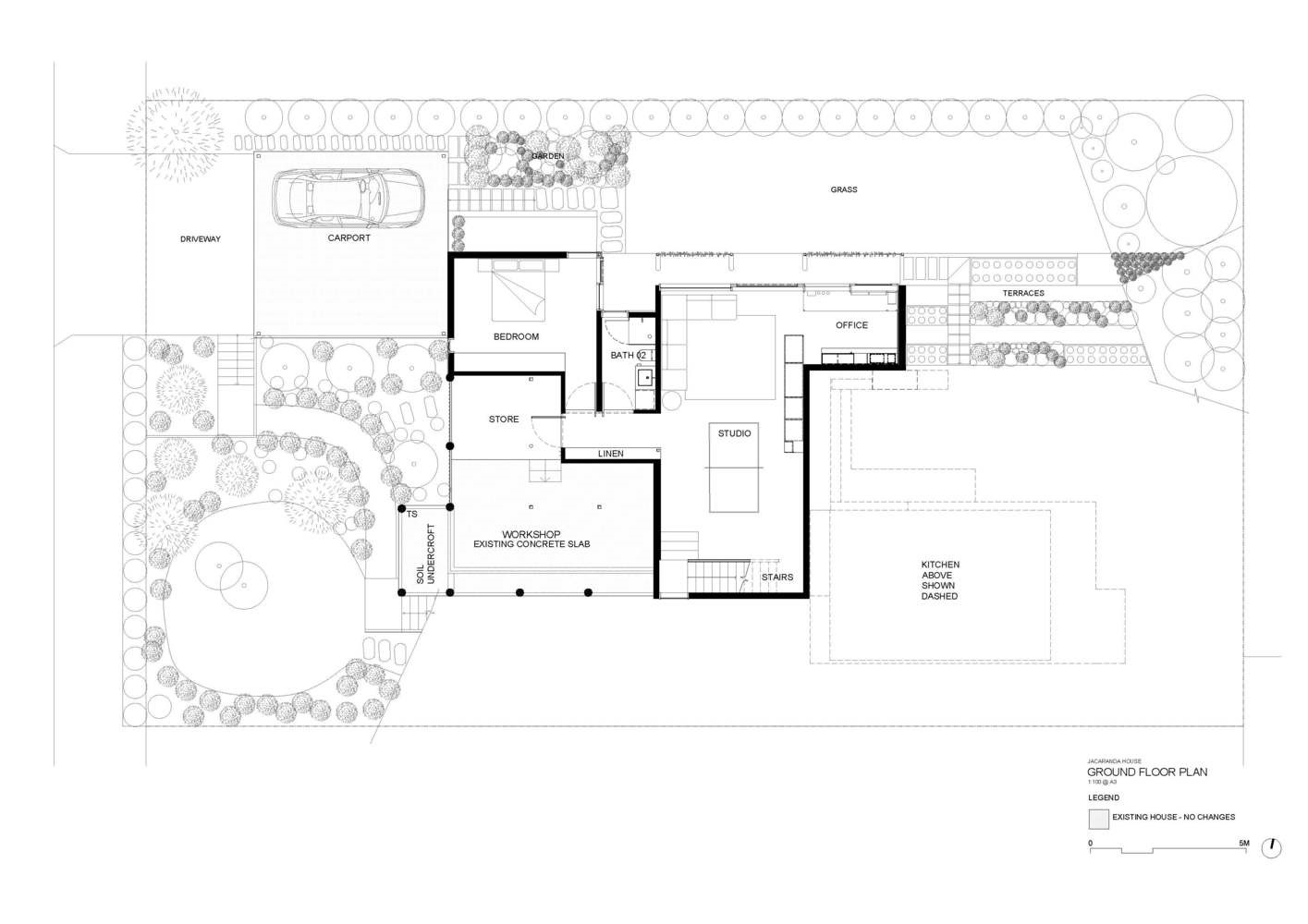
简言之,蓝花楹之屋的设计是想将1920年的Ashgrovian房屋(一种20世纪20年代末到第二次世界大战期间在昆士兰州布里斯班Ashgrove郊区建造的房屋)变成家庭避风港,并且可以灵活地满足未来20年不断变化的需求。虽然我的建筑工作室需要一个单独的空间,所有的核心家庭生活空间也需要在一个单一的水平和一个适度又亲密的规模。
在设计中至关重要的是保留建筑物核心的真实性以及昆士兰人内在的优雅。这就意味着要采用传统昆士兰建筑方式的语言和美丽的木材。
作为对设计理念的回应,第一个挑战和机遇就是利用斜坡上的垂直空间。通过在房子下面的山的雕刻,两个层面的生活会被创造出。下面是一个建筑工作室和工作间,平静地并被岩石和地球的热质量不断冷却和包裹。
上面是一个给一个轻松的昆士兰人提供所有日常家庭生活空间,横风吹拂。两个层面都被苍翠的草坪和花园布满,一系列的绿色露台从工作室层挤出,讲两层都联系在了一起。
对于上层来说,原始房屋的关键附加功能室家庭厨房。它取代了昆士兰传统的大露天平台。从进入房子开始,这是这一层最后一个被揭示的房间。从某种意义上来说这是一个结局,也是一个清晰的当代加成。大型木质推拉门几乎完全缩回两侧,这样会形成一个外部的厨房花园凉亭。
新与旧,室内与室外之间的过渡是通过材质形成的,比如砖、木材与混凝土。一致的水平平面编织在一起,延续了垂直空间,并使其能够轻松地坐落在倾斜的小山坡上。
大屋檐是每一个昆士兰人的基本特征,但往往会减少中央生活空间的实现和自然光。在蓝花楹之屋的厨房中,传统的向下倾斜的屋檐被一个花丝、向上倾斜的扣紧的屋檐所取代。在巨型的蓝花楹的围绕下,屋檐在厨房中过滤了美丽的阳光,在这个“花园厨房”中英在出一种温和、不断变化的光影。
为了平衡厨房东边的花园和蓝花楹的景色的开放性,筑物时已经从原来的皮光面图中略微推出,在厨房的南端创造了一个温馨的庭院。这个庭院被一个外部的壁炉激活,给厨房的外观带来了戏剧性的前景,同时也创造了一个外墙来完成这个“花园房间”。
所有设计累积的结果是对传统昆士兰人的重新解读,从其有挑战性的场地环境中提取独特性和特殊性。
客服
消息
收藏
下载
最近




























