查看完整案例


收藏

下载

翻译
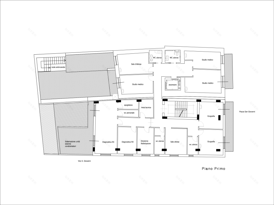
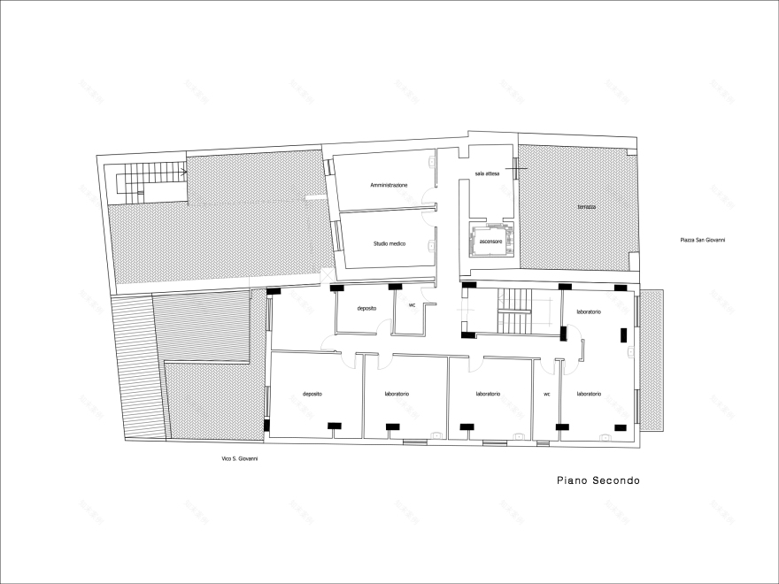
La realizzazione del progetto si origina dalla richiesta del committente di ampliare il proprio centro polidiagnostico e radiologico aumentando il numero delle sale prelievo, dei laboratori e soprattutto ricavando spazi più ampi e moderni. L’edificio è ubicato nel centro storico di Barcellona PG. Nel rispetto delle prescrizioni della Soprintendenza BB.CC.AA, soprattutto per gli per i prospetti esterni, considerata la presenza dell'antica chiesa di S. Giovanni, il progetto ha previsto l'ampliamento, la fusione all’adiacente corpo di fabbrica e importanti lavori di ristrutturazione
L’idea progettuale si sviluppa attorno al concetto del colore funzionale, poiché l'immagine tradizionale dell'ambiente sanitario andrà sostituita da strutture socio-sanitarie che rispondono ad un nuovo concetto di salute, intesa non più come assenza di malattia ma come ricerca di benessere. La conformazione dei nuovi spazi, la ricerca di materiali funzionali al mondo ricettivo e residenziale, la cura dei dettagli hanno ridato nuova vita allo spazio architettonico inteso come l’insieme delle condizioni che garantiscono il benessere fisico e sensoriale degli utenti.
L' obiettivo principale, nel valorizzare le caratteristiche morfologiche degli spazi e nel disporre gli arredi in modo efficiente, era contrastare quei fattori "stressori" ambientali che influenzano negativamente sul comfort psicofisico e sensoriale. Per tale motivo abbiamo scelto con cura materiali, arredi, finiture e accostamenti cromatici in modo da "umanizzazione" gli ambienti sanitari e creare ambientazioni esteticamente gradevoli. Ad ogni spazio architettonico è associato non un colore qualsiasi, ma il suo colore, quello più adatto ad armonizzarsi con la funzione svolta, che unitamente a luce, materiali e sapiente tecnologia contribuisce alla riduzione della SBS sindrome dell'edificio malato, che affligge molte strutture sanitarie.
客服
消息
收藏
下载
最近























