查看完整案例


收藏

下载

翻译
La Efore group è un’azienda internazionale leader nel mercato dell’elettronica, che progetta e produce sistemi di alimentazione DC e alimentatori AC/DC custom e standard per una vasta gamma di applicazioni industriali, telecomunicazioni, medico, illuminazione, utility.
Efore group nasce nel 2013 dalla fusione della vecchia Efore e della ROAL Electronics di Castelfidardo.
La scelta di realizzare la nuova sede nasce dalla volontà di spingersi sempre più verso l’internazionalizzazione dell’azienda e del personale, dando maggiore accento al rapporto con la casa madre, localizzata in Finlandia, e alla fitta rete di contatti con le altre sedi sparse per il mondo.
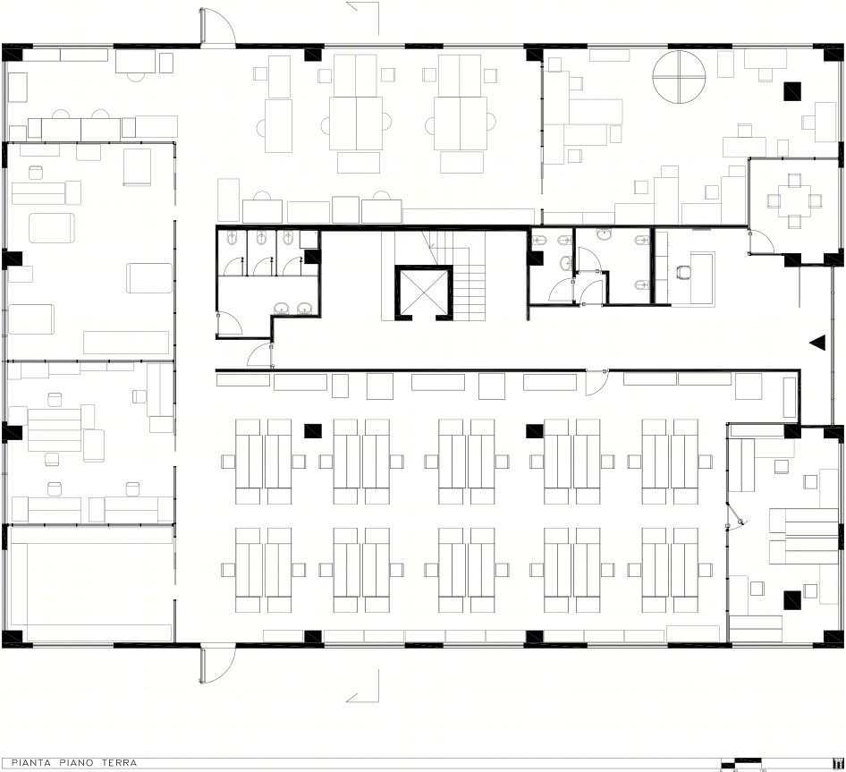
Mondo che ritroviamo appena varcate le ampie vetrate di ingresso, nel quale sono evidenziate le unità operative, direzionali, produttive.
La volontà di migliorarsi, crescere e guardare sempre al futuro in maniera ottimistica e propositiva, è il carattere che accomuna la Efore group allo studio M3Progetti, che dell’azienda ha curato la direzione artistica, supportandola nella progettazione del nuovo stabile a tutto tondo: dall’individuazione dello spazio lavoro per ogni utente, alla scelta di materiali, finiture, colori, definizione di grafiche, insegna e arredamento.
Lo studio M3Progetti nasce poco più di un anno fa come società multidisciplinare di architettura, ingegneria e design, frutto della collaborazione tra tecnici specializzati e impresa. Profili diversi che fanno della progettazione integrata e del team working la risposta ad ogni soluzione specifica e personalizzata, dalla scala urbana a quella di dettaglio.
Per la Efore group, M3Progetti ha identificato come filo conduttore il tema dell’impulso: lo si trova fin dall’ingresso allo stabile, ben evidente nell’insegna metallica che riporta il logo aziendale, e continua all’interno dei locali nei pannelli con immagini che rappresentano la presenza di Efore nei prodotti dei clienti ai quali forniscono la propria elettronica.
Impulso è simbolo di consapevolezza e ricerca continua, impulso è quello che Efore rappresenta per i propri clienti: affidabilità dell’alimentazione dei prodotti e potenza dei componenti.
M3Progetti ha seguito la Efore group fin dalla fase embrionale, precedente al trasferimento, entrando nella logica dell’azienda e del suo iter lavorativo, per poter individuare e conoscere per ogni utente lo spazio necessario a lavorare in una condizione di comfort.
Da qui è stata stabilita una superficie indicativa totale, comprensiva di postazioni, spazi di aggregazione, connessioni ed ambienti necessari per allocare servizi, magazzini, reception, per mezzo della quale l’azienda si è attivata alla ricerca del nuovo stabile.
In seguito si è passati allo studio di dettaglio di tutte le divisioni interne, realizzate con pareti modulari, massimizzando la superficie vetrata, nell’ottica di creare un ambiente ampio e luminoso.
Nell’arredamento, sono state individuate tinte ben precise per tutta la fornitura del materiale da ufficio, curata in collaborazione con la CBI Europe.
Per quanto riguarda i tavoli operativi, è stato scelto per il piano il legno laccato bianco, accompagnato dalla struttura metallica bianca, che risalta all’occhio rispetto al pavimento in pvc effetto legno di colore scuro.
I tavoli sono tutti stati pensati forniti di vertebre e mensole porta-prese in grado di allocare tutte la parte delle cablature e dei cavi necessari per il funzionamento di computer e macchinari, rendendo i passaggi poco visibili.
Armadi bianchi si alternano a elementi contenitivi blu petrolio, che rimanda alla laccatura delle finestre a nastro che corrono lungo tutte le pareti esterne dell’edificio.
I pannelli fonoassorbenti, utilizzati nella divisione tra postazioni open space, sono color tortora, che ben si sposa con bianco e blu.
Per i tavoli delle sale riunioni è stata scelta una finitura effetto frassino naturale.
Completano il tutto poltroncine ergonomiche provviste di schienali e braccioli, di colore nero.
Grande attenzione è stata data alla scelta ed alla progettazione dell’illuminazione degli spazi connettivi, della zona ingresso e reception, delle sale riunioni, nonchè degli esterni.
In particolare, nel vano scale-ascensore, in cui vanno a formarsi due pozzi di luce, sono stati installati dei corpi luminosi pendenti ed inclinati in modo da risultare visibili sia in fase di salita e discesa dalle scale, sia dai pianerottoli per mezzo dei quali si accede ai vari reparti operativi.
All’esterno, l’ingresso è reso ben visibile dagli spot posizionati a terra e dai cubetti sulla pensilina. Dei proiettori illuminano la copertura dell’edificio che aggetta rispetto alla vetrata slanciandola in altezza e evidenziando ancora di più la simmetria e la purezza dell’architettura.
客服
消息
收藏
下载
最近














