查看完整案例


收藏

下载

翻译
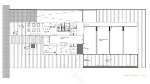
The main element of this project is an exterior skin made up of ceramics lattice pieces, which, in just one strong big gesture, meets some of our goals: On one side, all the programme parts are visually unified, harbouring a diverse and flexible programme inside. Moreover, an image in which perception, depending on the lattice's orientation, varies with distance; on a further vision, we perceive a strongly lit exterior, and, as we move closer, we find a great atrium in the shadows in which the slats seem to open themselves in order to let the sky be seen. This outdoors double height high ceiling is defined by various elements: the lattice skin with access underneath, attracting all the user's movements; a glass piece that comes out the building and harbours some of the building programme's most significant spaces; the building access; an outdoors extension of the cafeteria, and a second access to it; finally, a tree that is protected from a "hostile" environment (intense sun and industrial buildings) simbolizes the ecologic values we try to convey.
客服
消息
收藏
下载
最近









