查看完整案例


收藏

下载

翻译
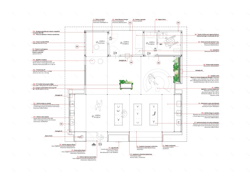
BS Lab è uno spazio multidisciplinare e contemporaneo sognato da Salvo Belfiore e progettato dall’architetto Francesco Lipari che mira ad identificarsi come innovativo hub culturale per la città di Catania. Il progetto è caratterizzato da una successione di 54 aste - orizzontali e verticali - in alluminio color bronzo Sicilia che, grazie a 64 nodi a tre diverse angolature permette allo spazio di configurarsi come un microhabitat urbano composto da episodi architettonici dove ogni elemento ha un nome e una propria identità. BS Lab si sviluppa su una superficie di 85 mq e, attraverso tre macro aree, conduce il visitatore a vivere lo store in maniera inedita sfruttando una successione di livelli esperienziali: l’area commerciale e talk, l’area interattiva e family friendly e l’area servizi.
L’area commerciale e talk. Entrando nel BS Lab sarete subito immersi nell’area commerciale: uno spazio dedicato alla linea di gioielli Zahir, qui messi in mostra all’interno di vetrine appositamente progettate per enfatizzare l’abile artigianato di Angelo Belfiore. Quest’area è facilmente riconfigurabile e, in pochi minuti, può diventare un comodo spazio per presentazioni e talk che coinvolgeranno i visitatori attraverso numerose attività legate al BS Lab, dall’approfondimento sui prodotti all’organizzazione di eventi creativi su musica, fotografia, cinema, arte e architettura. Le nostre grandi vetrine d’ingresso saranno, inoltre, spazi dedicati all’esposizione di opere artistiche e, grazie ad un’attenta curatela, enfatizzeranno ancora di più la vocazione multidisciplinare del BS Lab. La prima mostra è dedicata al lavoro di Gero Canalella, giovane talento nisseno che espone due opere: Adam e Terra fertile.
L’area interattiva e family friendly. L’area centrale dello store permette al visitatore di passare da un livello di fruizione pubblico ad uno più intimo attraverso uno spazio multimediale interamente dedicato al relax e alle famiglie dove un’area verde dotata di un green wall naturale fa da sfondo alla seduta estensibile in cartone alveolare. Il totem centrale in granito nero assoluto, posto in posizione baricentrica all’interno dello store, è un diretto omaggio al monolite di Stanley Kubrick in “2001: Odissea nello spazio” ed è equipaggiato con schermi dinamici grazie ai quali è possibile interagire con i contenuti proposti dal BS Lab.
L’area servizi. È posta sul fondo del negozio ed è caratterizzata da una parete unica composta da 24 specchi che enfatizzano la profondità dello spazio (all’interno della sua suddivisione è anche possibile riscontrare la caratteristica geometria di una Sezione Aurea) e che nasconde tre ambienti: l’accoglienza, il deposito e la toilette. Questi tre spazi sono caratterizzati da una finitura in cocciopesto con colorazione personalizzata che distingue e identifica le loro funzioni interne.
客服
消息
收藏
下载
最近





























