查看完整案例


收藏

下载
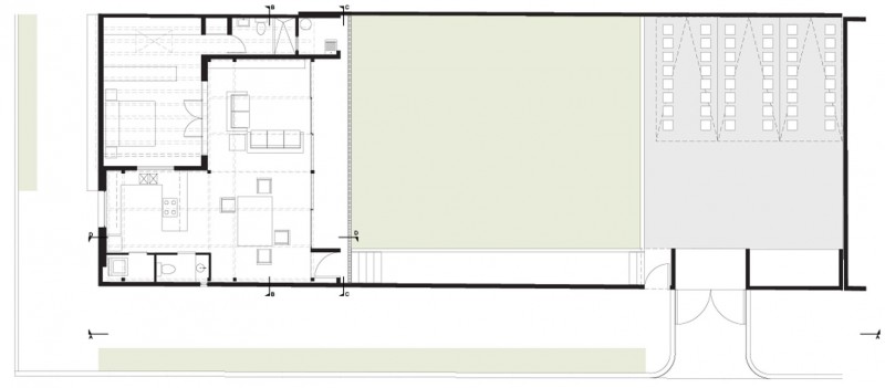
Casa Calero公司位于梅西科市,由DCPP ArquArchtos公司设计。
该项目占地970平方英尺,于2010年完工。
画廊中的视图
画廊中的视图
画廊中的视图
画廊中的视图
画廊中的视图
画廊中的视图
画廊中的视图
画廊中的视图
画廊中的视图
画廊中的视图
画廊中的视图
画廊中的视图
画廊中的视图
画廊中的视图
CASA Calero,DCPP ArquArchtos:
卡莱罗是位于墨西哥城南部的圣安吉尔的一个住宅项目。这块地块是用砖瓦建造的,必须得到尊重。新提案必须以最低的材料、最低的成本和最低的要素来解决。
这个项目是在重复使用必要的元素来实现建筑的前提下进行的,在这种情况下,是以木材为中心的。剩余的材料成为建筑本身,并被诚实地处理和使用,它被重复使用,但不被修改。
这个项目被解决了,从建筑废料中分离出来,创造了一个适宜居住的空间。剩下的材料成为这一建筑的主要元素。
它是确定工程尺寸、结构和精加工的材料。一个双重概念是实现的材料是使用它是获得它没有覆盖或隐藏它,以最诚实的方式显示它。同时,也产生了一种循环良知,使得这一建设不仅在生态方面,而且在社会和理论上都具有可持续性。
在其他建筑中使用的对中木在美学和结构上占据着中心位置,成为地板、墙、柱、梁、格。
屋顶是由一个多面板,它的轻和经济的特点。采用纸板管进行保温和隔声,提高了其性能。这些纸板管是从一家布店获得的,也是回收材料。
我们决定采用不使用混凝土的施工方法,尽可能在车间和现场组装,以降低成本。所有这些都导致建筑成本约为传统建筑的25%。“
画廊中的视图
画廊中的视图
画廊中的视图
画廊中的视图
画廊中的视图
画廊中的视图
图片来源:OnnisLuque
keywords:Art Bookshelf DCPP Arquitectos Decorative Accessory Dining Room Exposed Beams Exposed Ceiling Beams Kitchen Landscaping Living Room Mexico Mexico City Parquet Remodeling Wall Decor Wood Floors Wood Walls
关键词:艺术书架DCPP装饰附件餐厅暴露梁暴露天花板梁厨房美化起居室墨西哥城装饰木地板木墙
客服
消息
收藏
下载
最近






















