查看完整案例


收藏

下载
© Will Boase Photography
将Boase摄影
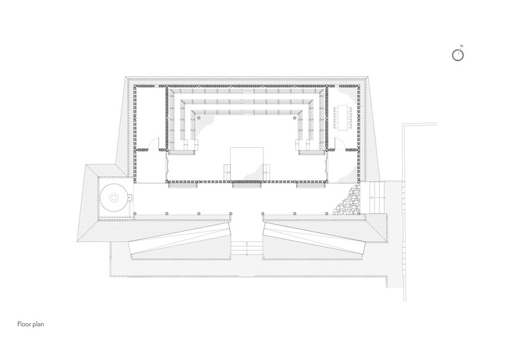
架构师提供的文本描述。罗斯·兰登健康教育中心是位于乌干达西南部拉凯的Mannya村的一个小社区大厅。它提供约150人的空间,坐在简单的粘土瓷砖台阶上,和一个发言者,站在一个小型的高架平台。靠近大厅的是一间私人会议的房间和一家商店。前面是一条走廊,上面覆盖着一条长廊,为非正式聚会和放松提供遮荫。
Text description provided by the architects. The Ross Langdon Health Education Centre is a small community hall located in the village of Mannya in Rakai, South-western Uganda. It provides space for about 150 people, sitting on simple clay tile steps, and for a speaker, standing on a small elevated platform. Adjacent to the hall is a room for private meetings and a store. At the front is a walkway covered by a pergola providing shade for informal gatherings and relaxation.
© Will Boase Photography
将Boase摄影
这座建筑是由罗斯·兰登(Ross Langdon)设计的,他是一名年轻的澳大利亚建筑师,和他的妻子以及未出生的孩子一起,是内罗毕西门事件的受害者之一。在横跨澳大利亚、英国和东非的短短的职业生涯中,罗斯留下了众多的设计,包括获奖的kambura lodge,所有这些都是根据地理位置、气候、材料和用户而设计的,而且都是由对“变色龙建筑”(Chameleon Architecture)的无限热情驱动的。
The building was designed by Ross Langdon, a young Australian Architect who, together with his wife and unborn child, was amongst the victims of the Westgate attacks in Nairobi. In his short career spanning across Australia, the UK and East Africa, Ross left behind a multitude of designs, including the award-winning Kyambura Lodge, all imaginatively tailored to location, climate, materials and users, and all driven by an inexhaustible passion for ‘Chameleon Architecture’
就像我们在他不在的时候说的一样,罗斯把健康教育中心想象成一个小展馆,看起来完全是内向的,是由乌干达南部最基本的建筑材料制成的:桉树杆是主要建筑结构,有粘土砖填充和粘土瓷砖地板。这里没有窗户,取而代之的是建筑用各种方式过滤光线;砖瓦上有孔,墙壁和屋顶之间有隔阂,有天窗的高层屋顶通风口和舞台区域的“光之光”(Liters Of Light)。屋顶盖由桉树桁架支撑的锌质屋顶板制成,天花板由手工设计的“木克卡”芦苇垫制成。
As good as we can tell in his absence, Ross envisioned the Health Education Centre as a small pavilion, entirely inward-looking and made of the most basic of building materials available in Southern Uganda: eucalyptus poles as the main structure with clay brick infills and clay tile floors. There are no windows, and instead the building envelop filters light in various ways; perforations in the brickwork, a gap between walls and roof, a high-level roof vent with skylight and ‘Liters of Light’ illuminating the stage area. The roof cover is made of zinc-al roof sheets supported by Eucalyptus trusses, and the ceiling is made of purpose-designed handmade ‘Mukeka’ reed mats.
© Will Boase Photography
将Boase摄影
© Will Boase Photography
将Boase摄影
罗斯去世后,澳大利亚棉花基金会的客户与乌干达的FH建筑师工作室进行了接触,要求完成设计,并帮助尽可能接近发起人的意图。费利克斯·霍兰是FH工作室的首席建筑师,也是罗斯的私人朋友。他接受了这一挑战,组建了一支由专注的设计师和建筑商组成的团队,他们完成了一项侦探任务,破译了罗斯的设计意图,时而猜测,时而与其他人意见相左,最终实现了一座建筑,我们希望这座建筑能公正地体现建筑师的想法和愿景。
Following Ross’ death, the client, the Cotton On Foundation from Australia, approached Uganda-based Studio FH Architects with the request to complete the design and help implementing it as close as possible to the intentions of the originator. Felix Holland, principal architect at Studio FH and personal friend of Ross, took on the challenge and assembled a team of dedicated designers and builders who went on a detective mission deciphering Ross’ design intentions, guessing at times and disagreeing at others, and finally realising a building that we hope does justice to the ideas and visions of the architect.
© Will Boase Photography
将Boase摄影
Architects Ross Langdon, Studio FH Architects
Location Mannya, Uganda
Category Educational Architecture
Architect in Charge Ross Langdon
Implementing Architect Studio FH Architects
Area 260.0 sqm
Project Year 2016
Photographs Will Boase Photography
客服
消息
收藏
下载
最近














































