查看完整案例


收藏

下载
© Brett Boardman
布雷特·博德曼
架构师提供的文本描述。这座位于悉尼南岸郊区的新公寓楼与它的邻居相距甚远,它使用时髦的城市雕塑形式和城市材料,在海边开辟了一种不同的、更加都市化的生活方式。
Text description provided by the architects. This new apartment building in a Sydney southern beachside suburb stands apart from its neighbours, using sleek urban sculptural forms and urban materials to carve out a different, more urban, way of living by the sea.
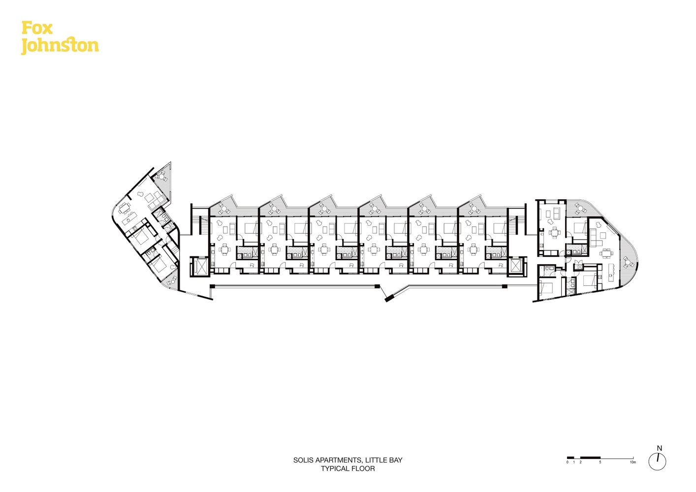
Ground Plan
传统上,澳大利亚壮观的东部海岸线上的公寓不是为常年生活而设计的。他们成长于“暑假”的短期占用传统,其特点是建筑价格低廉,材料便宜而令人愉快,布局不合理,温度控制差。
Traditionally, apartments on Australia’s spectacular eastern coastline were not designed for year-round living. They grew out of a ‘summer holiday’ short-term occupancy tradition, characterised by inexpensive construction, cheap and cheerful materials, ill-considered layouts and poor thermal control.
© Brett Boardman
布雷特·博德曼
因此,老旧的沿海公寓常年居住可能会让人感到不舒服,也没有能力应对靠近大海的恶劣环境:夏季高温,终日岸上狂风,海水喷雾剂,含盐腐蚀性空气,以及吵闹的邻居们。许多能源被浪费在加热和冷却内部空间,以应对夏季热和冬季寒冷。
As a result, older coastal apartments can be uncomfortable to live in year-round, and are ill equipped to deal with the harsh conditions that come with close proximity to the sea: high summer heat, fierce on-shore winds at the end of the day, sea spray, salt laden corrosive air, and noisy neighbours. Much energy is wasted heating and cooling internal spaces to deal with summer heat and winter chills.
© Brett Boardman
布雷特·博德曼
考虑到这一点,福克斯约翰斯顿 (Fox Johnston) 将这座位于悉尼南部小湾的索利斯 (Solis) 设想为一种新的海滨公寓:它更像是一种复杂的、高质量的海上城市建筑群,尽管它具有海滩生活的特色和轻松的海滨氛围,而不是度假公寓。
With this in mind Fox Johnston conceived this newly completed 45-apartment complex, SOLIS at Little Bay to Sydney’s south, as a new kind of seaside apartment living: more a sophisticated, high quality urban complex by the sea, albeit one with beach-living characteristics and a relaxed seaside vibe, than a holiday flat.
他们还想设计一座对脆弱的沿海环境影响最小的建筑,一座既能节约能源又能有效利用雨水的建筑。
They also wanted to design a building that had minimal impact on the fragile coastal environment in which it sits, and one that conserves and efficiently uses both energy and rainwater.
索利斯是更广泛的小海湾社区的一部分,坐落在 13.6 公顷的稀有海滨土地上,拥有一片壮观的海岸线,有时甚至是崎岖不平的海岸线。“像这样的澳大利亚沿海环境特别恶劣:风、太阳和盐太多了。在一天中的某些时候,感觉就像在一艘船的船头上,受到每小时 100 公里的大风冲击,“福克斯约翰斯顿董事康拉德·约翰斯顿说。“旧公寓在夏天总是太热,冬天太冷。
Part of the wider Little Bay community, SOLIS sits on a remarkable site on 13.6 hectares of rare oceanfront land – with exposure to a naturally spectacular and at times, unforgiving rugged coastline. “Australian coastal environments like this are particularly harsh: too much wind, sun and salt. At certain times of the day, it can feel like you are on the prow of a ship, being buffeted by 100km per hour winds,” says Fox Johnston Director Conrad Johnston. “Older apartments are always too hot in summer and too cold in winter.
© Brett Boardman
布雷特·博德曼
他说:“我们在设计这幢建筑物时,已考虑到这一点。同时,保持最大限度地接触阳光、视图和气流显然是很重要的,但随着条件的变化,能够在一天中更有效地处理这些问题。“
“We have designed the building with this front of mind. At the same time, it is obviously important to maintain maximum access to sunlight, views and airflow, but to be able to manage these throughout the day more effectively as conditions change.”
从北面走过来,游客首先看到的是一种独特的、弯曲的钢制五层建筑,因为这座建筑背靠着道路,欣赏着壮观的海岸景观。四层公寓,每一层都有自己的剪刀形状的北面阳台和强烈的水平线,书的另一个强大的雕塑形式在东端。
Approaching from the north, the visitor first sees a distinctive, curved steel-clad five storey form, as the building turns its back to the road in favour of the spectacular coastal views. Four floors of apartments, each with its own scissor-shaped north facing balcony and strong horizontal lines, are bookended by another strong sculptural form at the eastern end.
© Brett Boardman
布雷特·博德曼
该建筑由三个部分组成:中央容积房、一居室和书房,东西部建筑以两居室为主。中心部分的每一套公寓都是整栋楼的全部宽度,并通过建筑物后面的走道进入,同时也有由钢丝网定义的强烈的水平线。
The building comprises three parts: the central volume houses one bedroom and study apartments, with eastern and western building volumes housing mainly two bedroom apartments. Each apartment in the central section runs the full width of the building and is accessed via walkways at the rear of the building, again with strong horizontal lines defined by steel screens.
Solis 独特的剪刀式阳台为每一套公寓提供了充足的北向和最大的阳光-- 与北部和东部的新邻居以及中央城市酒廊进行了充满活力的对话。
SOLIS’s distinctive scissor shaped balconies ensure full northerly orientation and maximum sunshine for every apartment - creating a dynamic dialogue with its new neighbours to the north and east as well as the central Urban Lounge.
© Brett Boardman
布雷特·博德曼
每套公寓的设计都是为了提供完全的交叉通风-- 能够根据需要在白天和一年中的不同时间开放或关闭空间。
Each apartment has been sensitively designed to give complete cross ventilation - with the ability to open up or close down spaces as desired, during the day and at various times during the year.
自然阳光透过卧室和居住空间一整天,可调节遮阳屏幕控制的首选环境。这些起居和卧室空间将受益于打开大型私人露台,提供无缝连接的外部和内部。
Natural sunlight filters through bedroom and living spaces throughout the day with adjustable sun shading screens controlling the preferred environment. These living and bedroom spaces will benefit from opening onto large private terraces, offering a seamless connection between outside and in.
© Brett Boardman
布雷特·博德曼
鉴于该建筑靠近大海,福克斯约翰斯顿已经使用优雅,耐用,外部覆层和墙壁完成与内置长寿面砖,金属包层,混凝土和钢。内部空间精心设计,使用天然澳大利亚,有斑点的树胶木地板和细木工,以及石制厨房。
Given the building’s proximity to the sea, Fox Johnston has used elegant, durable, external cladding and wall finishes with inbuilt longevity – face brick, metal cladding, concrete and steel. Internal spaces are finely crafted and use natural Australian, spotted gum timber floors and joinery, and stone kitchens.
环境可持续性和节能是整个小湾区的主要目标,尤其是这座建筑的目标。康拉德·约翰斯顿 (Conrad Johnston) 说:“设计的一个关键驱动因素是,我们希望通过减少能源和水资源、尽量减少浪费、雨水和雨水管理以及促进生物多样性来减少对环境的影响。”靠近海洋和敏感的海洋环境激发了杰出的用水和水处理举措。一个综合的水循环确保废水被回收用于住宅以及附近的公共公园和高尔夫球场。所有雨水和雨水通过一系列污水和生物过滤池进行处理,改善了排水前的水质。
Environmental sustainability and energy conservation are major objectives for the Little Bay precinct as a whole, and for this building in particular. “A key driver for the design was our desire to reduce environmental impact through energy and water reduction, minimising waste, stormwater and rainwater management and promoting biodiversity,” says Conrad Johnston. Close proximity to the ocean and sensitive marine environments has motivated outstanding water use and treatment initiatives. An integrated water cycle ensures wastewater is recycled for reuse in dwellings as well as the near by public parks and golf course. All stormwater and rainwater is treated through a series of swales and bio-filtration ponds, improving water quality before discharging.
© Brett Boardman
布雷特·博德曼
设计的方向和线性比例允许被动加热和冷却最大化。100% 的公寓全年实现直接太阳能接入。每一间公寓都有决斗的一面和一个阳台,让自然通风。
The orientation and linear proportions of the design allow passive heating and cooling to be maximised. Direct solar access is achieved all year round in 100% of apartments. Each and every apartment also boasts duel aspect and a balcony allowing natural ventilation.
Architects Fox Johnson
Location Little Bay NSW 2036, Australia
Category ApartmentsProject Year 2016
Photographs Brett Boardman
客服
消息
收藏
下载
最近






















