查看完整案例


收藏

下载
© Purnesh Dev Nikhanj
c.Purnesh Dev Nikhanj
架构师提供的文本描述。客户希望在舒适的非正式环境中提供素食,这是一种让社会所有干部都能感受到的环境,在这种环境中,项目的前景没有描绘,也没有暗示任何内部风格或形式。平淡的现代或工业设计方法对他们的品味来说太平淡了。因此,他们提出了室内设计应该生动、反映品牌理念的指导方针;实惠的食物、实验和室内装饰将体现出一种社区、平等和亲切的感觉。
Text description provided by the architects. The client wished for an eatery which served vegetarian food in a comfortable informal setting, a setting which feels and is accessible to all cadres of society, where the outlook of the project does not depict or is least suggestive of any certain style or form of interiors. The plain contemporary or industrial design approach was too bland for their taste. So, they put forward guidelines where the interiors should be lively and reflective of the brand ideology ; affordable food, experimentation and the interiors would reflect a sense of community, equality and bonhomie.
“任何形式的自然都比不上艺术,因为艺术只是模仿自然的形式”-马库斯·奥雷利乌斯
“No form of Nature is inferior to Art; for the arts merely imitate natural forms” -Marcus Aurelius
这些室内设计被设想为与野餐类似,在翻译中增加了漫画的维度,进一步提升了品牌的意识形态,为每个人提供负担得起的食物,在一个非正式的古怪环境中:
The interiors are envisioned as an analogy to a picnic by adding the dimensionality of a comic strip to the translation, furthering the ideology of the brand to provide affordable food accessible to everyone, in an informal quirky setting:
© Purnesh Dev Nikhanj
c.Purnesh Dev Nikhanj
人们蜷缩在一棵盛开的树下,树叶在风中沙沙作响,轻快地在树叶中筛选,创造出阳光,四面八方都是亲吻的补丁,以增加周围轻松友好的闲聊。
‘People sitting huddled under a tree in full bloom, the leaves rustling in the wind, and light sieving through the foliage to create sun kissed patches all around, to augment light hearted friendly chatter all around’
在这一时刻经历的情感、颜色和纹理的突飞猛进,扩展到了600平方英尺的面积;通过将经验的复杂性分解为基本元素的表现,从曲线和装饰性的艺术发展到以界定的当代直线的极简工业描绘。
The sheer rush of feelings, colors and textures experienced in this single moment expanded over an area of 600 sq.ft.; by breaking down the complexity of the experience into basic representation of elements following the depiction of evolution of art from curvilinear and ornamentation like, to its minimalistic industrial depiction in defined contemporary straight lines.
© Purnesh Dev Nikhanj
c.Purnesh Dev Nikhanj
这个概念起源于5个相互作用的实体-地球,空气,水,植被。
The concept originates when 5 interacting entities are identified – Earth, Air, Water, Vegetation & Sun.
尝试-创造和创造一个环境,在这个环境中,每一个涉及的实体都是通过注入颜色和纹理来描绘它们的生存的象征,从而使空间活跃起来,瞬间把它从混凝土的城市丛林里分离出来,并提供一种古怪的和折衷的与工业内部设计的正切。
The attempt – To create and an environment where every entity involved is depicted by infusing colors and textures symbolic of their existence to enliven the space, instantaneously detaching it from the concrete urban jungle outside and providing a quirky and eclectic tangent to an industrial interior design.
© Purnesh Dev Nikhanj
c.Purnesh Dev Nikhanj
在入口处的突出是一个迷人的涂鸦,描绘了一个平静的灵魂出现,它的存在,似乎锚定在融合的剩余要素悄悄支持它。以其巨大的生动色调的蓝色,它描绘了水-生命和再生的元素。这瞬间,视觉上将室内环境与城市外部环境隔离开来,注入一种情绪色彩缓解;引发平静。
The standout at the entrance is a captivating graffiti which portrays a calm soul emerging, its existence as if anchored in the amalgamation of remaining elements quietly supporting it. With its large vivid tones of blue, it depicts water- the element of life and regeneration. This instantaneously, visually segregates the interiors from the urban environment outside by infusing a mood color relief; initiating calmness.
© Purnesh Dev Nikhanj
c.Purnesh Dev Nikhanj
绿色墙的光和黑暗的存在,字母挤压和照亮在前面,是通过一个想法的谈话,走在阳光下的草地上,草坪被压成几个部分,想象草的反应,当它被走上,同时发挥你的感官通过使用软的和硬的表面。
The green wall in its light and dark existence with letters extruded and illuminated in front is derived via a thought of conversations while walking on grass under the sun with the turf being pressed in parts, imagining the reaction of grass when it is being walked on, while playing with your senses visually by the use of soft and hard surfaces.
© Purnesh Dev Nikhanj
c.Purnesh Dev Nikhanj
浮木墙
FLOATING WOOD WALL
木质镶板悬挂在半空中,有着明亮的壁龛,没有与地面接触,描绘了一阵风在穿过树前缠绕在树枝上的轨迹,以及坐在树下的对话。对它的描述所指定的最大范围,它的开始和结束超出了一个人的身体范围。这个元素起着关键的作用,因为它是动态的。
按照描绘自然元素的基本色彩的思维过程,地板也被描绘成混凝土地板上的一种乡村褐色,上面有污点。地板也被设定为框架中的一个动态元素,让它有机会随着时间的推移自然地改变。
Following the thought process of depiction of natural elements in their basic colors, the flooring also is portrayed as a rustic brown color over a concrete floor with tarnished patches on it. The flooring has also been set as a dynamic element in the frame, giving it a chance to change naturally with due passage of time.
Architects Design Equilibrium
Location SCO 24-25, Sector 9-D, Madhya Marg, Chandigarh (U. T. ), India
Category Fast Food
Design Team Ar. Dhruv Sarveshwar Lal (Principal Architect), Ar. Sheetal Sharma, Ar. Gagandeep Singh
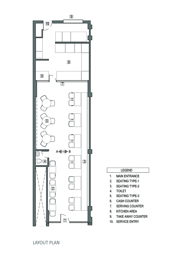
Area 925.0 ft2
Project Year 2016
Photographs Purnesh Dev Nikhanj
Manufacturers Loading...
客服
消息
收藏
下载
最近























