查看完整案例


收藏

下载
© Shannon McGrath
C.Shannon McGrath
架构师提供的文本描述。Oak Grove是一个由开发驱动的项目。在详细的客户简介中,充满了关于视觉风格的想法,以及位于澳大利亚郊区的折衷环境中的网站,这座建筑在高度饱和的物理和概念参数范围内,协商出了一种有意义的当代回应。
Text description provided by the architects. Oak Grove is a development driven venture. Between a detailed client brief laden with ideas about visual style, and the site located in an eclectic Australian suburban context, the architecture negotiates a meaningful contemporary response within highly saturated physical and conceptual parameters.
© Shannon McGrath
C.Shannon McGrath
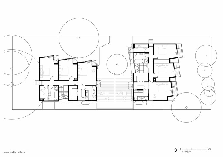
为了提高成本效益,该项目涉及两个完全相同的长方形房屋,彼此放置在90度处,形成一种花园环境,将大型街道树木的感觉带入建筑。每栋房屋都有相同的前立面,这些正面来自于场地向北的略呈角的方向,有不同的交替面,突出、开放、有玻璃或实心,为所有宜居空间提供了灵活的交叉通风。北方的方向和与外部的连接。每个立面都设计成适合于两种不同的方向,由此产生的街道外观是一系列不同折叠的移动拼凑起来的高地,而不是彼此相邻的两座相同的建筑。
For cost efficiency the project involves two identical rectangular houses placed at ninety degrees to one another creating a garden setting that brings the feeling of the large street trees into the site. Each house has the same folded front façade derived from the site’s slightly angular orientation to north, with different alternate facets protruding, openable, glazed or solid, giving all habitable spaces flexible cross ventilation, north orientation and connection to outside. With each façade designed to be suitable at two different orientations, the resulting appearance from the street is a series of differently folded shifting patchwork elevations rather than two identical buildings alongside one another.
© Prue McMillan
普鲁伊·麦克米伦(Prue McMillan)
Lower Plan
较低计划
© Shannon McGrath
C.Shannon McGrath
该项目通过根据材料的属性来表达廉价材料的价值感,并放大使用这些材料所固有的细节和工艺,这些材料通常被忽略或隐藏。无论是内部还是外部,全木框架结构也在一些地方暴露出来,丰富了多层建筑结构,建筑的节奏和比例。这些拼凑的组合与建筑结构是不可分割的,内部构图是根据每个空间界面的直接目的量身定做的。
The project procures a sense of value through the expression of inexpensive materials according to their attributes and the amplification of the detail and craftsmanship inherent in the use of these materials which are usually ignored or concealed. Both inside and out, the entirely timber framed structure is also exposed in places, enrichening the multilayered architectural textures, rhythms and scales of the buildings. These patchwork assemblages are accordingly integral to the building fabric, with interior compositions tailored to the immediate purpose of the interfaces to each space.
Upper Plan
上计划
项目的几乎所有表面都是白色的。这在很大程度上结合了它们在自身和身份方面的统一感,在不同的影响范围内,同时对涂层的透明度、光泽水平和耐候性的敏感考虑,加重了微妙丰富的FA1ADE组合物,提高了对细节细节的感知,并且能够与树木的过滤光和阴影进行愉快的接合。
Almost all surfaces of the project are coloured white. This combines them with a sense of unity in themselves and identity in an overwhelming context of different influences, while the sensitive consideration of the transparency, gloss levels and weathering of coatings, accentuates the subtly rich façade composition, heightens the perception of the careful detailing and enables a delightful engagement with the filtering light and shadows of the trees.
© Shannon McGrath
C.Shannon McGrath
由于一个发展项目将如何被占用的不确定性,这一计划是一个环境敏感、灵活和触觉的生活背景,它厚颜无耻但谦卑地符合和分享其客户和环境的愿望。
With the uncertainty of how a development project will be occupied, this scheme is an environmentally sensitive, flexible and tactile background for living that unashamedly but humbly fits in with and shares the aspirations of its client and context.
© Shannon McGrath
C.Shannon McGrath
产品描述:该项目的一个主要原则是以一种通常被隐藏或忽略的暴露和表达其内在工艺的方式来表达日常施工方法。两种不同变体的“阴影覆盖”外胶合板覆层,结合不同的安排和节奏,实际上是对直进的使用的放大。接缝处的覆盖物。这暴露了通常被忽视的标准木板建造方法的工艺,以给人一种定制的细节和质量的印象。在相同的整体拼贴外观内集成,外部胶合板是设计成滑动和移动的绝缘板,形成灵活的,折叠的部分定制设计的立面系统。
Product Description. A major principle of the project is the expression of everyday construction methods in a manner that exposes and expresses the inherent craftsmanship within them that is usually concealed or ignored. Two different variations of ”Shadowclad” exterior plywood cladding are used in combination with different arrangements and rhythms of battening that are actually an amplification of the use of straight forward coverstraps at joints. This exposes the normally ignored craftsmanship of standard timber panel construction methods to give an impression of customised detail and quality. Integrated within the same overall patchwork facade appearance, exterior plywood is designed into sliding and shifting insulated panels that form the flexible, folded sections of the custom designed façade system.
天然羊毛灯饰是我母亲手工编织的。在一个几乎完全是白色的项目中,这些柔软的、自然的配件过滤光线,本身就是触觉的物体。它们延续了项目的白色,有助于在节奏、质地和材质上通过建筑的拼贴表面实现多层次的变化。
The natural wool light fittings are hand crocheted by my mother. In a project that is coloured almost entirely white, these soft, natural fittings filter light and are tactile objects in themselves. They continue the white colour of the project and contribute to the multilayered variances in rhythm, texture and material that is achieved through the patchwork surfaces of the building.
© Shannon McGrath
C.Shannon McGrath
Architects Justin Mallia
Location Melbourne VIC, Australia
Category Residential Architecture
Architect in Charge Justin Mallia
Area 485.0 m2
Project Year 2015
Photographs Shannon McGrath, Prue McMillan
Manufacturers Loading...
客服
消息
收藏
下载
最近






























