查看完整案例


收藏

下载
现有的房子是一个大部分住宅区靠近植物园的科英布拉。现有的建筑是20世纪初的一座房子,最初由四套独立公寓组成。
拟议的方案规定将这座建筑改建为一套单一家庭住房。
原有结构的高级退化状态、底层建筑质量差和室内空间尺寸不足,决定了干预的基本原则:在保持现有建筑体积的同时,对立面和屋顶进行维护和修复,拆除并重新设计整个建筑物的内部。
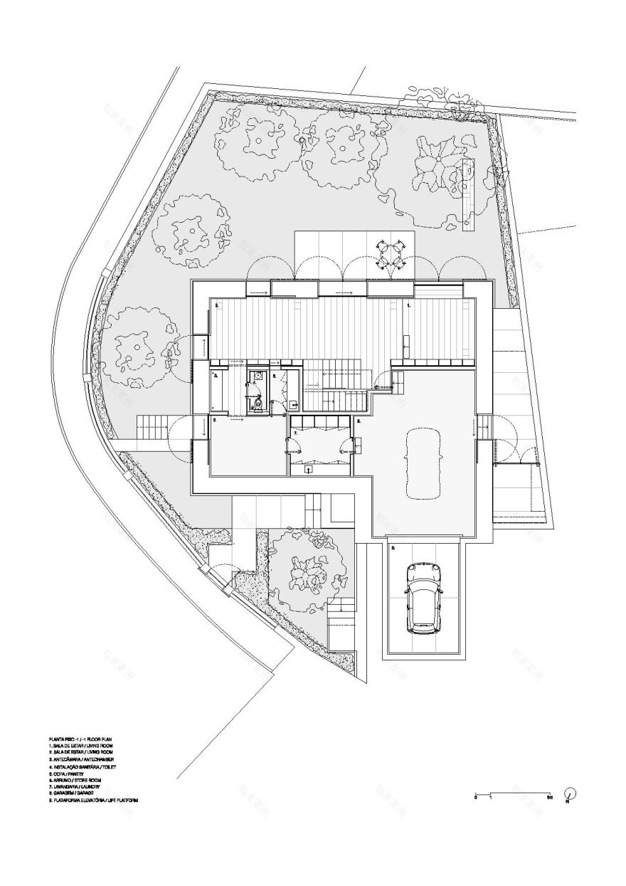
新的空间结构的特点是在0层和-1层引入了一个由两个结构墙组成的中央纵向体,包括楼梯、厕所、服务、储藏室和支撑空间,以及一楼的流通空间。
客厅分布在入口处,与厨房有关,下层与房屋的外部空间密切相关。
第一层包括卧室、更衣室和厕所设施,并在阁楼内设有起居室。预计阁楼空间将被非正式的学习和工作区域占据。阁楼层还包含一个技术区域和一些存储空间。
在第一层,人们可以找到洗衣区、储藏室、客厅的厨房支撑、室外技术区和车库,它们都是通过位于北侧的平台电梯进入的,从外面几乎看不见。
保持外部开口、涂上单一玻璃的木窗框是保持原始门面的关键,采用几乎看不见的滑动窗解决了热和声学问题。新元素的设计保留了原框架的方面。
无松木实木里加松木地板的设计,以适应空间,开口,通道和流通领域。木板的宽度在20和30厘米之间变化,长度与空间的整个尺寸相匹配。一个简单的设计,减少到必要的,是固定的家具,厨房家具和卫生设施专利。
在不同的楼层和空间方面保持连接,并确保天顶光线照射到所有室内空间,这是人们关注的问题。这方面的例子有:0层起居室的楼梯开口和1楼起居室的循环;两间房间之间的开口和楼梯上的天窗以进入阁楼;以及地板上的流通区域与房间一起。一个圆形天窗被包括在阁楼,作为一种方式,以重新访问一种类型的原始开放,原来是存在于不同的楼层和住房空间。
地下室新开的洞口与花园紧密相连,强化了厚石砌墙的理念,这是典型的具有这些特点的房子。开口以侧壁上的百叶窗结束,其抹灰面与正面使用的相同。
最后,对物业边界上的墙壁进行了修复,保持了原有的涂层、石材涂饰和金属元素。在室内,为植物创建了一个连续的床,以确保户外空间和住房的隐私。根据房子的内部空间,在确定的地点种了几棵树。
在花园里,在房子的南面部分,建造了一块石头覆盖的露台,并建造了一条长凳,与其中一棵树相关联。
葡萄牙惯习2012至2014年-入围名单。
Firm Jorge Teixeira Dias Arquitecto, Lda
Type Residential › Private House
STATUS Built
YEAR 2014
SIZE 5000 sqft - 10,000 sqft
keywords:architecture, architecture news, interiors, interior design, portfolio, spec, brands, marketplace, products Rehabilitation of Single-family House in Coimbra
关键词:建筑、建筑新闻、内部设计、室内设计、组合、规范、品牌、市场、产品修复、家庭住宅
客服
消息
收藏
下载
最近



































