查看完整案例


收藏

下载
© Joana França
(Joana Fran A)
共享空间的结构
Architecture of shared spaces
Fabrika Filmes 新总部的项目产生于一个核心挑战:创建一座简洁灵活的建筑,以适应一家视频制作公司及其合作伙伴的需求。对以前的总部进行仔细的分析对于为他们的需求制定蓝图至关重要,这样才能顺利地转移,也是公司未来扩张的关键。为了做到这一点,不仅考虑了主要地区的功能和分布,而且考虑了生产公司内存在的动态工作方式和强大的社会互动:在明确界定的集线器等级范围内,人们在公共空间中不断变化和密集的聚会。
The project for Fabrika Filmes’s new headquarters emerges from a core challenge: to create a concise and flexible building, adapted to the needs of a video production company and its partners. A careful analysis of the previous headquarters was crucial for creating a blueprint of their requirements, to allow a smooth transfer and also the company’s future expansion. In order to do that, not only the functions and distribution of main areas were considered, but also the dynamic way of working and strong social interaction existent within the production company: mobility and constant transformation and intense meeting of people in the communal spaces within a well-defined hierarchy of hubs. © Aníbal Fontoura
阿尼巴尔·丰图亚
位于巴西利亚工业区新地段的 SIA(Setor de Indústrias e Abastecimento) 也提出了挑战。一方面,如果把城市环境作为第一次建筑决策的对话和动力因素来面对是很常见的,那么对于一个几乎不存在城市环境的阴谋,人们能说些什么呢?这正是 SIA 这个新领域的情况,它是由一个政府激励计划创建的,在那里,城市化与大多数建筑的建设并驾齐驱。因此,这个阴谋最初要考虑的背景基本上是少数几个存在的因素:方向、主风和远距离存在的城市主要高速公路之一。
The plot, located in the new part of the Industrial Area of Brasilia, SIA (Setor de Indústrias e Abastecimento) also posed its challenge. If, on the one hand, it is commonplace to face the urban context as a dialogue and motivation element for the first architectural decisions, what can one say about a plot in which an urban context is virtually inexistent? This was precisely the case of this new area of SIA, created from a government incentive program, where urbanism was done alongside with the construction of most buildings. Thus, the initial context of this plot to be taken into account was basically the few existent elements: orientation, main winds and the distant presence of Estrutural express way, one of the city’s main express ways.
© Joana França
(Joana Fran A)
© Joana França
(Joana Fran A)
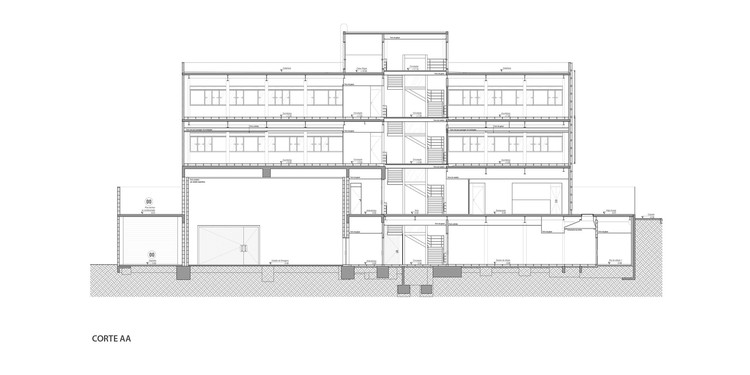
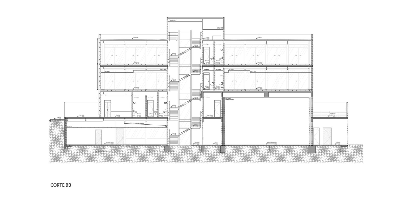
首先,工作室位于停车场的后部,充分利用了城市法律所要求的约束条件,留下了 3,8mT 的侧轨供车辆循环使用。工作室旁边的区域,以及编辑和工作人员中心,应该围绕着它,但这种安置会影响底层公共区域的流通。为了解决这一问题,决定使用地下,因为立法允许完全占领,使地下半地下,它的通道在下面的地板。工作室的附属区域和工作人员中心可以包围它。编辑中心位于地下前部,考虑到控制自然采光和通风的必要性,为校准颜色和阻塞噪声等技术目的提供了一个非常合适的位置。
Firstly, the studio was positioned at the back part of the lot, taking the most advantage of the restraining required by the city law and leaving a 3,8 mt side track for vehicle circulation. The areas next to the studio, as well as the editing and staff centers, should surround it, but that placement would impair the groundfloor common areas circulation. In order to solve that, it was decided to use the underground, as the legislation allows full occupation, making the groundfloor semi-subterranean with its accesses on the floor below. The studio attached areas and the staff center may then surround it. The editing center is located at the front part underground, a well-fit position considering the necessity of controlling natural lighting and ventilation for technical purposes such as calibrating colors and blocking noises.
© Joana França
(Joana Fran A)
由于建筑面积占地下建筑面积的 80% 左右,自然采光和通风成为人们关注的主要问题,因为在可能的情况下,蒸汽出口和照明入口被放置在任何地方,比如底层的长凳下面。从战略上来说,它可以刺激建筑外的社会互动,同时也确保了地下的通风和开明。对于光限制区,地面设置了一个大的断口,使地下用户与外界直接接触。一堵绿色的大墙从法布里卡的大门下面出来,标志着它下面有生命的存在。毕竟,这里是人们大部分时间工作的地方,包括夜班。在那些时候,白昼和黑夜的区别是基本的,因此在公共区域的自然光。
Section AAAA节
工作室的位置定位在它旁边的垂直环流,在中心区域,而不是在地段的前端,这是一个更明显的选择。因此,上层 (办公区) 被分成两部分,这导致了更好的分层,增加了空间的灵活性和使用率。这使得楼层布局的变化成为租金和商业合作伙伴的目标。此外,中央自顶向下的开放空间提供不同区域和楼层之间的视觉联系,提供更多的休闲会议和加强公司的社会环境。
The studio’s location positioned the vertical circulation by its side, at the central area, rather than at the front part of the lot, a more obvious option. The upper floors (office area) were, therefore, divided in two, which led to a better stratification, increasing space flexibility and usage. That enabled layout variations on the floors destinated for rent and commercial partners. Besides, the central top-down open space provides visual connection between the different areas and floors, providind more casual meetings and reinforcing the company’s social environment.
© Joana França
(Joana Fran A)
由此产生的中庭是法布里卡总部的例外空间,也是人流开始的地方。它的全高度天花板将空中走道与垂直循环结合起来,以永久的方式将社会功能和限制功能联系在一起,并与金属结构的连续调制相交叉。人们可以注意到两层办公楼层和一楼的移动,尤其是东面和西面的玻璃与天花板上的玻璃、电梯关闭、楼梯和建筑物两侧之间的走道一样多。
The resulting atrium is the exception space in Fabrika’s headquarters, and also where the flow of people starts. Its full-height ceiling integrates the aerial walkways to the vertical circulation, links visually the social and restricted functions in a permanent way and intersects the metallic structure’s continuous modulation. The movement on the two office floors and the groundfloor can be noticed, especially by the intense presence of glass as much in the east and west façades as on the ceiling, elevator closures, stairways and walkways between the two sides of the building.
© Joana França
(Joana Fran A)
为了加强这一空间的活力,使用了一种不寻常的塑料资源:由 16 120×120 厘米水泥板组成的中庭完美方形形状所造成的规律性,以及通过连接建筑物的走道打破了反映地板调制的玻璃覆层天花板。人们可以想象一个扭曲的立方体,就像一个脊骨,从旋转在人行道上方的方形剪贴画中创造出想象中的空隙。这种效果是通过光线接触到的木制布置来加强的,无论是在天花板上还是在人行道的地板上。
In order to strengthen the dynamism of this space, an unusual plastic resource has been used: the regularity caused by the atrium’s perfect square shape – constituted by sixteen 120 x 120 cm cement boards – and the glass cladding ceiling mirroring the floor modulation is broken by the walkways connecting the building. One can imagine a twisted cube, like a backbone, creating imaginary voids square from the square cutouts rotated above the walkways. This effect is reinforced by wooden arrangements touched by light, both in the ceiling as in the walkways’ floors. © Joana França (Joana Fran A)
行人通道从停车场的前门一直延伸到底层的中央中庭,从工作室的混凝土结构向前延伸出一个黑色的建筑。这一设计为行人通道提供了很长一段时间的覆盖,同时也设置了一个象征性的姿态:工作室到达城市,邀请游客进入大楼。
The pedestrian access route has been set from the lot’s front entrance to the central atrium on the groundfloor by extending a black marquee from the studio’s concrete structure forward. This design provides coverage to the pedestrian access all the way long, at the same time that it sets a symbolic gesture: the studio reaches for the city, inviting visitors to access the building.
© Joana França
(Joana Fran A)
办公楼层 (第二层和第三层) 满足了与灵活性有关的项目要求,因为公共区域 (浴室、清洁库房和餐厅) 柱是面向中央中庭创建的,为主跨度的办公室留出了空间。这种自由跨度是由使用金属结构,能够达到 10,8 MTS 在交叉跨度,并提高地板,使快速布局变化。设置逻辑和电气安装的专用轴是必要的,因为它允许根据需要重新安装整个大楼。
The office floors (second and third) fulfill the project requirements related to flexibility, for what a common area (bathrooms, cleaning storages and dining rooms) column was created facing the central atrium, leaving space for the offices at the main span. This free span was made possible by the use of metallic structure, capable of reaching 10,8 mts in a cross span, and raised-floor, enabling quick layout changes. Setting exclusive shafts for logical and electrical installations was essential since it allows recabling the whole building as needed.
© Joana França
(Joana Fran A)
办公室的形式也得益于交叉通风和大量自然光的存在,排除了相当多的人工照明和通风设备。阳台,宽敞的办公空间,连接餐厅和中庭走道,关闭了这一区域的组成。这一辅助结构,从金属结构上悬垂 1,8 MTS,将整个建筑物的长度连接到东面,由穿孔的金属板保护。
The offices’s form also benefits from cross-ventilation and great presence of natural light, dismissing quite some artificial light and ventilation devices. The balconies, generous living spaces amongst the offices, connect to the dining rooms and atrium walkways, closing up this area’s composition. This auxiliary structure, that overhangs 1,8 mts from the metallic structure, links the whole building length through the east façade, protected by perforated metal sheets.
© Joana França
(Joana Fran A)
Architects CoDA arquitetos
Location SIA trecho 17, rua 40, lotes 125/145, Brasília-DF - Brasil
Architect in Charge Alberto Uno
Area 1700.0 m2Project Year 2011
Photographs Joana França, Aníbal Fontoura
Category Office Buildings
客服
消息
收藏
下载
最近






















































