查看完整案例


收藏

下载
© Shamnath Patil
(Shamnath Patil)
架构师提供的文本描述。这个项目是通过Mindtree收购另一家已经开始开发该网站的公司而产生的。其中一座建筑已建成晚期,其入口位于西侧。总体规划要求在第一栋建筑的东面再建一座独立建筑,并有自己的西侧入口。
Text description provided by the architects. The project came into being through Mindtree’s acquisition of another company who had started developing the site. One building was already constructed to an advanced stage, with its entry on the west side. The master plan called for a second detached building to the east of the first building, with its own west-side entrance.
这个总体计划被改变了,为校园里的所有居民提供了更大的团结感。第一栋建筑由东进入,在两座建筑之间插入一个中庭,作为共同的入口。中庭结构是用钢和玻璃建造的,形成了一个共同的社会景观,是把这两座建筑结合在一起的一块磁铁。
This master plan was altered to offer a greater sense of unity to all the inhabitants of the campus. The first building was altered to be entered from the east, and an atrium inserted between the two buildings to serve as a common entrance. The atrium structure is built with steel and glass, and forms a shared social landscape that is a common magnet uniting the two buildings.
© Shamnath Patil
(Shamnath Patil)
由于邻近湖泊造成的高水位,地下室停车必须限制在一个单一的层,而新的建筑物位于三层以上的地面停车场。中庭有一个直的大楼梯,连接所有停车层,并在新大楼的最低可居住楼层结束。工作人员可以离开任何停车场,轻松地搬到办公空间,旧大楼与横跨中庭的钢桥相连。
Due to a high water-table caused by an adjacent lake, basement parking had to be restricted to a single level, and the new building rests on three levels of above-ground parking. The atrium contains a straight grand staircase, connecting all the parking levels and terminating at the lowest habitable floor of the new building. Staff can exit any parking level and move easily to office spaces, with the old building connected with steel bridges that span the atrium.
© Shamnath Patil
(Shamnath Patil)
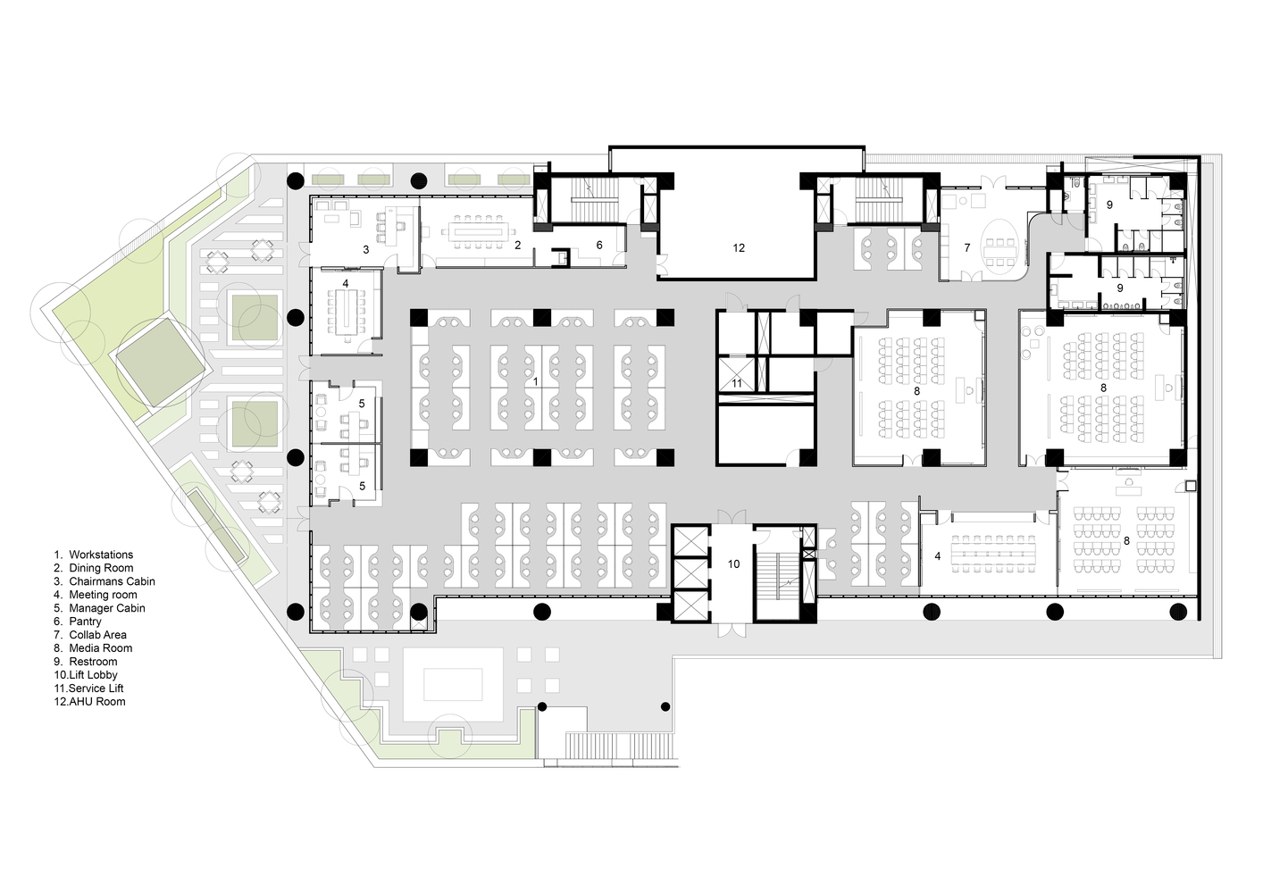
新大楼的每一层办公楼层都环绕着双高度的分隔空间,这些空间起到了社交磁铁的作用,在工作场所建立了一种社区感,减轻了工作压力,并提供了欣赏风景的有利条件,尤其是邻近的湖泊和绿色植物。
Every office floor of the new building is ringed by double-height break-out spaces. These spaces serve as social magnets that build a sense of community in the workplace, provide relief to the pressures of work, and offer vantage points to enjoy the views, particularly of the adjacent lake and greenery.
© Shamnath Patil
(Shamnath Patil)
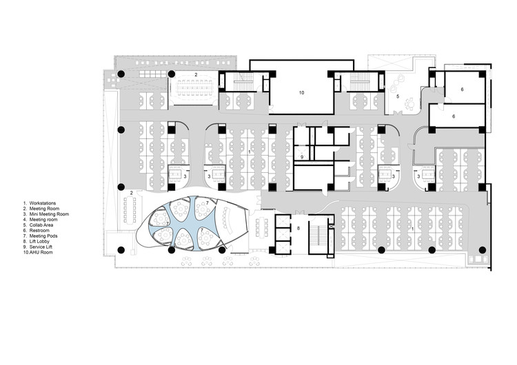
5th Floor Plan
五楼图则
© Shamnath Patil
(Shamnath Patil)
办公室楼层的足迹比停车场楼层的足迹要小,在三楼创造了一个露台。首席执行官的办公室就在这里,这样它就可以打开一个有景观的露台,提供室外会议和就餐,可以看到湖面。
The footprint of the office floors is smaller than the footprint of the parking floors, creating a terrace at the third-floor level. The CEO’s office is located here, so that it opens onto a landscaped terrace that offers outdoor conference and dining with a view of the lake.
Architects CnT Architects
Location Bengaluru, Karnataka, India
Architect in Charge Prem Chandavarkar, Vikram Desai, Sreenath Vinayakumar, Ashish Byakod
Design Team A Pratyusha , Suhash Lograjan, Sudha.K. Naved Mulla
Area 320000.0 ft2
Project Year 2016
Photographs Shamnath Patil
Category Institutional Buildings
Manufacturers Loading...
客服
消息
收藏
下载
最近




























