查看完整案例


收藏

下载
架构师提供的文本描述。兰布勒
Text description provided by the architects. RAMBLER&Co - one of the largest Russian groups of companies working in the field of media, technology and e-commerce. The company is the leader among media holdings in terms of coverage in Runet. The group includes information, sports and entertainment portals, editorial offices of Internet magazines and its department of development.
© Ilya Ivanov
伊利亚·伊万诺夫
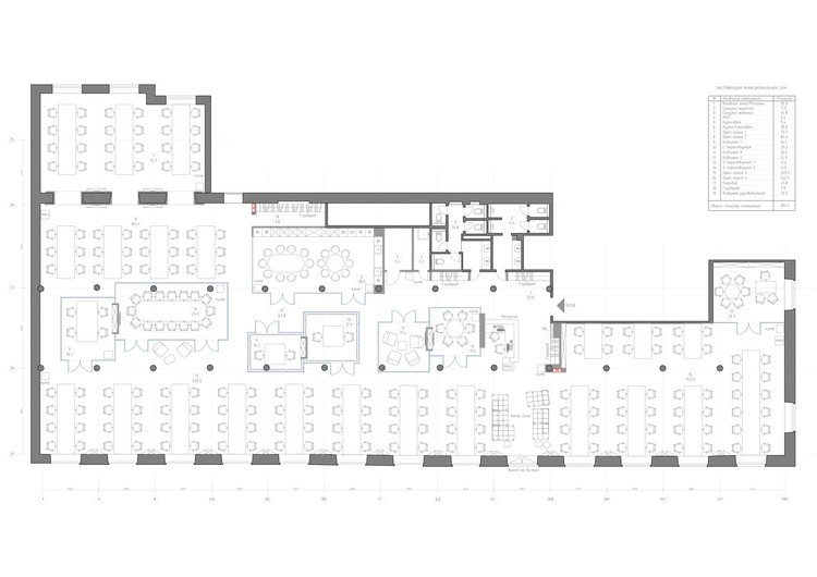
Floor Plan
© Ilya Ivanov
伊利亚·伊万诺夫
持股的扩大导致更多的程序员在莫斯科Danilovskaya马努工厂的建筑结构内需要自己的空间。
The expansion of the holding resulted in an increase in the number of programmers who required their own space within the structure of the premises occupied by the company at the Danilovskaya Manufactory in Moscow.
© Ilya Ivanov
伊利亚·伊万诺夫
设计工作涉及建筑工作室NEFA建筑师,在该项目下,其他部门的办公室的媒体控股较早创建。
The design work involved the architectural studio Nefa Architects, under the project of which offices of other divisions of the media holding were created earlier.
该项目的主要目标是为软件开发部的员工创造功能和简洁的空间。
The main goal of the project was the creation functional and laconic space for employees of the department of software development.
© Ilya Ivanov
伊利亚·伊万诺夫
这个项目必须在短时间内完成。在开发办公室内部时,必须考虑到建筑物的结构特点(两排支撑柱位于房间的中轴线)和19世纪工业建筑的历史环境,其中包括Danilovskaya Manuaya工厂。
The project had to be completed in a short time. When developing office interiors it was necessary to take into account the structural features of the building (two rows of supporting columns located along the central axis of the room) and the historical environment of industrial architecture of the 19th century, which includes the Danilovskaya Manufactory.
© Ilya Ivanov
伊利亚·伊万诺夫
的主要思想内部是创建一个数学清晰的结构的形象,使用“建筑”技术解决空间,符合计算机程序的内部架构,在其上工作的员工。
The main idea of the interior is to create an image of a mathematically clear structure, use "Architectural" techniques in the solution of space, consonant with the internal architecture of computer programs, on which employees of the unit work.
© Ilya Ivanov
伊利亚·伊万诺夫
一个纯粹的“数学”空间的图像是通过一组极小的零件和材料来解决的。该项目只使用白色,黑色和灰色的颜色,一个不同大小的立方体和黑色图形线条的设计与当地灰色口音的组合。
The image of a pure "mathematical" space is solved by a minimal set of parts and materials. The project uses only white, black and gray colors, a combination of different-sized cubes and black graphic lines of designs with local gray accents.
Architects Nefa Architects
Location Kauchuk Factory Club, Moskva, Russia
Lead Architects Dmitry Ovcharov, Elena Potemkina, Maria Nasonova, Margarita Kornienko
Lightning design Thirteen Studio
Area 900.0 m2
Project Year 2016
Photographs Ilya Ivanov
Category Offices Interiors
Manufacturers Loading...
客服
消息
收藏
下载
最近















































































