查看完整案例


收藏

下载
© Josema Cutillas
(Josema Cutillas)
架构师提供的文本描述。它是一个坚固的混凝土墙,是展开整个工程的要素。墙,在一些地区相当高,半埋在其他地区是一种保护机制:一方面,它保护房子不受负面的方向-北部和西部-另一方面,它也保护房子不受周围地块的观点和观点的影响。最后,它也是一种控制土地的机制,因为它允许房屋产生平坦的空间,并使自己适应土地的强烈不均匀性。
Text description provided by the architects. It is a strong concrete wall the element that unfolds the whole project. The wall, that is quite high in some areas and semi-buried in other areas is a protection mechanism: on the one hand, it protects the house from negative orientations –north and west- and on the other hand, it also protects the house from the views and perspectives from the surrounding plots. And, finally, it is as well a mechanism of containment of land, since it allows the house to generate flat spaces and adapt itself to the strong unevenness of the land.
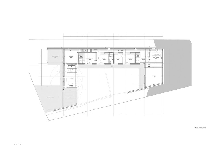
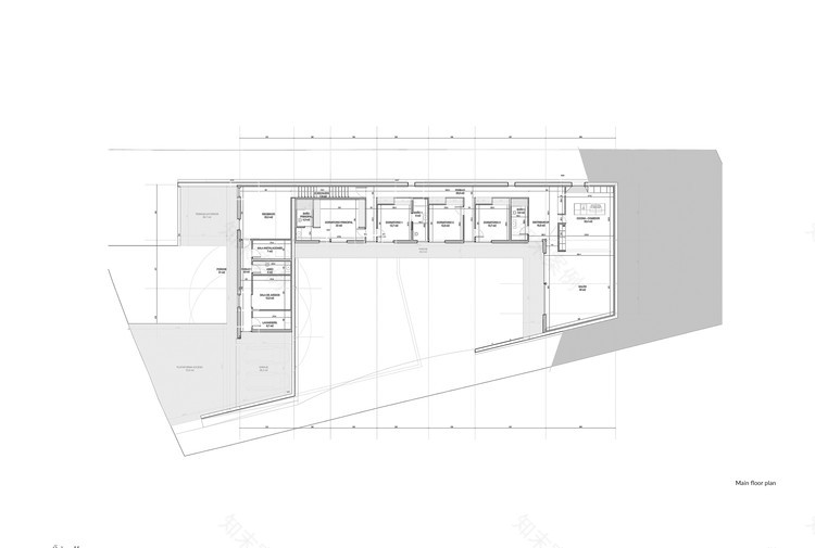
Ground Floor Plan
© Josema Cutillas
(Josema Cutillas)
因此,这堵墙做出了一个清晰的“L”形手势,其结果是非常清楚的:这样,房子就完全朝南和向东的水平的、非常私人的花园敞开。看那个花园的门面是柔软而温暖的。它由竖直的Iroko木片和大的玻璃空穴组成-卧室被放置在长长的身体里,而起居室被放置在短的身体里。相反,北面和西面比较粗糙,它们是墙的王国,是“L”的背面;它们被混凝土和锌板所支配。只有一些彩色的洞允许光线进入非常特定的点。
The wall, then, makes a clear “L”-shaped gesture whose consequence is very clear: the house thus opens fully towards a horizontal and very private garden, facing south and east. The façade that looks to that garden is soft and warm. It is made up of vertical pieces of Iroko wood and large glass hollows –the bedrooms are placed in the long body and the living room is placed in the short body. In contrast, the north and west facades are rougher, they are the realm of the wall, the back of the “L”; they are dominated by the concrete and zinc panels. Only some colored holes allow the entrance of light at very specific points.
© Pablo García Esparza
c.帕布洛·加西亚·埃斯帕萨
第二个“L”手势,由一个较小的墙壁,创造了一个较低的身体,其中大厅,服务区,和车库。这个身体也是一个防御元素:它的正面是非常抽象的,由Iroko木塑造的,它可以阻止任何内部景致,而由上述墙产生的后立面是花园的前部。它保护它远离通道街道,并使所有的观点从内部走向遥远的景观。
A second “L” gesture, drawn by a smaller wall, creates a lower body, where the lobby, the service area, and the garage are housed. This body is also a defensive element: its frontal façade, which is very abstract and shaped by the Iroko wood, prevents any view of the interior, and its rear façade, generated by the aforementioned wall, acts as a front for the garden. It protects it from the access street and makes all the views from inside go towards the distant landscape.
© Josema Cutillas
(Josema Cutillas)
在建筑方面,房子被理解为一种平面游戏,它并不寻求成为一种由盒子或书籍组成的语言。因此,上述混凝土墙是向地面的边界面;木质表面是向花园形成围护的平面,最后,巨大的锌盖是一个斜平面,在墙上飞行,悬浮在墙上。事实上,它的结构是悬挂在墙上的金属柱子,因为它也支持在平面的花园外观。
In terms of construction, the house is understood as a game of planes, it does not seek to be a language of boxes or volumes. Thus, the aforementioned concrete walls are the boundary planes towards the ground; the wooden surfaces are the planes that generate the enclosure towards the garden and, finally, a huge zinc cover is an oblique plane that flies, levitating on the wall. In fact, its structure is suspended from the wall by metal pillars, as it is also supported in the plane of the façade of the garden.
© Josema Cutillas
(Josema Cutillas)
它是一个离散的,内向的房子,它的主要空间,中央花园,是平静和柔软的,它是一个自然环境,逃避任何暴露的感觉。一旦一个人位于这种空间的中心,就不可能感觉到房子被安置在一个由非常狭小和裸露的地块构成的住宅区里。材料是天然的。可以说,他们是真诚的,因为他们没有油漆或覆盖:混凝土与锯木板的纹理,锌(天然锌,而不是预修复)和美丽的伊罗科木处理过的油。
It is a discrete, introverted house, and its main space, the central garden, is calm and soft, it is a natural environment that escapes any sensation of exposure. It is impossible to perceive, once one is located in the center of such space, that the house is placed in a residential area made of very narrow and exposed plots. The materials are natural. It could be said that they are sincere since they are not painted or covered: concrete with the texture of sawn wood boards, zinc (natural zinc, not pre-patinated) and the beautiful iroko wood treated with oil.
© Pablo García Esparza
c.帕布洛·加西亚·埃斯帕萨
Longitudinal Section Living Room
纵向客厅
© Pablo García Esparza
c.帕布洛·加西亚·埃斯帕萨
在内部,另一方面,物质话语几乎是相反的。支配外部的天然材料的粗糙让位于隔板的光滑和白色的表面以及屋顶的底部。然而,有一些关于材料“真诚”的记忆是外表的特征:例如,卧室的地板和某些垂直墙壁都是用天然的丹麦松木覆盖的;或者柱子,虽然是用白色漆的,但总是从里面暴露出来。简而言之,室内空间是一个更抽象的环境,由天花板和某些隔间的倾斜形式以及通过它们的平滑光线所支配。
Inside, on the other hand, the material discourse is almost the opposite. The crudity of the natural materials that govern the exterior gives way to the smooth and white surfaces of the partitions and the underside of the roof. There are, however, some memories of the material “sincerity” which characterizes the exterior: for example, the floors of the bedrooms and certain vertical walls are clad in natural Danish pine wood; or also the pillars, although they are painted in white are always exposed from the inside. In short, the interior space is a more abstract environment, dominated by the sloping forms of the ceilings and certain partitions, and by the smooth light that slips through them.
Axonometry 3
轴线测定,轴量法 3
客厅可能是这个项目的亮点。它是“L”的结尾,是最大的室内空间,也是内部和外部融合的区域。一个大的玻璃滑动门和由锌屋顶创造的门廊,允许这个空间的生活作为花园本身的连续性。因此,在它的后面是厨房和丹麦松的软木,在它的前面,由低矮的门廊(正是236厘米高)和倾斜的天花板构成的,是花园和潘普洛纳山区的山景。总之,隔离、隐私和某些材料的自然性是这个住宅项目的组成部分。
The living room is probably the highlight of the project. It is the end of the “L”, the largest interior space and the area where the interior and the exterior merge. A large glass slide door and the porch created by the zinc roof, allow the living of this spaces as a continuity of the garden itself. Thus, behind it is the kitchen and the soft wood of Danish pine, and on its front, framed by the low porch (exactly 236cm high) and the sloping ceiling, is the garden and the views of the mountains of the Pamplona area. Isolation, privacy, and naturalness of certain materials treated with great care are, in short, the ingredients of this residential project.
© Josema Cutillas
(Josema Cutillas)
Architects MLMR Arquitectos
Location Navarre, Spain
Author Architects Javier Martín, Víctor Larripa, Javier Martínez, Daniel Ruiz de Gordejuela
Area 400.0 m2
Project Year 2017
Photographs Josema Cutillas, Pablo García Esparza
Category Houses
Manufacturers Loading...
客服
消息
收藏
下载
最近











































