查看完整案例


收藏

下载
对于一个四口之家,一个缩小的长方形体积被设想,以尽量减少足迹的房子。该体系结构研究高效的规划和灵活的居住区域。该地块位于农村环境中,位于北面。
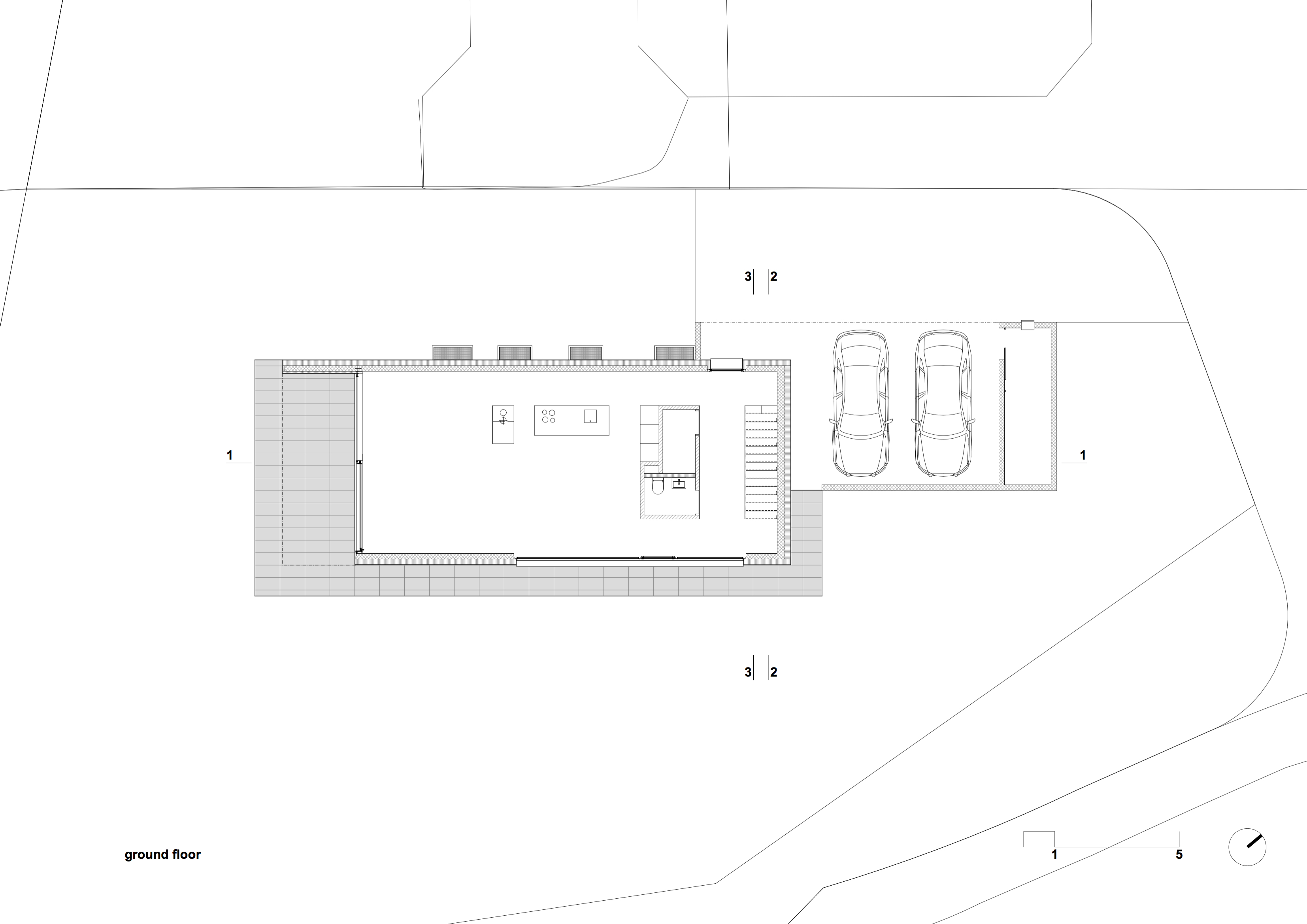
与主要体积相比,双车座位于北侧突出,指示入口的位置。使用不同的材料,两者的组成更加突出。与光滑的房屋灰泥相比,车库裸露的混凝土提供了视觉结构。
这两卷的清晰组织与窗口的位置和节奏强调。在北面,音量似乎更加封闭,并为居民提供了隐私。相对于南面,广阔的玻璃面展现了瑞士阿尔卑斯山令人叹为观止的景象。
底层是作为一个开放式的居住空间,细分为区域。一进入房子,风景就被拉进花园里。为了将入口与主生活区分开,创建了一个具有必要功能元素的单元。这使集体生活空间得以不受干扰。从入口处,穿过厨房,进入起居区,最后到达门廊。这种紧凑的形式是一个高质量的居住区域,没有妥协。
开放的楼梯通向楼上的卧室和浴室。清晰的路由使功能空间最大化。这样就可以在主卧室里创造一个宽敞的家庭浴室,甚至可以为步入式衣橱提供空间。
Firm Tormen Architekten AG
Type Residential › Private House
STATUS Built
YEAR 2016
keywords:architecture, architecture news, interiors, interior design, portfolio, spec, brands, marketplace, products EFH Lommiswil
关键词:建筑、建筑新闻、室内设计、室内设计、组合、规格、品牌、市场、产品EFH Lommiswil
客服
消息
收藏
下载
最近






























