查看完整案例


收藏

下载
为无家可归者建造新的庇护所,除了满足居民的住房和食物需求外,还提供了一个改善社会排斥群体生活质量的机会,他们的需求远远超过了找到一个睡觉的地方这一简单事实。
该提案界定了一个声音量,能够以个性假设它将受到的使用强度,同时在其运作上具有灵活性,在这种情况下,内部配置有利于不同用户群体之间的共存,并允许满足在一个相对复杂的方案中发现的不同需求,尽管其空间有限:卧室、餐厅、职业车间、休闲室等。
一个无声的盒子被提出,保护它的内容免受旁观者的好奇心,并充分整合其缩小的规模,在半城市,凄凉的环境。
该项目在各级进行了认真的争论:
-空间:极为合理的分配被处理、调整和调整,在那里,需要的程序耗尽了我们可支配的面积。
-正式:提出了一种谨慎、合理和包容的建筑,没有任何幻想的空间。
-经济和时间:在6个月的调整期内进行的建筑工程,数额为870€/m2。
-精力充沛:该建筑具有A级精力充沛资格。
该中心为使用者提供住所和食物。作为交换,他们必须参与日常的维护工作,如清洁、清洗、园艺、油漆、…等。以这种方式寻求个人妥协,并积极关注对新安装的尊重。
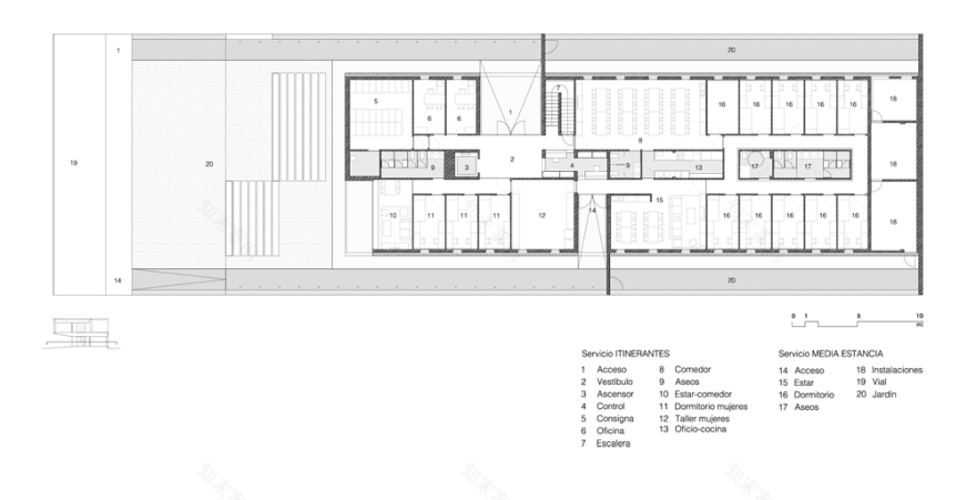
职能组织:
一个中央卷承载着大楼的服务和安装。分配空间围绕着这一核心,并被带到中心的起居空间,这些空间设置在外部周边,目的是从自然光和通风中获益:卧室、车间、餐厅和休闲室。
由铝型材构成的外部格既保证了用户的理想隐私,又解决了在该中心可能出现的入侵问题,并配置了均匀统一的外部图像,使建筑物的规模适应其环境。
这座大楼有两种不同的用途:一种是人质服务,另一种是为市内无家可归者提供的中等住宿中心。虽然这两个小组生活在同一卷,项目必须避免两个程序之间的干扰,以促进其功能独立性。为此,提出了两条独立的通道,分别通过两个相对的纵向正面。
用户中心采用地面和整个一楼,共有18间双人房。它与相应的厕所和浴室互补,一个职业工作室,在这里,用户可以在白天提供多种类型的工作,一个干洗店服务,一个容量高达48个座位的社会食堂,休闲室,行政,记录。灵感和储物柜。
中等住宿服务规模较小,提供9间双人房,以及相应的厕所和公共区域。
Firm Javier Larraz Arquitectos
STATUS Built
YEAR 2010
keywordsarchitecture, architecture news, interiors, interior design, portfolio, spec, brands, marketplace, products Shelter Home for the Homeless
关键词-建筑、建筑新闻、室内设计、组合、规格、品牌、市场、无家可归者庇护所
客服
消息
收藏
下载
最近





















