查看完整案例


收藏

下载
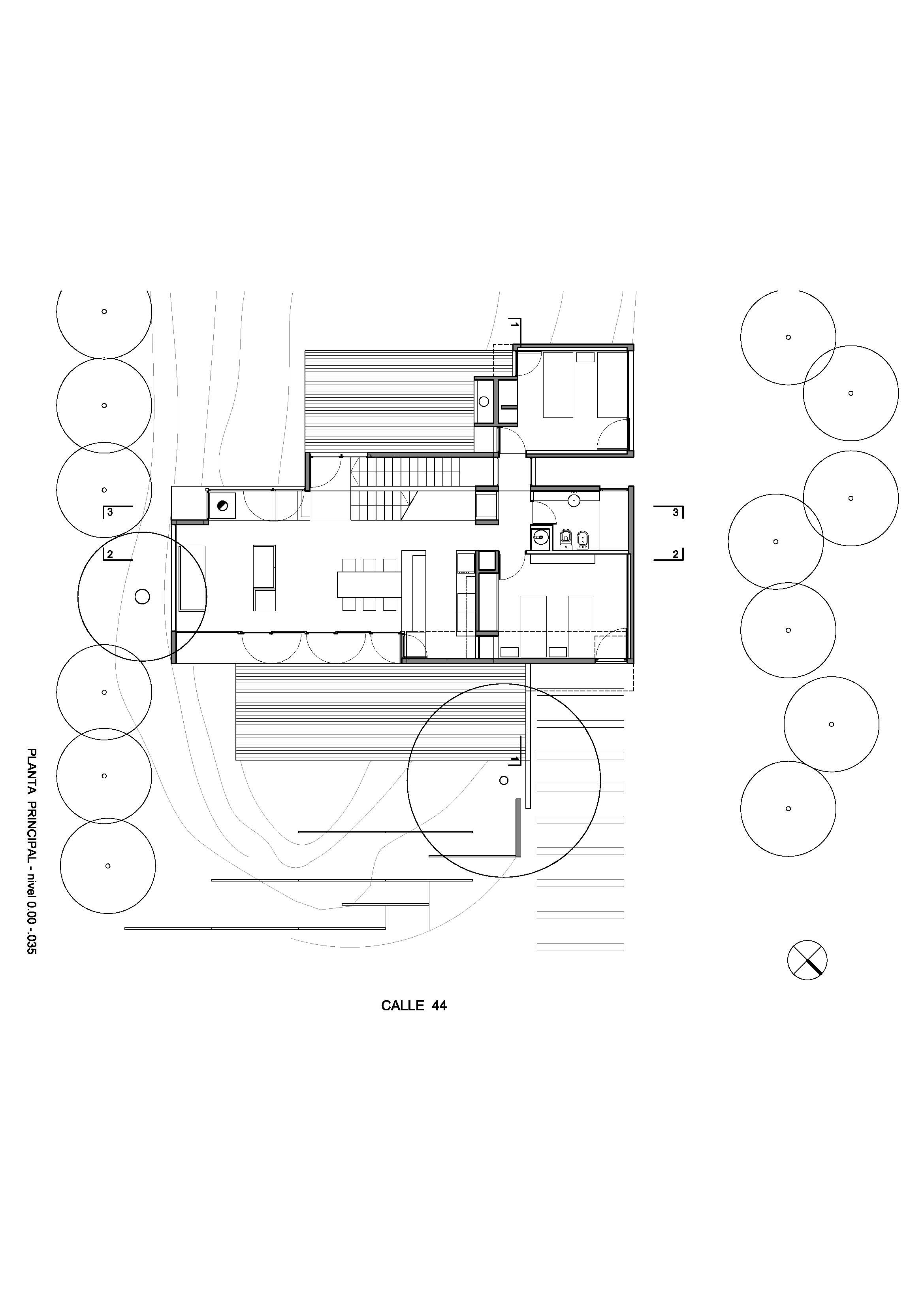
我们在马阿祖尔的第一件混凝土工程很受欢迎,在用同样的材料建造了许多房子之后,我们一直在森林里,我们被委托在海滩附近用混凝土建造一座房子。我们在开始使用与原始环境有关的同样的美学和建设性的系统时犹豫不决,但最后我们一致认为,我们可以做出必要的安排,在这样一个不同的环境中使用这个系统:沙滩尽头的沙丘。在夏季和冬季受阳光照射的地方,以及在潮湿、寒冷、强风和暴雨的情况下,优化隔热是最基本的。使之成为可能的资源是:提议一座屋顶可以由不同的当地人扩展的房子,在楼板上铺上木板,允许不同的户外活动,并作为“伞”运行,以防止阳光(就像其他房子里的森林所做的那样)。我们还必须控制眩光的影响,当阳光在沙子中反射时产生太阳光。我们认为从地板到屋顶的开口是不方便的,它们必须用屋檐来保护,而不是控制它们的形状和位置,因为它们与太阳的路径和主要的风有关。有了这些基本前提,我们便展开了“泳滩屋”计划。
Firm BAK Arquitectos
Type Residential › Private House
STATUS Built
YEAR 2009
keywordsarchitecture, architecture news, interiors, interior design, portfolio, spec, brands, marketplace, products Casa en La Playa
关键词建筑,建筑新闻,内饰,室内设计,组合,规格,品牌,市场,产品Casa en La Playa
客服
消息
收藏
下载
最近




























