查看完整案例


收藏

下载
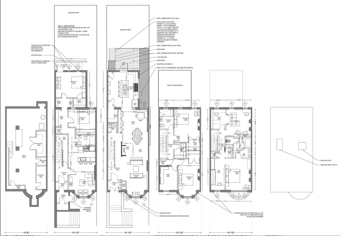
标有地标的单户褐石改造成两座家庭建筑。翻新的特点是世纪交替的磨坊,蒂芙尼彩色玻璃窗的修复,以及开放式厨房和生活空间的整合。基础设施升级的先进机械系统的现状集在一个当代的布局。中东和欧洲的纺织品和陶瓷影响到一个专业的家庭厨房连接到外部花园。
Firm C.Wall Architecture
Type Residential › Multi Unit Housing Private House
STATUS Built
SIZE 3000 sqft - 5000 sqft
BUDGET $500K - 1M
keywords:architecture, architecture news, interiors, interior design, portfolio, spec, brands, marketplace, products Bed Stuy Brownstone
关键词:建筑,建筑新闻,室内设计,组合,规格,品牌,市场,产品床
客服
消息
收藏
下载
最近
















