查看完整案例


收藏

下载
架构师提供的文本描述。与我们的客户的设计过程,谁总是开放的任何建议,改进和新的想法是关键的项目。该项目必须有一个内部和外部的结合关系,显示客户独特的个性和他对户外的热情。
Text description provided by the architects. The design process with our client who was always open to any suggestions, improvements and new ideas were key to the project. The project must had a combined relation between interior and exterior showing the client’s unique personality and his passion for outdoors.
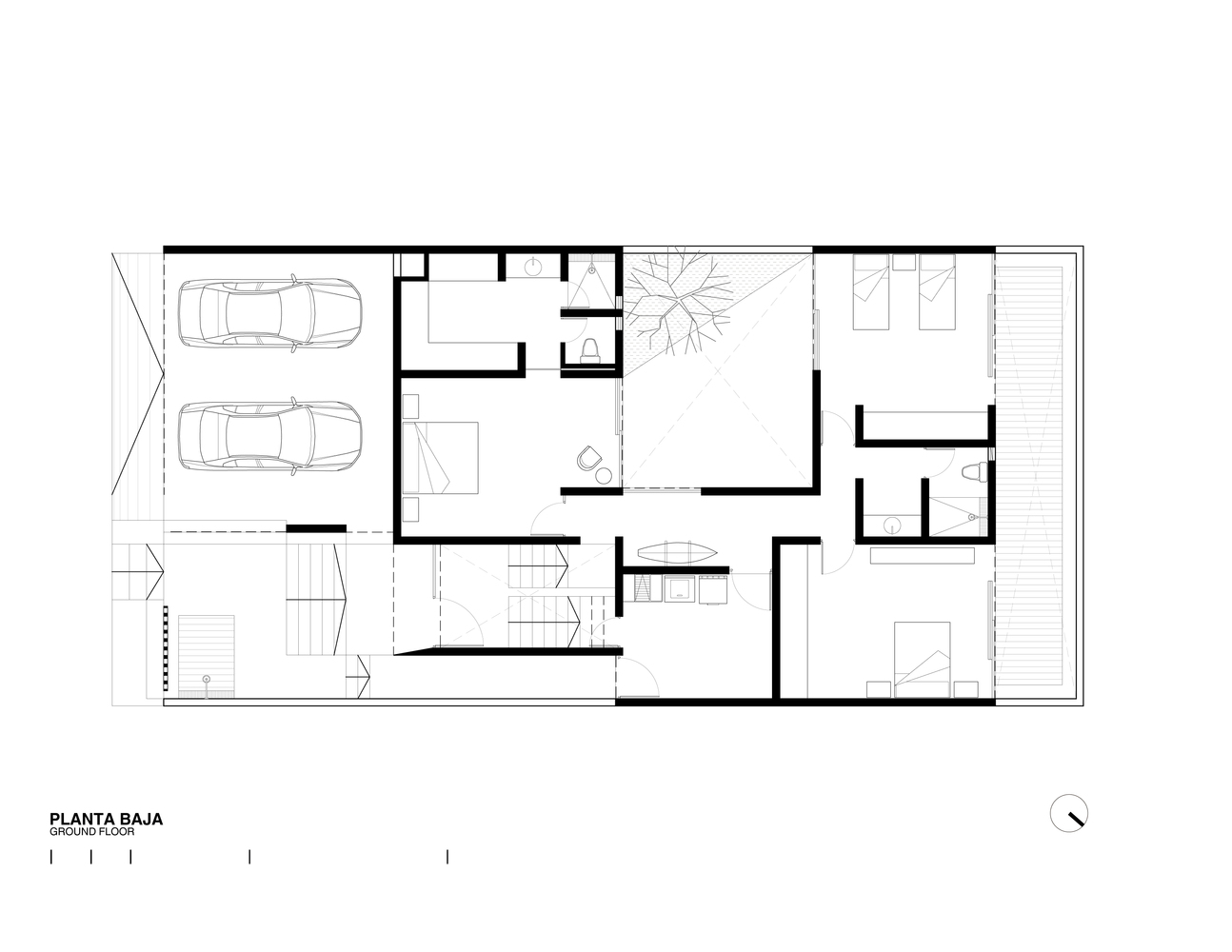
位于距离海滩100米,在一个封闭的社区,很多是矩形的房屋是建立密集之间没有空间,结果是糟糕的光和空气流通的家庭。知道了这一点,我们的主要目标是创造一个与海洋有着密切关系的完全独立的环境。海底设计是我们的客户的所有想法、想法和需求的结果。
Located a hundred meters from the beach inside a gated community, the lotsare rectangular where homes are built densely without space in between, and the result of this is poor light and air circulation inside homes. Knowing this, our main objective was to create a totalindependence from contextbut with an intimate relation with the ocean. The floor design is the result ofthisand all thoughts, ideas and needs of our client.
© Onnis Luque
欧尼斯·卢克
为了更好地利用景观,我们修改了传统的住宅设计,将公共空间保留在上层,私人空间在较低层。较低层与地面保持密切而舒适的关系。高层与光和天空有着密切的关系。风景和海洋是美丽的平屋顶的一部分来享受。
To get a better use of the sights, we modified the conventional housing design, leaving public spaces at the upper floor, and private spaces at the lower level. Lower level is close and cozy keeping a strong relation with the ground. Upper level has a close relation with light and the sky. The landscape and the ocean are part of beautiful flat roof to enjoy.
© Onnis Luque
欧尼斯·卢克
在形式上,房子是一个封闭的区域,使用庭院风格,一个包含外部空间。它的三个庭院每一个房间都是明亮的和风的,给天空带来了独特的景象。
Formally, the house is an enclosed area using a courtyard style, a contained exterior space. Its three courtyards brings up to each one of the rooms brightness and wind, getting a unique sight to the sky.
© Onnis Luque
欧尼斯·卢克
第一个庭院就是沉思;从卧室里看,这是一种放松和鼓舞人心的体验,同时,从厨房和客厅看,这棵绿树成荫的树就像一层绿色的面纱。第二个庭院连接所有次级房间,允许用户之间有一个亲密的空间。最后,位于客厅旁边的第三个庭院,尊重社会生活,连接到平顶,这是该项目的领先和最大的空间。
First courtyard is all about contemplation; from the bedrooms the experience is relaxing and inspiring, meanwhile from the kitchen and living room the leafy tree looks like a green veil. Second courtyard interconnects all secondary rooms allowing an intimate space among its users. Finally the third courtyard situated beside living room, honors social life and connects to flat roof which is the project’s leading and greatest space.
© Onnis Luque
欧尼斯·卢克
它的建筑是一个白色的画布,没有任何装饰元素和视觉清洁,这仍然是一个优雅的紧缩。
Its architecture is a white canvas, without any decorative elements and visually clean that remains an elegant austerity.
© Onnis Luque
欧尼斯·卢克
客服
消息
收藏
下载
最近





















