查看完整案例


收藏

下载
© Onnis Luque
欧尼斯·卢克
架构师提供的文本描述。我们想提出一座能够通过建筑元素来传达其工业状况的建筑。因此,我们回顾了工业建筑中可以识别为经典的几种形式:锯齿屋顶和空腹梁。艾伯特·卡恩的作品是一个非常相关的例子,通过构造表达展示了工业建筑的特殊美。
Text description provided by the architects. We wanted to propose a building that was able to communicate its industrial condition through the architectural elements. So we recalled a couple of forms that is possible to recognize as classics in industrial architecture: the saw tooth roof and the vierendeel beam. The work of Albert Kahn is a very relevant example of the particular beauty of industrial architecture through a tectonic expression.
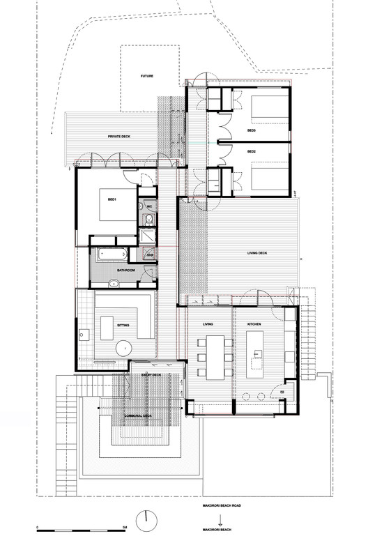
Ground Floor Plan
我们的工程建立了锯齿屋顶和空腹梁的构造体系,其沿立面的重复使建筑物本身的特性成为可能,并与距地块几米处的一套筒仓建立了正式的关系。该系统的变化使建筑的内部空间,如仓库、私人办公室、会议室和其他空间的不同条件和要求得以体现在外墙上。很重要的一点是要明白,这座建筑物的建造成本很低,这也是它所使用的材料的原因。
Our project sets up a tectonic system of saw tooth roofs and vierendeel beams whose repetition along the facade make possible the character of the building itself and establishes a formal relation with a set of silos located a few meters from the plot. Variations in that system allow manifesting in the façade, the different conditions and requirements of the inner space of the building, such as warehouse, private offices, meeting rooms and other spaces. It is very important to understand that this building was constructed with a very low budget and that is the reason for the materials used in it.
© Onnis Luque
欧尼斯·卢克
在建筑物的一角,我们可以观察到构造体系的重大变化;屋顶的方向发生了变化,以体现与入口所在的小街的新关系。否则,从街道上可以看到屋顶的斜坡。
In the corner of the building we can observe a major variation in the tectonic system; the direction of the roof has changed to manifest the new relation with the side street where the entrance is located. Otherwise the slope of the roof could be seen from the street.
为了减少太阳辐射,并保护窗户免受夜间边缘条件的破坏,提出了一种钢制晶格结构。我们验证了锯齿屋顶观察仓库空间自然照明质量的有效性,只是使用一个传统的半透明塑料板作为天窗梁的盖子。
A steel lattice work was proposed to reduce solar radiation and also to protect the windows from possible vandalism due the marginal conditions of the zone at night. We verified the effectiveness of the saw tooth roof observing the quality of natural lighting in the warehouse space, just by using a conventional translucent plastic sheet as a lid on the Vierendeel beams.
© Onnis Luque
欧尼斯·卢克
内部工作空间被描述为一个双高度病房,受到OSB面板墙的限制,它以低成本增加了友好的气氛,同时也保持了工业特性。人们可以在瓜达拉哈拉街头找到手工艺工人,根据要求用塑料线和许多天然纤维等不同材料编织物品。我们想在建筑中添加一个手工艺品样本,所以我们决定雇佣一组织布工来用扶手编织,用棕榈叶编织它的缝隙。
The inner work space is described as a double height ward, limited by OSB panel walls that add a friendly atmosphere at low cost, and also maintaining the industrial character. It is possible to find craft workers on the streets of Guadalajara, weaving objects on request with different materials like plastic threads and many natural fibers. We wanted to add to the building a craftwork sample, so we decided to hire a team of weavers to work with the handrails, weaving its gaps with palm leaves.
© Onnis Luque
欧尼斯·卢克
Architects ATELIER ARS°
Location Zapopan, Jal., Mexico
Category Industrial Architecture
Architects in Charge Alejandro Guerrero Gutiérrez and Andrea Soto Morfín
Area 1184.0 sqm
Project Year 2014
Photographs Onnis Luque
Manufacturers Loading...
客服
消息
收藏
下载
最近



































