查看完整案例


收藏

下载
© Parham Taghioff
.Parham Taghioff
建筑师提供的文字说明。该项目位于德黑兰西南262公里的Mahallat居民区,气候炎热干燥。这座城市周围的区域丰富了石灰华,主要是由于两个重要的石灰华当地矿井,称为哈比德和阿伯巴达巴德。该项目被委托给建筑师,当时建筑和地板已经建成,客户需要一个具有成本效益的项目。
Text description provided by the architects. The project is located on a residential periphery of Mahallat, 262 kilometers southwest of Tehran with the hot and dry climate. The area surrounding the city is rich with travertine which is mainly because of the two significant travertine local mines called Hajiabad and Abbasabad. The project was delegated to the architect at a time when the structure and floors plates were already built and the client required a cost-effective project.
Text description provided by the architects. The project is located on a residential periphery of Mahallat, 262 kilometers southwest of Tehran with the hot and dry climate. The area surrounding the city is rich with travertine which is mainly because of the two significant travertine local mines called Hajiabad and Abbasabad. The project was delegated to the architect at a time when the structure and floors plates were already built and the client required a cost-effective project.
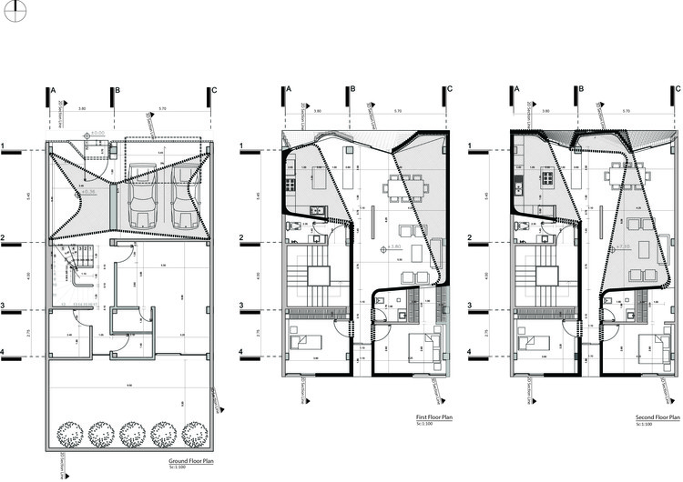
Floor Plans
平面图
土地面积为18*10米,与被占领的邻居在其东部和西部。从南部和Sarcheshmeh的绿区可以看到钙华矿和山脉,这是最著名的社区之一,从遗址边界的北部可以看到著名的旅游景点之一。马哈拉的大部分经济从事石材的切割和加工,我们的客户也是一位独立的石材专家和石材销售商。他的专长是低价挑选和咨询各种石头。(这显然反映了项目的过程)
The land size is 18 * 10 meters with the occupied neighbors on its east and west. Travertine mines and mountains are visible from South and Sarcheshmeh’s green area which is one of the most famous neighborhoods and one of the popular tourist attractions is visible from the North of the site boundary. The majority of Mahallat’s economy is engaged in the business of cutting and treating stone and our client is also a stone expert and stone seller independently. His expertise is in choosing and consulting various stone at the low price. (and this has obviously reflected on the process of the project)
The land size is 18 * 10 meters with the occupied neighbors on its east and west. Travertine mines and mountains are visible from South and Sarcheshmeh’s green area which is one of the most famous neighborhoods and one of the popular tourist attractions is visible from the North of the site boundary. The majority of Mahallat’s economy is engaged in the business of cutting and treating stone and our client is also a stone expert and stone seller independently. His expertise is in choosing and consulting various stone at the low price. (and this has obviously reflected on the process of the project)
© Parham Taghioff
.Parham Taghioff
2014年,我们的客户以合理的价格购买了该政府财产,已被分割。他梦想着建造自己的第一个家,使它成为他在附近工作的完美构造的样本。所有程序沿着软连续连接,以形成具有贯穿整个项目的各种运动的空间分割。从大厅开始,穿过天花板,内墙,一直到屋顶。
In 2014 our client bought this governmental property at a reasonable price from which it has been already divided. He had a dream of building his first home to make it as a perfectly constructed sample of his work in the neighborhood. All programs are connected along the soft continues to form to create spatial divisions with a variety of motion throughout the project. Starting at the ground floor from the lobby through the ceiling, internal walls and continues all the way to the rooftop.
In 2014 our client bought this governmental property at a reasonable price from which it has been already divided. He had a dream of building his first home to make it as a perfectly constructed sample of his work in the neighborhood. All programs are connected along the soft continues to form to create spatial divisions with a variety of motion throughout the project. Starting at the ground floor from the lobby through the ceiling, internal walls and continues all the way to the rooftop.
© Parham Taghioff
.Parham Taghioff
© Parham Taghioff
.Parham Taghioff
向北的几何方向提供了壮观的角度和向北立面的旋转,以在环境中创建不同的透视,而没有旋转的相同移动将不同的质量添加到南立面。这种运动不仅是一种概念性的运动,而且是利用石头作为环境碎片的一种创造性的方式,帮助我们建立一个具有成本效益和环境友好的项目。
The orientation of the geometry to the North provides spectacular angle and rotation to the North facade to create a different perspective to environment whereas the same movements without rotation add a different quality to the South facade. This movement was not only a conceptual movement but also a creative way to utilize the stone as an environmental piece helping us to build a cost-effective and environmentally friendly project.
The orientation of the geometry to the North provides spectacular angle and rotation to the North facade to create a different perspective to environment whereas the same movements without rotation add a different quality to the South facade. This movement was not only a conceptual movement but also a creative way to utilize the stone as an environmental piece helping us to build a cost-effective and environmentally friendly project.
Architects CAAT Studio
Location Mahalat, Iran
Category Houses
Lead Architects Mahdi Kamboozia, Helena Ghanbari
Area 290.0 m2
Project Year 2018
Photographs Parham Taghioff
Manufacturers Loading...
客服
消息
收藏
下载
最近

























