查看完整案例


收藏

下载
架构师提供的文本描述。针对亚热带气候的现实情况-阳光刺眼、夏季炎热和潮湿、冬季寒冷、潮湿、腐蚀性空气传播的盐、高降雨、偶尔出现热带风暴和狂风-需要深入了解微气候和景观,以及如何利用两者创造一个高效、实用和令人愉快的居住场所。
Text description provided by the architects. Designing for the realities of a sub tropical climate – with its harsh sunlight, summer heat and oppressive humidity, winter chills, damp, corrosive air borne salt, high rainfall and occasional tropical storms and fierce winds– requires a deep understanding of the micro climate and the landscape, and how both can be used to create an efficient, functional and delightful place to live.
Text description provided by the architects. Designing for the realities of a sub tropical climate – with its harsh sunlight, summer heat and oppressive humidity, winter chills, damp, corrosive air borne salt, high rainfall and occasional tropical storms and fierce winds– requires a deep understanding of the micro climate and the landscape, and how both can be used to create an efficient, functional and delightful place to live.
© Luc Remond
勒克雷蒙德
这座位于澳大利亚拜伦湾(Byron Bay)的新家庭住宅,由这些建筑师为一个带着年幼子女的年轻家庭设计,展示了如何利用气候来达到最佳效果。它的形式和结构与当地的海滨建筑风格截然不同,它的设计将气候挑战转化为优势,创造了一个轻盈、大方的家,在夏天保持凉爽,在冬季保持温暖,鼓励海风流过,将每个房间从视觉上或功能上连接到外面,或者两者兼而有之。
This new family house in Australia’s Byron Bay, designed by THOSE architects for a young family with their clan of young children, demonstrates how climate can be harnessed to best effect. Distinctly different in form and structure from the local beachside architectural vernacular, its design turns climate challenges to advantage, creating a light filled, generous home that stays cool in the summer and warm in the winter, encourages sea breezes to flow through, and connects every room to the outside, either visually or functionally, or both.
This new family house in Australia’s Byron Bay, designed by THOSE architects for a young family with their clan of young children, demonstrates how climate can be harnessed to best effect. Distinctly different in form and structure from the local beachside architectural vernacular, its design turns climate challenges to advantage, creating a light filled, generous home that stays cool in the summer and warm in the winter, encourages sea breezes to flow through, and connects every room to the outside, either visually or functionally, or both.
© Luc Remond
勒克雷蒙德
在这里,建筑师实现了这一目标,他们将楼板的一侧转向,向北打开,并通过一个连接房屋新旧部分的大庭院将所有空间连接起来,并将所有内部空间与外部连接起来。郁郁葱葱的室内植物和天然材料的调色板进一步模糊了内外的界限,超越了本质上的郊区特征。
Here, the architects have achieved this by turning the floor plate on its side, opening it to the north and connecting all spaces via a large courtyard that joins old and new parts of the house, and links all internal spaces to the outside. Lush indoor plants and a palette of natural materials further blur the boundaries between inside and outside, and transcend the essentially suburban character of the site.
Here, the architects have achieved this by turning the floor plate on its side, opening it to the north and connecting all spaces via a large courtyard that joins old and new parts of the house, and links all internal spaces to the outside. Lush indoor plants and a palette of natural materials further blur the boundaries between inside and outside, and transcend the essentially suburban character of the site.
© Luc Remond
勒克雷蒙德
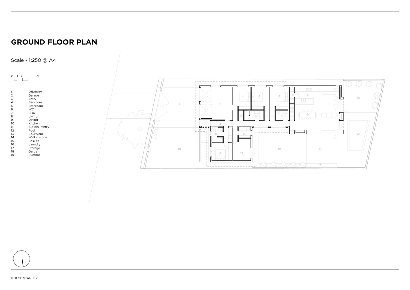
该遗址是该地区的典型代表,长度相对较长,测量范围为16m×40m,东/西向。离海滩这么近意味着它可以从夏季东北方向的凉爽海风中受益。建筑师们决定保留原来的房子,它的设计很差,但建筑坚固,用作儿童房和服务区。在后面又增加了一个新的两层高的音量,大多隐藏在原来房子后面的街道上。
The site is typical of the area, both relatively long and narrow measuring 16m X 40m, with a East/West orientation. Being this close to the beach means it benefits from the cooling NE sea breezes in summer. The architects decided to retain the original house, which was poorly designed but solidly built, for use as children’s rooms and service areas. To the rear hey added a new two-storey volume, mostly hidden from the street behind the original house.
The site is typical of the area, both relatively long and narrow measuring 16m X 40m, with a East/West orientation. Being this close to the beach means it benefits from the cooling NE sea breezes in summer. The architects decided to retain the original house, which was poorly designed but solidly built, for use as children’s rooms and service areas. To the rear hey added a new two-storey volume, mostly hidden from the street behind the original house.
© Luc Remond
勒克雷蒙德
一个宽敞的庭院充当整个房子的“连接点”-所有的空间都打开或进入它。
A generous courtyard acts as the “connector” for the whole house – all spaces open onto or access it.
A generous courtyard acts as the “connector” for the whole house – all spaces open onto or access it.
总的来说,房子的大小适中,只包含了所需的东西-没有多余的东西。
Overall, the house is modest in size, and contains only what is needed – no excess.
Overall, the house is modest in size, and contains only what is needed – no excess.
© Luc Remond
勒克雷蒙德
它是根据被动环境设计原则设计的。额外的庭院空间是在房子的东边和西边创建的,提供了可以避免夏日阳光的空间。大的滑动门邀请外面进来,使室内/室外的使用通过漫长的温暖的夏天。开口是有限的,并且只在需要的地方使用-通常用来捕捉微风或框架视图。深露提供阳光和天气保护。
It has been designed using passive environmental design principles. Additional courtyard spaces are created on the eastern and western edges of the house, providing spaces where the summer sun can be avoided throughout the day. Large sliding doors invite the outside in, enabling inside/outside use of the home through the long warm summers. Openings are limited, and used only where needed – generally to capture breezes or frame views. Deep reveals provide sun and weather protection.
It has been designed using passive environmental design principles. Additional courtyard spaces are created on the eastern and western edges of the house, providing spaces where the summer sun can be avoided throughout the day. Large sliding doors invite the outside in, enabling inside/outside use of the home through the long warm summers. Openings are limited, and used only where needed – generally to capture breezes or frame views. Deep reveals provide sun and weather protection.
© Luc Remond
勒克雷蒙德
以砖块为参照,对原民居用砖进行表面处理,确定旧砖自新。使用坚固的材料,以抵御年轻的家庭生活和恶劣的沿海气候,特别是盐。石灰石铺路参考了沙滩,提供了一个柔软的表面行走。硬表面通过木材细木工,亚麻布窗帘和柔和的中性色调内部软化。家具和配件主要来自澳大利亚和当地的工匠和供应商。
Brick was chosen to reference the original dwelling, with surface treatment of the bricks used to define old from new. Robust materials are used, designed to withstand young family life and the harsh coastal climate, particularly salt. Limestone paving references the sandy beaches and provides a soft surface to walk on. The hard exterior surfaces are softened internally through timber joinery, linen curtains and soft neutral tones. Furniture and fittings are mainly sourced from Australian and local artisans and suppliers.
Brick was chosen to reference the original dwelling, with surface treatment of the bricks used to define old from new. Robust materials are used, designed to withstand young family life and the harsh coastal climate, particularly salt. Limestone paving references the sandy beaches and provides a soft surface to walk on. The hard exterior surfaces are softened internally through timber joinery, linen curtains and soft neutral tones. Furniture and fittings are mainly sourced from Australian and local artisans and suppliers.
© Luc Remond
勒克雷蒙德
客服
消息
收藏
下载
最近































