查看完整案例


收藏

下载
要扩建一个房子,就是要在现有建筑上进行叠加修饰,有时还应该保留原有建筑的印记。我们需要扩建的房子靠近南特镇的 Procé 公园,它正是这种叠加修饰过程的一个清晰的例子,描绘了时间在前主人不断变化的需求中流逝的画面。
最初,这栋房子只有一层,一开始它被向一边扩建,然后最终局部被抬高。经历两次扩建的房子是否有能力迈入第三个扩建阶段,这一直是一个疑问。我们并没有推翻原有的扩建,而是通过抬高最初的建筑,以形成与第一次扩建相一致的新体量,完成了最后一块的拼图。
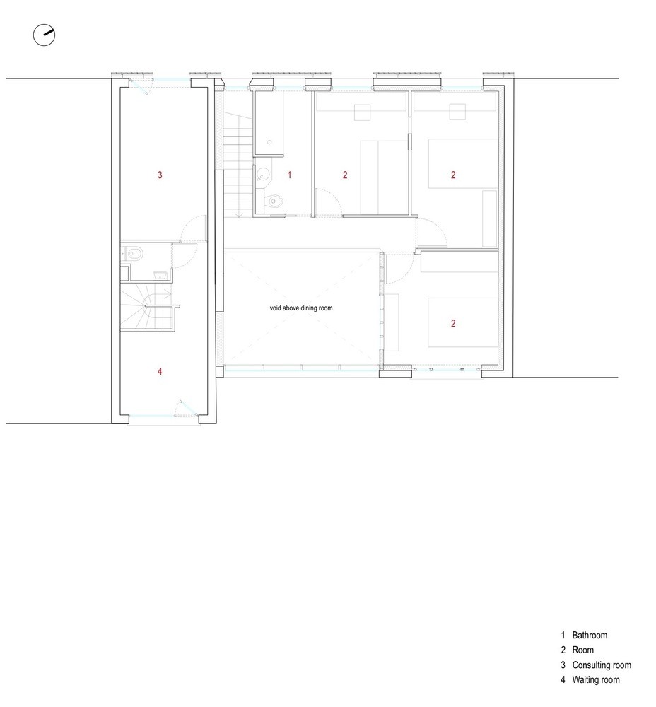
建筑是经历了三次扩建拼凑出来的,我们粉饰立面的目的是为了使其显得更加协调。尽管如此,细心的观察者仍能读出房子背后扩建的故事。接着我们安装了一个木质网格表皮,在建立内部和外部之间多种不同关系的同时,给整个建筑赋予了一个新的特征。新建成的上层楼板是L形的,目的是在首层限定两种不同的空间。
入户通道位于低矮的木质天花板下,形成一种压迫感,木纹的肌理更是增强了这种感觉。然而两层的通高空间,以及将花园景观引入室内的大面积落地窗,又带来一种减压的效果,人的心境因此随着建筑空间的变化而时刻变化着。
木质网格表皮建立了内部和外部之间多种不同的关系。比如它在选定的窗户前断开,就像浴室窗户外的那部分,保证享受阳光和通风的同时又可以过滤视野,又或者是客厅窗户外的那部分,在保护室内隐私的同时,让空气进入到建筑里。
客服
消息
收藏
下载
最近














