查看完整案例


收藏

下载
© Rachael Dere
拉切尔·迪尔
架构师提供的文本描述。在一栋面积不超过147平方米的受限内城街区内,简约是建造一套让人感觉宽敞的单一家庭住宅,其中至少有3间卧室和大小庭院,可以提供现场停车的潜力。为了适应空间的需求,唯一的是上升;楼上和私人宿舍和公共生活空间,以及下楼的客人卧室。坐落在一条以20世纪初工人农舍为特征的街道北侧,其相反的特点是住宅仓库的改建,这一提议在新旧之间走钢丝。作为对这一地区多产住房类型的一种认可,T2住宅通过使用材料,将工人的小屋重新解释为一个现代的木结构家庭住宅,采用田园诗般的“房子”形象,将其贯彻到前栅栏轮廓中的细节。
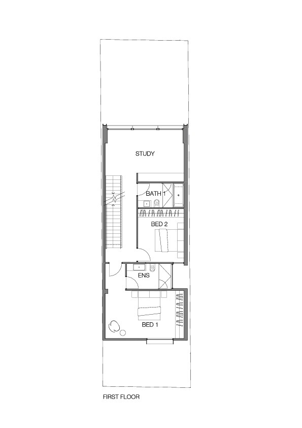
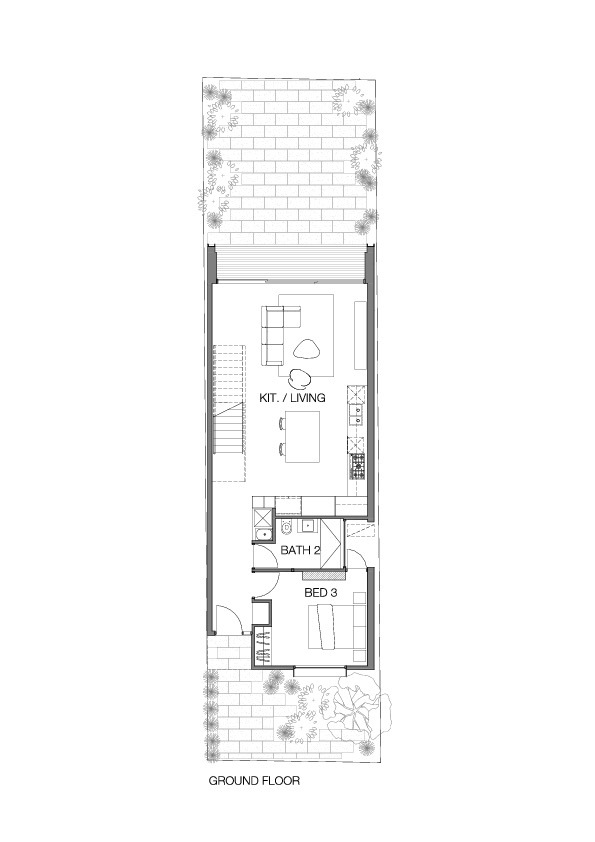
Text description provided by the architects. Within a constrained inner city block no more than 147sqm, the brief was to construct a single family residence that felt spacious, with a minimum of 3 bedrooms and sizeable courtyard that could provide the potential of onsite carparking. To accommodate the spatial requirements, the only was up; with sleeping and private quarters upstairs and public living spaces, and guest bedroom downstairs. Sited along north side of a street that are characterised by workers cottages of the early 1900s, its opposite is characterised by residential warehouse conversions, the proposal walks the tightrope between the old and the new. As a nod to the prolific housing typology of the area, through its use of materials, T2 Residence reinterprets the workers cottage into a modern timber clad family home that adopts the idyllic image of the 'house', carrying it through to the details exampled in the profile of its front fence.
Text description provided by the architects. Within a constrained inner city block no more than 147sqm, the brief was to construct a single family residence that felt spacious, with a minimum of 3 bedrooms and sizeable courtyard that could provide the potential of onsite carparking. To accommodate the spatial requirements, the only was up; with sleeping and private quarters upstairs and public living spaces, and guest bedroom downstairs. Sited along north side of a street that are characterised by workers cottages of the early 1900s, its opposite is characterised by residential warehouse conversions, the proposal walks the tightrope between the old and the new. As a nod to the prolific housing typology of the area, through its use of materials, T2 Residence reinterprets the workers cottage into a modern timber clad family home that adopts the idyllic image of the 'house', carrying it through to the details exampled in the profile of its front fence.
© Rachael Dere
拉切尔·迪尔
它的正面是一个游戏的特点,小屋的特点,这一地区和正是农舍占据了这个地点。它的凹进门廊与波纹屋顶加装的典型门廊体验形成对比,而典型的隐性单扇窗现在已通过钢板围护拉长和提出。虽然它的坚实和私人街道的存在是软化的绝对使用木材其暴露的正面,其挤压的正式姿态被取代了一个完全玻璃北面的立面,提供光明的生活空间。与它的前身形成对比。
Its facade is a play on the features of the cottage that typified the area and the very cottage that occupied the site. Its recessed entry porch contrasts with the typical porch experience of the corrugated roof addition, whilst the typically recessive single sash window has now been elongated and brought forward through the steel plate surround. Though its solid and private street presence is softened by the absolute use of timber to its exposed facades, its extruded formal gesture is replaced with a fully glazed north facing elevation providing light filled living quarters. A contrast to its predecessor.
Its facade is a play on the features of the cottage that typified the area and the very cottage that occupied the site. Its recessed entry porch contrasts with the typical porch experience of the corrugated roof addition, whilst the typically recessive single sash window has now been elongated and brought forward through the steel plate surround. Though its solid and private street presence is softened by the absolute use of timber to its exposed facades, its extruded formal gesture is replaced with a fully glazed north facing elevation providing light filled living quarters. A contrast to its predecessor.
© Rachael Dere
拉切尔·迪尔
外部的最小形式和干净的线条通过一个干净的最小的装饰调色板传递到内部。室内空间的白色和灰色被黑色的钢铁和木材楼梯点缀着,从地面到隐蔽的屋顶甲板有两个航班。作为栏杆的黑木板是从底层穿过的,加强了从公共到私人住宅区域的联系。除了正面,你一踏进前门,房子的起居区域就会有一种透明的感觉。透过楼梯到院子的透明度,也把你的视线直接连接到楼上的可操作的天窗,作为你通往屋顶顶层甲板的门道。因此,虽然住宅的目的是重新解释工人的小屋,但同时也给这个年轻的家庭带来了不同的对比。
The minimal forms and clean lines of the exterior are carried through to the interiors with a clean minimal palette of finishes. The soft whites and greys of the interior spaces are punctuated by the feature black steel and timber stair that carries the residents two flights from the ground through to the concealed roof deck. Black timber battens acting as the balustrade are carried through from the ground floor up reinforcing the link from the public to private areas of the residence. Beyond the facade, there is a feeling of transparency right through the living areas of the house as soon you step through the front door. The transparency through the stairs to the courtyard also connecting your gaze upstairs directly through to the operable skylight that acts as your doorway to the roof top deck. So whilst the residence aims to reinterpret the workers cottage, it does so with a mix of contrasts for this young family.
The minimal forms and clean lines of the exterior are carried through to the interiors with a clean minimal palette of finishes. The soft whites and greys of the interior spaces are punctuated by the feature black steel and timber stair that carries the residents two flights from the ground through to the concealed roof deck. Black timber battens acting as the balustrade are carried through from the ground floor up reinforcing the link from the public to private areas of the residence. Beyond the facade, there is a feeling of transparency right through the living areas of the house as soon you step through the front door. The transparency through the stairs to the courtyard also connecting your gaze upstairs directly through to the operable skylight that acts as your doorway to the roof top deck. So whilst the residence aims to reinterpret the workers cottage, it does so with a mix of contrasts for this young family.
© Rachael Dere
拉切尔·迪尔
Architects fyc architects
Location Richmond, Australia
Area 163.0 m2
Project Year 2017
Photographs Rachael Dere
Category Houses
Manufacturers Loading...
客服
消息
收藏
下载
最近

















