查看完整案例


收藏

下载
架构师提供的文本描述。城墙是指业主的需要,代表该地盘与位于威利新市镇的住宅区之间的联系。主人想要一个简单而令人印象深刻的房子的形状,而“城墙”是他们描述他们所希望的房子的第一个词。城墙也可以是一个设计概念,很好地符合现场的特殊情况。
Text description provided by the architects. THE RAMPARTS The ramparts mean the owner’s needs and represent a connection between the site and the residential area of Wirye new town where the site located in. The owner wanted a simple and impressive shape of house, and ‘the ramparts’ was the first word that they described the house they hoped. The ramparts also could be a design concept that fits well with the special circumstances of the site.
Text description provided by the architects. THE RAMPARTS The ramparts mean the owner’s needs and represent a connection between the site and the residential area of Wirye new town where the site located in. The owner wanted a simple and impressive shape of house, and ‘the ramparts’ was the first word that they described the house they hoped. The ramparts also could be a design concept that fits well with the special circumstances of the site.
© Hyungjin Jo
c.赵贤进
工地周围的所有房屋都是在5年内建成的,许多建筑师和建筑品牌试图通过他们的房子来展示他们独特的特色。这个地区看上去就像一个非常商业化的住宅市场,一个设计理念就是从这种情况开始的。相反,简单的群众在五彩缤纷、形状复杂的房屋中有着特殊的个性。考虑到位于拐角处的场地的特点,沿途设置了城墙。
SITE All the houses around the site were built within 5 years, and many architects and construction brands tried to show their distinct feature through their houses. The area looks like very commercial housing fair, and a design concept was started from this situation. Rather, the simple mass had a special personality among the colorful and complex shaped houses. Considering the characteristics of the site located at the corner, the ramparts were placed along the road.
SITE All the houses around the site were built within 5 years, and many architects and construction brands tried to show their distinct feature through their houses. The area looks like very commercial housing fair, and a design concept was started from this situation. Rather, the simple mass had a special personality among the colorful and complex shaped houses. Considering the characteristics of the site located at the corner, the ramparts were placed along the road.
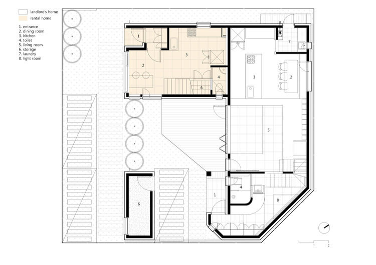
Ground Floor Plan
通过这种方法,可以在表达特征的同时,自然地融入这一地区。由于场地价格昂贵,很难在一个包裹上建造一个家庭。客户也明白这个问题,所以复式住宅是最好的选择。“C”型建筑的建造方式使庭院被业主家庭占用,房屋的北侧被分配给租赁商。
Through this method, this house could naturally assimilate into the area while expressing features. The high price of the site made it difficult to build only one household on one parcel. The client also understood this problem so the duplex house was the best choice. The ‘C’ shaped mass was constructed in such a way that the courtyard was occupied by the owner family, and the north side of the house was distributed to a leaseholder.
Through this method, this house could naturally assimilate into the area while expressing features. The high price of the site made it difficult to build only one household on one parcel. The client also understood this problem so the duplex house was the best choice. The ‘C’ shaped mass was constructed in such a way that the courtyard was occupied by the owner family, and the north side of the house was distributed to a leaseholder.
© Hyungjin Jo
c.赵贤进
© Hyungjin Jo
c.赵贤进
这座为客户服务的房子-这对热爱音乐和葡萄酒的客户-梦想着在一座明亮的房子里举办一场家庭音乐会。通过每周的访谈和研讨会,我充分反映了客户的意见。因为客户没有经验住在一个独立的房子,他们对此非常兴奋。房子的内部是为了抵消外部的沉重而建造的。部分采用曲线型开口,使客户不会受到简单而庞大的形象压迫,各种形式的开口使业主家庭感受到乐趣和美丽。
THE HOUSE FOR THE CLIENTS The clients couple, who love music and wine, dreamed of holding a family concert in a bright house. Through the weekly interviews and workshops, I fully reflected the opinions of the clients. Because the clients did not have experience living in a detached house, they were very excited about that. The interior of the house was constructed to offset the heaviness of the exterior. The curve-shaped openings were partially applied so that the clients would not be oppressed with the image of the simple and large mass, and a variety of form of openings make the owner family feel fun and beautiful.
THE HOUSE FOR THE CLIENTS The clients couple, who love music and wine, dreamed of holding a family concert in a bright house. Through the weekly interviews and workshops, I fully reflected the opinions of the clients. Because the clients did not have experience living in a detached house, they were very excited about that. The interior of the house was constructed to offset the heaviness of the exterior. The curve-shaped openings were partially applied so that the clients would not be oppressed with the image of the simple and large mass, and a variety of form of openings make the owner family feel fun and beautiful.
© Hyungjin Jo
c.赵贤进
这座房子最重要的部分是从前门到客厅的顺序。虽然许多人不认为门廊的空间体验是重要的,但这栋房子的门廊包含了暴露的楼梯、高地板和通过小天窗进入的微妙光线所形成的各种故事。门廊末端的拱形开口连接到客厅.一楼是家庭活动的场所。划分厨房和客厅的两级楼梯自然形成了观众和舞台。拱形开口的作用是强调舞台上出现的人.
The most important part of this house is the sequence from the front door to the living room. Though many people do not regard the spatial experience on the porch as important, the porch of this house contains various stories made by the exposed staircase, the high floor, and the subtle light entering through the small skylight. A arch-shaped opening at the end of the porch is connected to the living room. The first floor is a space for family activities. The two steps of stair that divide the kitchen and the living room naturally form the audience and the stage. Arch-shaped openings give the effect of emphasizing the person appearing on the stage.
The most important part of this house is the sequence from the front door to the living room. Though many people do not regard the spatial experience on the porch as important, the porch of this house contains various stories made by the exposed staircase, the high floor, and the subtle light entering through the small skylight. A arch-shaped opening at the end of the porch is connected to the living room. The first floor is a space for family activities. The two steps of stair that divide the kitchen and the living room naturally form the audience and the stage. Arch-shaped openings give the effect of emphasizing the person appearing on the stage.
© Hyungjin Jo
c.赵贤进
与房主的口味强烈反映的房屋不同,出租房屋具有普适性,它被规划为一个只有独立的房子才能拥有的空间和特征。一楼有一个餐厅和一个厨房,并在视觉上连接到一个小花园。二楼有客厅和卧室,这是更多的私人空间。虽然它有一个狭窄的缺点,但它扩大了空间垂直,提供了一个空间,无法感觉到在公寓的大小。
THE HOUSE FOR RENT Unlike homes where the owner's tastes are strongly reflected, houses for tenants have a universal character, and It was planned as a space and characteristics that only a detached house can have. The first floor has a dining room and a kitchen, and is visually connected to a small garden. The second floor has a living room and a bedroom, which are more private spaces. Although it has a narrow drawback, it enlarges the space vertically and provides a space that can not be felt in apartments of the same size.
THE HOUSE FOR RENT Unlike homes where the owner's tastes are strongly reflected, houses for tenants have a universal character, and It was planned as a space and characteristics that only a detached house can have. The first floor has a dining room and a kitchen, and is visually connected to a small garden. The second floor has a living room and a bedroom, which are more private spaces. Although it has a narrow drawback, it enlarges the space vertically and provides a space that can not be felt in apartments of the same size.
© Hyungjin Jo
c.赵贤进
Architects Low Creators
Location Seongnam-si, South Korea
Lead Architects Insung Yang, Jaedon Kwon
Construction builderhome (Minchul Shin)
Area 129.72 m2
Project Year 2018
Photographs Hyungjin Jo
Category Houses
Manufacturers Loading...
客服
消息
收藏
下载
最近









































