查看完整案例


收藏

下载
架构师提供的文本描述。我们试图在现代住宅的框架内,用新的方式来解释传统的门廊屋顶,因为京都的城市景观规范。作为劳吉尔的“原始小屋”,山墙屋顶有一种基本的吸引力。然而,我们觉得他们的强轴方向有问题,房子里的阳光分布不均匀,另外,我们也看到了处理山墙向外推力的问题。
Text description provided by the architects. We tried to interpret traditional gabled roofs in new way, because of Kyoto's townscape codes, within the framework of modern dwellings. As Laugier's "Primitive Hut, "gabled roofs hold a sort of fundamental appeal. However, we felt there was a problem in their strong axis of the direction and the fact that sunlight in the house is distributed unevenly. Additionally, we also saw an issue in dealing with the gable's o
Text description provided by the architects. We tried to interpret traditional gabled roofs in new way, because of Kyoto's townscape codes, within the framework of modern dwellings. As Laugier's "Primitive Hut, "gabled roofs hold a sort of fundamental appeal. However, we felt there was a problem in their strong axis of the direction and the fact that sunlight in the house is distributed unevenly. Additionally, we also saw an issue in dealing with the gable's o
© Yasutake Kondo
.Kondo YasutakeKondo
Exploded Axonometry
爆炸轴测
© Yasutake Kondo
.Kondo YasutakeKondo
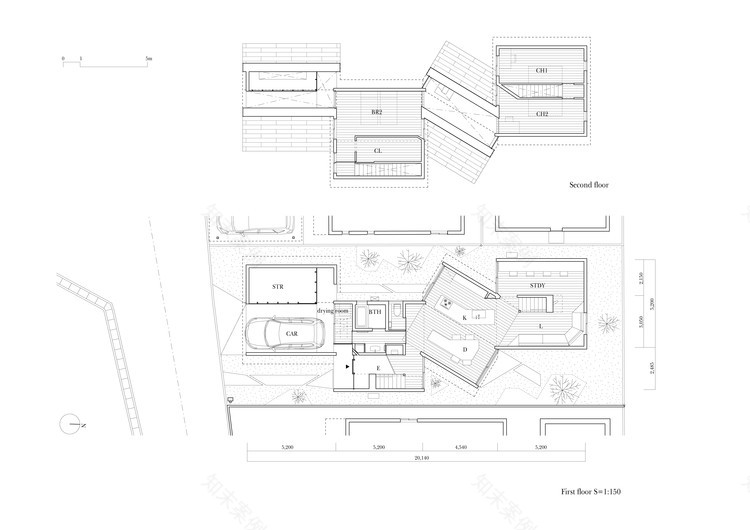
我们采取了一个长长的山墙屋顶跨越一片土地,并将它分为四个部分。我们改变了四个正方形房屋的位置,从离街道最近的一个开始,旋转它们并改变它们的高度。在这样的布局中,我们在建筑之间创造了一个隐蔽的空间,同时使房子的轴线多样化。房子的中心是一层楼高的厨房-就餐量,呈30度的角度。从这个区域,我们可以查看两个相连屋顶的第一层和第二层的每个房间。开放感是由不同屋顶高度和倾斜度的不连续房间序列产生的,这些房间是由扭曲的单层和双层的体积组合而成的。
We took a long gabled roof spanning a deep plot of land and divided it into four parts. We shifted the position of the four square houses, starting from the one closest to the street, rotated them and changed their heights. In such a distribution, we created a sheltered space between buildings, while diversifying the house's axis line. The center of the house is a one-story kitchen-dining volume angled at 30 degrees. From this area one can look into each of the rooms on the first and second f1oors of the two connected roofs. A sense of openness is generated by the discontinuous sequence of rooms with varying roof heights and tilts which are built from a combination of twisted single-and double layered volumes.
We took a long gabled roof spanning a deep plot of land and divided it into four parts. We shifted the position of the four square houses, starting from the one closest to the street, rotated them and changed their heights. In such a distribution, we created a sheltered space between buildings, while diversifying the house's axis line. The center of the house is a one-story kitchen-dining volume angled at 30 degrees. From this area one can look into each of the rooms on the first and second f1oors of the two connected roofs. A sense of openness is generated by the discontinuous sequence of rooms with varying roof heights and tilts which are built from a combination of twisted single-and double layered volumes.
© Yasutake Kondo
.Kondo YasutakeKondo
Floor plan
© Yasutake Kondo
.Kondo YasutakeKondo
这座房子依赖于木质墙结构,但我们通过让单层结构的屋顶梁作为支撑,使得在花园面墙上放置一个大的透明开口成为可能。这样,通过在洞口处设置不同的结构构件,用梯度将屋面的托梁成正方形,使山墙顶板的形状变为不产生推力的结构。屋顶的移动和分层创造了空间,在那里自然充满光线的活动区和书籍的区域。通过这个项目,我们希望在每个房间之间,在房间和花园之间,在这两个空间和周围环境之间建立起深刻的关系。
The house is depending upon wooden wall structure, but we made it possible to place a large transparent opening in the garden-facing wall through having the roof beam of the single story structure to act as a brace. In this way, through setting together different constructional components at openings and squaring the roof's joist with the gradient,we have changed the gable roof shape into a structure which does not generate thrust. The shifting and layering of the gabled roof created spaces where natural light-filled active areas and areas for books are. Through this project, we would like to create deep relationships between each room; between the rooms and the garden; and between both of these spaces and the surroungdings.
The house is depending upon wooden wall structure, but we made it possible to place a large transparent opening in the garden-facing wall through having the roof beam of the single story structure to act as a brace. In this way, through setting together different constructional components at openings and squaring the roof's joist with the gradient,we have changed the gable roof shape into a structure which does not generate thrust. The shifting and layering of the gabled roof created spaces where natural light-filled active areas and areas for books are. Through this project, we would like to create deep relationships between each room; between the rooms and the garden; and between both of these spaces and the surroungdings.
© Yasutake Kondo
.Kondo YasutakeKondo
Architects Alphaville Architects
Location Kyoto, Japan
Lead Architects Kentaro Takeguchi, Asako Yamamoto, Tomohisa Koike
Area 158.0 m2
Project Year 2016
Photographs Yasutake Kondo
Category Houses
Manufacturers Loading...
客服
消息
收藏
下载
最近

































